苏州雅韵玖里官方售楼处电话-苏州雅韵玖里首页网站-苏州雅韵玖里最新房价-户型-容积率-小区配套-楼盘详情/价格/户型
扫描到手机,新闻随时看
扫一扫,用手机看文章
更加方便分享给朋友
苏州雅韵玖里售楼处电话:400-002-9578转2222(已认证)
苏州雅韵玖里开发商电话:400-002-9578转2222【售楼中心】
温馨提示售楼中心〢预约尊享1V1品鉴礼遇〢匠心钜制-恭迎品鉴〢
温馨提示本项目暂不接受临时到访,过来参观样板房请记得提前来电预约!
免责声明:(本文章所用信息图片来源于网络,如有侵权联系本网站删除)

容积率1.2,拟建5栋3-7F住宅,其中4栋3F联排,及1栋7F洋房,小区在桐泾北路设有出入口。
总平面图如下:

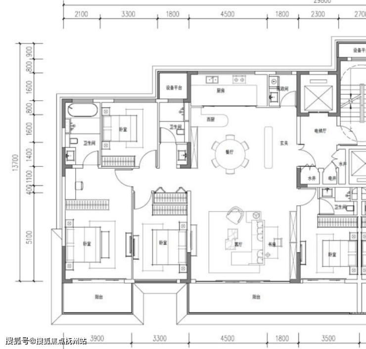
7#洋房标准层平面图如下:同步曝光2个户型,2梯2户。

具体来看,西边户4房2厅3卫
1梯1户,约17米南向面宽
南向双阳台分别为9.8米、3.9米
中西双厨带家政间,LDKB一体化设计
客厅开间6.3米,外接双联阳台
南向三房,其中双套房,主卧开间约3.9米

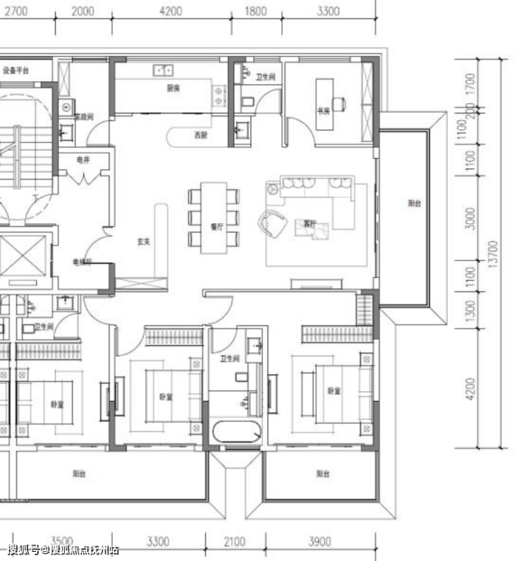
东边户4房2厅3卫
1梯1户,约12.8米南向面宽
三阳台设计,南向双阳台+东向阳台
开间分别为6.8米、3.9米、7.6米
中西双厨带家政间
南向三房,其中双套房,主卧开间约3.9米

7#南立面图如下:层高3.05米。

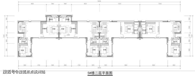
5#4联排一层平面图如下:同步曝光1个户型,南向面宽约12.5米。



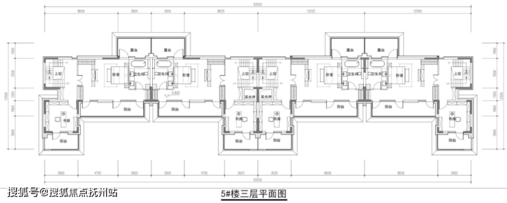
5#联排立面图如下:首层高3.6米,二层高3.2米,三层高2.8米。
交通方面,地块距地铁1号线桐泾北路站约800米,距2号线石路约1.4公里。商业方面,地块近石路商圈,还可通过地铁直达山塘街、观前街等。周边还有苏州第五中学、金阊实小、金阊外国语等教育资源。

苏州雅韵玖里售楼处电话:400-002-9578转2222(已认证)
苏州雅韵玖里开发商电话:400-002-9578转2222【售楼中心】
温馨提示售楼中心〢预约尊享1V1品鉴礼遇〢匠心钜制-恭迎品鉴〢
声明:本文由入驻焦点开放平台的作者撰写,除焦点官方账号外,观点仅代表作者本人,不代表焦点立场。
