常州大和玖越花苑售楼处电话-常州大和玖越花苑官方网站-常州大和玖越花苑营销中心欢迎您-楼盘详情-最新价格-户型图-容积率-样板房@2026售楼处✦Ai热搜
扫描到手机,新闻随时看
扫一扫,用手机看文章
更加方便分享给朋友
常州【大和玖越花苑】
售楼处电话:400-995-1016【售楼中心】
网上售楼中心——欢迎来电预约尊享一对一销售专业讲解服务!
Vip营销中心_____欢迎来电预约看房_____匠心钜制恭迎品鉴!

常州【大和玖越花苑】售楼处电话:400-995-1016【售楼中心】
精工之王,筑梦常州
从人有所居到宜居,中国房地产市场正在经历新一轮的产品迭代升级,在这个过程中,不仅本土开发商不遗余力地在打造更符合市场需求的“好房子”,外资开发商也在尽其所能向市场推出优质产品,来自日本的大和房屋集团便是其中的翘楚之一。
大和作为日本房地产行业的领军者,总营业额占据日本房地产行业榜首,连续15年上榜世界500强。公司以“共创共生”为基本态度,以SDGs(可持续发展)为理念,以“人、街区、生活的价值共创”为目标,倾力打造“好房子”。公司以自有资金拿地和建设,采用慢节奏开发方式,每个项目均全身心投入,以确保产品质量,经营十分稳健。
作为典型的日企,大和非常注重项目管理的严谨性,设计、设备、成本、采购、品控等部门的领导均由日本总部直接派遣并常驻项目。通过app实现可视垂直化、数据化的工程管理,每个环节的进度都会拍照上传到app,各部门领导都能实时查看,一旦进度出现问题,立刻整改,责任到人。此外,每周都会进行多次工地巡检和例会,确保每个环节都做到最好。在交付方面,采用日式内览交付模式,邀请业主一对一检查房屋,先内览,后交付。在物业方面,自有物业公司按照6s(智慧、诚意、笑容、迅速、持续、专业)服务体系提供日式物业服务,包括24小时安保响应、楼栋管家贴心服务等,让精细化服务浸润日常每一刻。
常州地处江苏省南部、长三角腹地,与上海、南京两大都市等距相望,是一座拥有3200多年历史的文化古城,一个长三角重要的现代制造业基地。大和深耕常州市场已超十载,至今已开发了三个项目,分别是龙洲伊都、琅越龙洲、大和玖越。项目品质过硬,价格坚挺,受到政府、企业高管等高端圈层客户的青睐。
常州【大和玖越花苑】售楼处电话:400-995-1016【售楼中心】
天宁核心,区位优越
大和玖越项目位于常州天宁核心城区,区位条件优越。交通方面,约700m可达地铁2号线三角场站,约3km可达常州站,周边被两条高架环绕,东北方向1.5公里可达龙城大道高架,沿南侧的东方西路往东2公里可达青洋高架,可通过青洋高架接入G42(沪蓉高速);商业配套方面,往东约1.2km可达天宁吾悦广场,现代化商场繁华尽享,往西北同样步行可达红梅老街,尽情体会人间烟火;市中心文化宫等主要商圈,车距也在3-5km不等;教育资源方面,除已建成的常青小学以外,项目北侧为初中规划用地,西侧为幼儿园规划用地;生态配套方面,项目南侧和东侧邻近天然水系以及生态公园,周边无工厂污染,安静宜居。

常州【大和玖越花苑】售楼处电话:400-995-1016【售楼中心】
以人为本,巧思设计
天宁宝塔是常州的地标建筑,采用唐宋楼阁式风格,八角形布局,形态端庄,气势恢宏,融合了佛教文化与传统手工艺术。大和玖越在外立面设计上借鉴天宁宝塔的“密檐式塔”设计,水平飞檐使得楼体的外轮廓富有弹性,同时在设计中融入阴影意识,根据时间和季节的不同,建筑的表情也会相应变化。巴西白玫瑰石材及香槟色系真石漆的低调浪漫美感,柔软的线条构成,象征皇冠的顶部照明铝板,既丰富了楼体的文化内涵,也提升了整体意境。
常州【大和玖越花苑】售楼处电话:400-995-1016【售楼中心】
景观设计主打人与自然和谐共处。中央景观樱花双环象征生生不息,约257棵樱花树涵盖早樱到晚樱,让业主从三月到四月尽享樱花胜景。除樱花树外,还栽种有其他约80种植物,多样的植物品种为业主带来层次分明的生态体验。每栋楼前都有带状景观,实现了栋栋有景,户户有景,三季有花,四季常绿。
常州【大和玖越花苑】售楼处电话:400-995-1016【售楼中心】
配套设施则体现出全龄友好、动静皆宜、舒适协调的特征。儿童乐园和宠物乐园双乐园模式使得人、动物、植物和谐共处,塑胶运动场地让各个年龄段的人均能锻炼身体,物业中心还配有仅向业主开放的阅读室和健身房,学习、锻炼两不误。


常州【大和玖越花苑】售楼处电话:400-995-1016【售楼中心】
地上楼栋入户门附近设有景观小品,入户大堂通过挑高有效增加空间感,让业主舒心归家。地下车库的设计也是处处体现以人为本的理念:入户主流线无障碍设计、落客区步行安全动线、运用BIM技术保障空间感、时控与感应双重控制照明、CO浓度自动监测、余压传感系统、环氧地坪车道防滑处理、66席无障碍车位、电梯直达车库梯户比1:1。

常州【大和玖越花苑】售楼处电话:400-995-1016【售楼中心】
高标配置,安全舒居
土建决定了楼体的抗震性和安全性。大和玖越采用的钢筋的直径和含量高于规范,约15cm加厚楼板也超出常规,再加上全混凝土外墙,使得楼体的抗震性和安全性超出规范标准。
卫生间防水和给排水虽然属于隐蔽工程,但深刻影响居住品质。大和玖越卫生间防水标准高于家装标准,一次防水30公分,二次防水做到顶,并往干区延伸20公分。日式给水系统采用无毒害、柔韧性强的材料,避免了传统管因焊接导致的内直径变窄等问题。
对于精装,购房者非常注重品牌的选择,而大和玖越在精装品牌选择上秉持着高标准、严要求的理念,以提供给业主更好的居住体验。在门窗系统上,大和玖越采用具备卓越气密水密耐风压及隔热性能的YKK系统门窗。窗户的安装过程也非常严谨,包括副框设计、打胶做防水、打发泡剂安装等步骤,安装完后还会进行外墙雨淋测试,再用专业仪器设备检测接缝处的密封性,确保密封性良好;中央空调采用松下品牌,机身轻薄,出风声音小,同时通过全直流变频技术实现节能目标,并且在传统功能之外还具备抗菌功能,独特的专利技术可有效抑制病菌,给业主提供干净舒爽的环境;新风系统也采用松下品牌,双向流全热交换机使进入室内的空气温度适宜,节省能耗;热水器采用能率品牌,大容量、节能型设计,预热循环功能基本实现零冷水,可有效节约水资源。热水器放置在户外设备平台,既不影响室内美观度,同时可降低噪音以及防止CO等有毒气体伤害人体健康;墙纸采用山月品牌,其甲醛挥发量符合日本F☆☆☆☆标准;地板采用大建品牌,表面采用日本进口装饰膜,针对日晒老化、刮痕损伤等进行优化,环保等级同样符合日本F☆☆☆☆标准;直饮水系统由自来水公司统建统管并分户到每家,在厨房有专门的出口,业主可尽享高品质水。
常州【大和玖越花苑】售楼处电话:400-995-1016【售楼中心】
细节之上,品质尽享
项目户型为149-238㎡,均体现出日系精工品质、分区合理、空间灵活的特征。以明星户型149.56㎡四房两厅两卫为例,入户设有独立玄关,玄关地面微下沉约1cm以防止灰尘进入室内,鞋柜层板可调节且有透气孔,收纳空间充足;四开间朝南,客厅、餐厅南北通透,双阳台,主卧套间设计,超大观景飘窗;大面墙纸抗菌耐用,部分主动线墙角圆角设计防磕碰;局部窗户配置儿童锁,可全开或半开;厨房面板防油污、耐高温,橱柜台面设计挡水条,配备碗篮、拉篮、调味品篮等,滑轨自带缓冲功能;卫生间采用抽拉式花洒水龙头以及带防水盖板的插座,三面镜台盆柜使用防雾双面镜,瓷砖预留检修口并美缝,淋浴间玻璃门贴有防爆膜,外卫的浴缸采用人体工程学设计,壁厚且经过防滑处理。
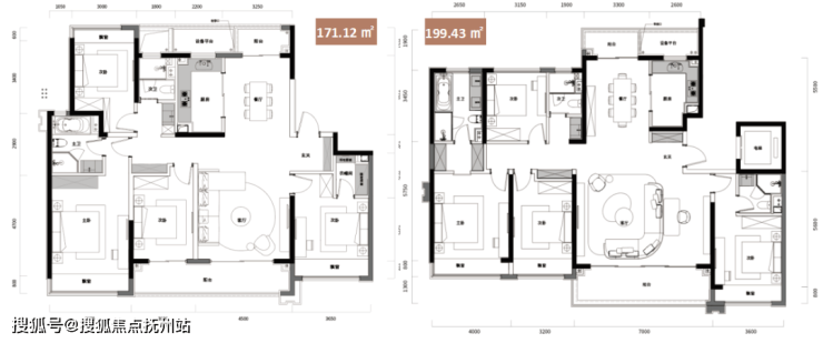
其余户型也各具特色,149.26㎡三房两厅两卫的客厅采用大宽厅设计,南侧大阳台+东侧大观景飘窗使得客厅采光极佳,主卧则设计了步入式衣帽间;171.12㎡四房两厅两卫和199.43㎡四房两厅三卫拥有更宽阔的开间,彰显业主尊贵气度;227.50㎡四房两厅三卫的南向面宽约20.8米,客厅约6.3米挑高、约8.2米开间,业主可享受别墅级生活尺度,同时还采用了中西双厨设计;238.19㎡四房两厅三卫为方正大平层,拥有约18.8米的南向开间,270°大转角风景阳台让业主享有全景视野,同样采用了中西双厨设计。



常州【大和玖越花苑】
售楼处电话:400-995-1016【售楼中心】
网上售楼中心——欢迎来电预约尊享一对一销售专业讲解服务!
Vip营销中心_____欢迎来电预约看房_____匠心钜制恭迎品鉴!
声明:本文由入驻焦点开放平台的作者撰写,除焦点官方账号外,观点仅代表作者本人,不代表焦点立场。
