绍兴禹州印樾府售楼处电话→绍兴禹州印樾府售楼中心官方No.1→售楼处地址→24小时热线电话→楼盘百科
扫描到手机,新闻随时看
扫一扫,用手机看文章
更加方便分享给朋友
绍兴禹州印樾府
售楼处电话400-688-0252【售楼中心】
24小时热线◆温馨提示:看房需提前预约
售楼处电话400-688-0252【售楼中心】
◆在售房源户型价格详询售楼处〢一对一服务
售楼处电话400-688-0252【售楼中心】
〢售楼处销售1v1专业讲解〢24小时热线 全天服务
〢〢〢〢〢〢〢〢〢〢〢〢〢〢〢〢
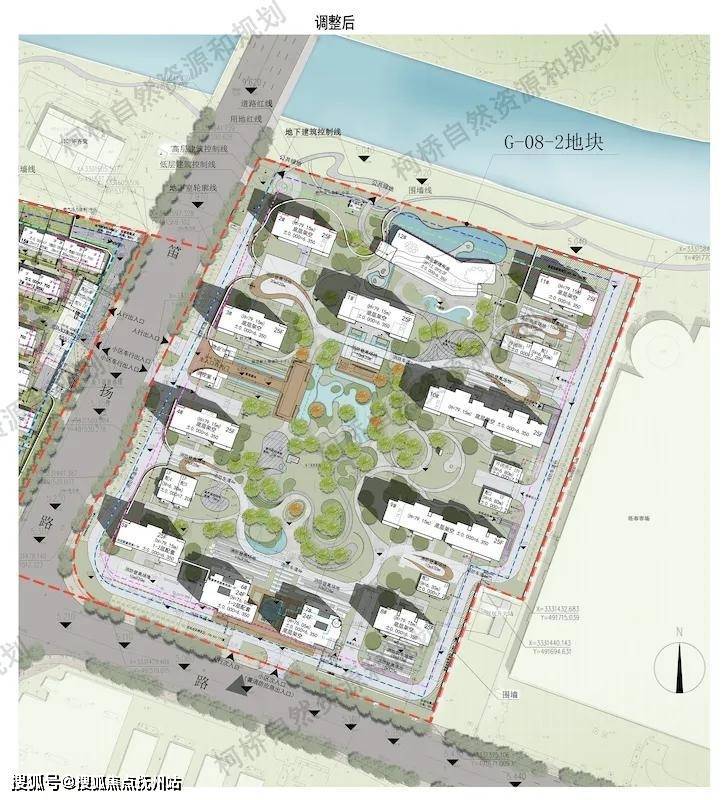
【地块用途】城镇住宅用地
【土拍编号】柯桥城区G-08地块
【基本信息】总用地面积61767㎡,容积率1.92-2.07,计容建筑面积127857.69㎡
2
控规修改
本次调整内容如下:
1、6#、7#楼户型由一梯两户调整为一梯三户;位于6#楼一层、二层的居家养老服务用房以及6#、7#楼所在地下室区域作相应调整。调整后,户数由608户调整至653户,机动车位由1219个调整至1213个,非机动车位由1059个调整至1192个。
2、8#、9#、10#楼的165方户型内部分隔作调整。
3、场外景观方案局部调整。
具体细节为:
6#、7#号楼三层至二十四层住宅调整:大平层变小户型
8#、9#、10#号楼165方户型调整:空间分割调整
景观调整:
绍兴禹州印樾府
售楼处电话400-688-0252【售楼中心】
24小时热线◆温馨提示:看房需提前预约
售楼处电话400-688-0252【售楼中心】
◆在售房源户型价格详询售楼处〢一对一服务
售楼处电话400-688-0252【售楼中心】
〢售楼处销售1v1专业讲解〢24小时热线 全天服务
〢〢〢〢〢〢〢〢〢〢〢〢〢〢〢〢
声明:本文由入驻焦点开放平台的作者撰写,除焦点官方账号外,观点仅代表作者本人,不代表焦点立场。
