昆山明月璟辰苑丨花桥(明月璟辰苑)丨明月璟辰苑欢迎您丨楼盘地址详情价格
扫描到手机,新闻随时看
扫一扫,用手机看文章
更加方便分享给朋友
江苏花桥「明月璟辰苑」
电话:400-1788-336
如有问题欢迎来电咨询,来电即可享受买房优惠!预约来电尊享购房优惠,可预约案场内部销售人员,专业一对一热情服务,让您用专业眼光去买房。

画船听雨,
闲梦梅熟,
人语断桥边的江南,
今生有幸江南去,纵是梦里不言归的姑苏。

丨 项目区位
本案位于昆山市花桥镇——一个依托于上海、苏州和昆山,而迅速发展的江南小镇,地处金捷路南侧,远创路西侧,交通便捷,配套齐全。

▲ 明月璟辰苑区位分析
▲ 明月璟辰苑区位鸟瞰
▲ 示范区庭院鸟瞰


▲ 示范区入口

▏昆山印象
昆山,一座富有文化和艺术底蕴的江南水乡。
闲暇时游历园林,漫“步”在江南烟雨,
点上一壶茶,再细“品” 昆曲悠扬,
这是昆山清雅灵秀的气韵,是对于昆韵美的阐释。


翻飞起舞,一柄“扇”,一俯一仰,一声叹;
一步一景,皆为画,一曲一折,皆为“园”。


静谧的风拂遍整个江南,昆曲为我们演绎的是一场场悲欢离合,巧夺天工的园林艺术诉说着小桥流水人家的悠远。枯藤老树昏鸦的悲凉,有情人终成眷属的欢喜,就在这无数的瞬间,照亮了历史长河,折射出的柔和夹杂着古典的风味,诉说着几千年来不变的江南。

▲ 示范区入口


▲ 示范区庭院
▲ 示范区建筑立面

整个场地布局灵感来源于苏州园林、江南水乡。
沿街面打造沉浸式的景观界面,外向式布局凸显仪式感。示范区入口营造开合有致的空间,门扉半掩更是是江南婉约美的体现。庭院通过大面积水景打造开阔的空间,体现水乡特色, 营造豁然开朗的视觉体验。
▲ 示范区庭院鸟瞰

▲ 总图布局

▲ 形体生成







昆曲无他,得一美字。纵观昆曲六百年的美之传承,“扇”一奇也。苏扇不仅存在于昆山人们的生活中,而且作为中国传统手工艺品之一,它以历史悠久、制作精巧著称。试想,文人墨客在青砖碧瓦下,折扇轻摇焚香烹茗,谈古论今,这是一把扇子上流转的苏式情调。
建筑造型取意苏扇,序列有致上疏下密,虚实相辅相成,如扇如风轻盈有力。
丨 序列有致——扇骨
苏扇重在骨,选料取精用宏,上等的扇骨匀致精巧,光洁如玉。

建筑一层立面采用超白玻和圆弧杆件有序排列,并加设灯带,达到玲珑通透的立面效果。

参照扇骨均匀巧妙的的排列方式,使一层犹如打开的扇骨。
▏序列有致——扇面
扇面采用花纹清晰的棉料宣纸,打开折扇如起舞,灵动飘逸。

建筑二层立面采用半透明的双层U玻进行横向拼接,形成舒展轻盈的立面效果。

提取扇面竖向匀质排列的肌理应用在建筑上层。
丨 上实下虚
苏扇主要由轻盈的扇面和坚韧的扇骨组成,扇面舒展宽阔,扇骨凌厉挺拔,如筋如骨。因此建筑主体采用上宽下窄、上实下虚的形体组合方式。


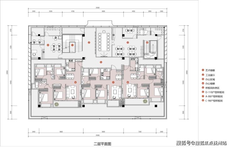
售楼处首层主要为接待洽谈空间,二层为样板房展示和办公空间。由入口门头进入接待大厅,然后经过展示区到达大厅(沙盘区域、洽谈区,水吧区、儿童游乐区)经艺术楼梯可到达二层样板间,签约室则位于大厅的一侧。

▲ 功能分区
▲ 人行流线


▲ 平面图
▲ 剖面图


丨 材料细节
一层竖向杆件与格栅以近竹色为主,檐部采用仿铜金属格栅和铝板线脚,设置米黄色灯带,渲染温润光泽。

二层采用双层白色喷砂磨砂U玻和仿铜金属格栅,似透非透。

一层的立面材料主要为超白玻和仿铜铝板,二层为双层白色喷砂U玻和仿铜金属格栅。
▲ 材质索引
丨 效果图实景图对比
▲ 效果图
▲ 实景图

每个人心里都有一座城,一城一味,一城一曲,一城一个故事。
携一柄伞,步入园林深处;
煮一杯茶,静品昆曲悠扬;
执一把扇,细酌百年春秋。
江苏花桥「明月璟辰苑」
电话:400-1788-336
如有问题欢迎来电咨询,来电即可享受买房优惠!预约来电尊享购房优惠,可预约案场内部销售人员,专业一对一热情服务,让您用专业眼光去买房。
声明:本文由入驻焦点开放平台的作者撰写,除焦点官方账号外,观点仅代表作者本人,不代表焦点立场。
