首创禧瑞云庭二期一房一价|松江首创禧瑞云庭怎么样?首创禧瑞云庭户型-缺点
扫描到手机,新闻随时看
扫一扫,用手机看文章
更加方便分享给朋友
上海松江「首创.禧瑞云庭」
营销电话:400-178-3552
如有问题欢迎来电咨询,来电即可享受买房优惠!预约来电尊享购房优惠,可预约案场内部销售人员,专业一对一热情服务,让您用专业眼光去买房。
【首创集团-首创城发]】
首创集团是北京国资委下属大型国有企业,现上海已有20多个项目
【区域价值】
近50家世界500强+松江大学校+高精尖人才
上海未来的“硅谷”
五大新城之首,“十四五”重点打造的五个独立综合性节点城市之一,G60科创产业助力
高校云集,7所大学,十万师生
人口规划在五大新城遥遥先进(至2035年规划人口110万)
🆓 案场优惠:待定
‼️建面约87㎡-115㎡,总价区间约468-720万
认筹材料要求
1.所有购房人身份证正反面
2.未成年小孩出生证明或身份证
3.认购人的户口本全本(第1页复印到少有页)
4.认购人婚姻证明(第1页到第3页)(单身可忽略此条)结婚证或离婚证+离婚协议或法院判决书(若有)
5.名下所有在沪房产的房产证复印件(包括跟父母共有的房产)
6.外地户口还需提供连续满5年或63个月满60个月社保/税单等限购证明资料
7.主贷人支付认筹金的储蓄卡复印件。复印清晰、正反面复印在同一页,写上户名、开户行(具体到某分行/支行)、卡号、手机号
一、项目基础信息
【项目概况】
项目地址:上海市松江区广富林街道银泽路与定恒路交汇处
售楼处地址:人民北路与广轩路路口
物业类型:小高层(16~17层)
面积:88-98-100-115平
总价区间:468-720万
容积率:约2.2
装修状况:精装修
得房率:80%
车位配比:1:1.1
本次加推:308套
项目全套官宣户型图抢鲜看!
建面约

建面约

建面约

建面约

关注项目进展/加群沟通:
项目效果图抢鲜看!




「首创·禧瑞云庭售楼处电话:400-178-3552」四至范围:东至东港路,南至广富林路,西至泽林路,北至银泽路。
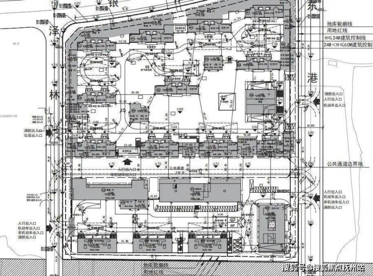
项目分为南北两个片区,共规划10幢16-17层的高层住宅,1幢13层的保障房,4幢16层办公楼,1幢6层的宾馆和2幢2层商业用房,此外部分楼幢设有底商和社区配套用房。
「首创·禧瑞云庭售楼处电话:400-178-3552」地块性质是商住办综合用地,住宅不小于50%、商业不大于15%、办公不大于35% ;地上建筑限高 60米,住宅套数下限576套,房地联动房价58130元/㎡。

项目情况:
建设单位名称: 上海崧贤置业有限公司
建设项目选址:松江区广富林街道SJC10004单元2街区24-01号地块
建筑规模:180785.80平方米
规划用地性质:三类住宅组团用地、商业服务业用地、商务办公用地
建筑工程性质:住宅、商业、办公
容积率:2.20
绿地率:住宅部分35%、商办部分20%
建筑高度较高点:60米
竣工时间:2023年年底竣工备案


交通方面:
项目东侧约300米为松江有轨电车2号线“广富林路站”,2站即达地铁9号线“松江大学城站”,快速到达七宝、漕河泾、徐家汇等知名商圈。
商业方面:
项目东侧300米左右为松江空前规划打造的商业地标——松江印象城,包涵全国首店近10家、松江首店近120家、定制店40余家。
项目东侧约2.6公里为松江万达广场,一站式购物体验。
学校方面:
南面,仅一路之隔便是松江大学城,7大先进学府高校为邻;上外云间、华东政法大学附属学校、上外松外等优质学校在旁。赫德双语、包玉刚实验学校、上外西外等高端私立提供双语教育选择(期房不承诺和划分学区)。
医疗方面:
项目南侧约3公里有上海市排名前列人民医院松江南院(上海占地面积较大的三甲医院),可提供直升机救援服务,享受市区同等医疗标准资源。
生态方面:
项目西侧约1.8公里处为广富林文化遗址、广富林郊野公园。约4公里处辰山植物园、佘山旅游度假区、欢乐谷等等。
上海松江「首创.禧瑞云庭」
营销电话:400-178-3552
如有问题欢迎来电咨询,来电即可享受买房优惠!预约来电尊享购房优惠,可预约案场内部销售人员,专业一对一热情服务,让您用专业眼光去买房
声明:本文由入驻焦点开放平台的作者撰写,除焦点官方账号外,观点仅代表作者本人,不代表焦点立场。
