永升大厦-徐汇(永升大厦欢迎您)售楼处丨永升大厦楼盘详情 /价格 /户型

抚州楼市发布 2023-06-29 10:52:05
用手机看
扫描到手机,新闻随时看

扫一扫,用手机看文章
更加方便分享给朋友

上海徐汇「永升大厦」 售楼处电话:400-1788-332【热线】

上海徐汇「永升大厦」

售楼处电话:400-1788-332【热线】

如有问题欢迎来电咨询,来电即可享受买房优惠!预约来电尊享购房优惠,可预约案场内部销售人员,专业一对一热情服务,让您用专业眼光去买房。

臻稀26席 全城发售

建面约35㎡-87㎡精致小户型

【徐家汇 宜山路地铁口 】

地标之上 地铁上盖 精装小户型

项目基本信息

项目名称:永升大厦售楼处电话:400-1788-332

板块:徐家汇板块

物业类型:商办

面积段:35-87平

价格区间:待定

付款方式:8成首付

交付标准:软硬装交付

定金:20万

梯户比:7梯26戶

开发商:旭辉集团股份有限公司

竣工时间:2006年

产权年限:50年

物业公司:威格斯物业顾问(上海)有限公司

总层高:26层

层高:3米

在售套数:26套

交房时间:现房

水费:6.25元/吨

电费:0.95元/度

物业费:20月/平/月

停车费:9元/小时 1500元/月

【经典徐家汇,见证上海风云】

永升大厦售楼处电话:400-1788-332项目位于徐汇区,隶属上海四大城市副中心之首的徐家汇商圈,从2018年起至今,徐家汇商圈的业态已经完成了第三轮的全面升级调整,逐步形成了该商圈全业态新零售且适应全民时尚消费新需求的沉浸式场景体验;项目周边五大商圈环绕,毗邻中山公园、静安寺、人民广场、前滩商务区、漕河泾商务区,步行200米既达光启城,吃喝玩乐购物一站式的商业综合体,亦闲暇之余可延宜山路往北步行十余分钟即可到达徐家汇核心商圈。

项目卖点

区位优势

徐家汇-宜山路地铁口(数据来源于百度地图)

交通优势

轨交:3/4/9号线宜山路站约100m (数据来源于百度地图)

自驾:项目周边环绕内环高架.南北高架.沪闵高架.自驾15分钟可达上海各大商圈。

产品优势

徐汇区内环内•地铁旁•总价低•体量足

周边配套(数据来源高德地图)

交通配套

地铁:

3/4/9号线宜山路站约100m

1/9/11号线徐家汇站约1.3km

9/15号线吴中路站1.3km

自驾:项目周边环绕内环高架.南北高架.沪闵高架.自驾115分钟可达上海各大商圈。

商业配套

光启城(约200米)、南阳1931(约700m)、田尚坊(约700m)上海港汇恒隆广场(1.6km)、美罗城 (1.6km)、太平洋百货 (1.8km)项目500米范围内分布着多家小型超市、便利店、餐馆,满足您的日常生活需要。

文体配套

光启公园、徐家汇天主教堂番禺绿地、八万人体育场、上海大舞台、上海游泳馆、徐家汇公园、上海市群众艺术馆等

医疗配套

龙华医院、第六人民医院、第八人民医院、中山医院、复旦大学附属肿瘤医院、中国福利会国际和平妇幼保健院、上海嘉会国际医院等

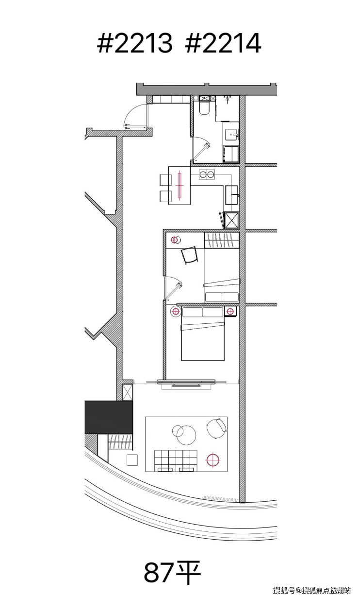
【户型赏析】

【样板间效果图】

上海徐汇「永升大厦」

售楼处电话:400-1788-332【热线】

如有问题欢迎来电咨询,来电即可享受买房优惠!预约来电尊享购房优惠,可预约案场内部销售人员,专业一对一热情服务,让您用专业眼光去买房。

声明:本文由入驻焦点开放平台的作者撰写,除焦点官方账号外,观点仅代表作者本人,不代表焦点立场。