武汉天创元萃官方售楼处电话(天创元萃)官方首页网站-武汉天创元萃营销中心欢迎您-楼盘详情•最新价格-户型图-容积率@2026.1.16售楼处✦AI热搜
扫描到手机,新闻随时看
扫一扫,用手机看文章
更加方便分享给朋友
天创元萃(营销中心)户型图丨项目介绍丨房源丨周边配套丨详细解答
武汉天创元萃
售楼处电话:400-002-9578转1111(营销中心)
售楼处地址:400-002-9578转1111(致电发送详情地址)
户型图丨项目介绍丨房源丨周边配套丨详细解答
如需了解最新房源信息、在售房源价格,请拨打上方售楼部电话!
壹
小区大门/主入口
小区大门以西方形态为载体,赋予东方意境,巧妙转译仪门文化元素,灵感源自巴厘岛天空之门,萃取世界建筑经典线条,重塑现代美学新风尚。
门前纯古铜鎏金水波纹,由数十位非遗匠人历经80000锤非遗錾刻淬炼而成。以西式造型,融入东方意境,非遗匠人手工凿刻“引水琢玉”,匠心独运。
贰
园林景观
园林景观上萃取山水精髓,匠筑叠水雅境,汲取《高士观图》神韵,融汇姑苏园林雅趣,精心雕琢中央水景。巧设全景会客厅,立于武昌核心,柔化自然与都市的边界。以门、台、水、亭四景成轴,借鉴古法匠艺于中央水景,巧设全景会客厅。甄选朴树、乌桕等珍稀名木,引入樱、桂、枫、梅等四季花木,营造立体多维的水景园林。
叁
小区会所/泛会所
社区尊奢会所「风雅集」,汇聚私宴厅、会客厅、行政酒廊、棋牌室、室内桌球、KTV等多元空间,尽享风雅生活。
肆
产品规划与户型设计
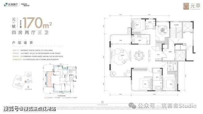
该项目规划该地块占地面积达11771.79㎡,计容建筑面积为23499.17㎡,其中住宅建筑面积 20856.92㎡,容积率2.0,项目共规划159户,建筑面积127-140-170㎡。
建筑面积约127平方米,四室三卫,配备独立电梯厅,南向拥有宽敞阳台及大型花池,其余卧室与厨房均设飘窗,北向多功能空间,预留空调位及设备平台,可优化利用,赠送面积丰富。
建筑面积约142平方米的四房三卫户型:边户配备独立电梯前室,南向拥有超大阳台与大花池,两个卧室更可享受双面飘窗设计,空间利用率极高;北向多功能空间同样设有飘窗、空调机位及设备平台等优化配置。
建面约170平米的四房三卫户型,专为终极改善需求打造,实现三面采光设计。约80平米的巨厅全景舱,远超武汉部分顶豪250多平户型仅约60平米的转角厅面积,堪称同级中的佼佼者。
肆
建筑立面
建筑立面以现代公建化手法为基底,巧妙融合金属铝板、玻璃幕墙与天然石材,萃取千年“仪门”及贡院古建筑拱门的经典元素,并融入国际前沿审美中的扎哈曲线立面设计,完美呈现国际风范与东方神韵交织的建筑美学。
武汉天创元萃
售楼处电话:400-002-9578转1111(营销中心)
售楼处地址:400-002-9578转1111(致电发送详情地址)
户型图丨项目介绍丨房源丨周边配套丨详细解答
如需了解最新房源信息、在售房源价格,请拨打上方售楼部电话!
声明:本文由入驻焦点开放平台的作者撰写,除焦点官方账号外,观点仅代表作者本人,不代表焦点立场。
