【武汉御江壹品青山樽】售楼处电话→户型→地址→御江壹品青山樽最新价格→楼盘详情→最新销售动态
扫描到手机,新闻随时看
扫一扫,用手机看文章
更加方便分享给朋友
武汉御江壹品青山樽
售楼处电话:400-100-1299转5888
网上售楼中心〢欢迎来电咨询〢1v1销售专业讲
项目地址:青山建设三路与临江大道交汇处
开发商:武汉和纵盛地产有限公司
物业:港联不动产服务(武汉)有限公司
产品类型:住宅
产权年限:70年
物业费:3.5元/㎡/月
水费:民水
电费:民电
交房时间:现房
交房标准:毛坯
在售情况:102-135-141㎡,170-196-270㎡
均价:19500元/㎡
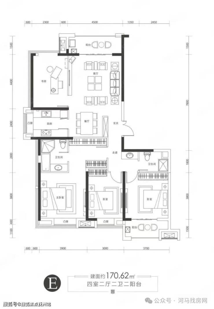
户型图展示:
御江壹品青山樽170平样板间赏析
御江壹品青山樽270平样板间赏析
御江壹品青山樽197平样板间赏析
区位点评:
御江壹品青山樽位于青山区建设三路与临江大道交汇处,在楼市中属于青山滨江商务区板块,距离二环线约2公里。
青山区发展比较成熟,目前整个区域最大的规划就是青山滨江商务区了,也是武汉五大滨江商务区之一,交通、环境、条件非常不错,未来商务兑现后,将是整个区域最繁华的板块。
地铁出行:
距离项目最近的地铁站是5号线建设二路站和和平公园站站都差不多,直线距离约700多米,步行过去不算太近,不过楼下有公交站,乘坐368路可直达建设二路地铁站换乘。
商业配套:
项目规划有大量的商业用地,青山滨江商务区也规划了大量的商业、商务用地,包括酒店、写字楼、体育中心等。
区域内的武商城市奥莱、红坊里、武汉印象城等都在项目1公里范围内,步行到武商城市奥莱最近,仅500米。
教育配套:
教育上,项目附近的学校比较多,吉林街小学江南春城分校、任家路中学、任家路中学滨江校区,另外距离武钢三中直线距离也只有1公里。吉林街和任家路中学都是青山区第一梯队的学校。
根据2023年划片,小区对口吉林街小学江南春城校区,初中对口钢城十三中,目前钢城十三中已与任家路合并,钢城十三中原校址就是现在的任家路中学滨江校区,含金量也很高。

医疗上,1公里范围内有普仁医院(三甲)和九医院。
武汉御江壹品青山樽
售楼处电话:400-100-1299转5888
网上售楼中心〢欢迎来电咨询〢1v1销售专业讲
声明:本文由入驻焦点开放平台的作者撰写,除焦点官方账号外,观点仅代表作者本人,不代表焦点立场。
