陕建名城·映蓝
售楼部电话:400-7887-332
预计首推432套房源
主推建面约90-130㎡3-4房!
房地联动价2.5万/㎡
精装交付!

效果图
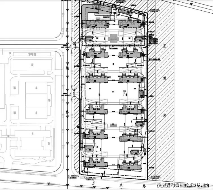
最新户型图
(仅供参考,以开发商正式公示为准)

上海奉贤陕建名城·映蓝
售楼处电话:400-7656-772


上海奉贤陕建名城·映蓝
售楼处电话:400-7656-772


上海奉贤陕建名城·映蓝
售楼处电话:400-7656-772


上海奉贤陕建名城·映蓝
售楼处电话:400-7656-772

2021年12月上海三批次土地拍卖中,大名城&陕西建工以66649万元底价竞得蓝湾国际社区地块,楼面价7025元/m²,联动价2.5万/m²,即如今的陕建名城·映蓝。
据悉, 陕建名城·映蓝拟规划建设10幢17-20层的高层住宅、2幢21层的保障房以及1幢2层商业配套用房,共704套可售房源。
项目占地面积41249.7㎡,容积率2.3,室内层高3米,由上海英家皇道物业管理服务有限公司提供物业服务。


陕建名城·映蓝是作为“映”系临港第5子,由千亿国企陕建集团与双股上市大名城首次携手打造。
陕建名城·映蓝承袭高端“紫金系”精工基因,择第五代国际社区——蓝湾国际社区丰盛之地,精筑无界光幕宽邸,以世界蓝湾的高度,迭新临港人居品质!
最新效果图






众所周知,要打造国际社区,交通、生态、配套、产业是“必要条件”!
如今的蓝湾便是如此,为了留住产业各类精英人才,配套真心给力咯~
在最初规划上,临港蓝湾国际社区的定位就是对标“尔湾”,其占位之高,不言而喻!
首先,最显而易见的就是交通网络大幅提升,未来交通越来越便利!
去年7月,两港大道快速化工程主线通车。这意味着从项目出发到滴水湖、浦东机场的车行时间将更为便捷快速。
这条路贯穿了临港滴水湖、蓝湾两大价值高地,又连接了上海又一增长极浦东机场,随着祝桥开始大规模开发,未来的浦东机场片区腾飞指日可待。
还有在建S3高速(在建),可直通张江,据悉S3还能和两港大道实现互通。
另外的S2沪芦高速,在2020年已全线免费通行,向北可以到达惠南、周康,并快速连接张江。

其次,蓝湾的生态堪称一绝!
海湾国家森林公园,规模达到约16000亩,相当于八个世纪公园的大小,约3.3公里滨海岸线!未来将是遛娃、休闲好去处~

上海海湾森林公园实景图
还有 皮划艇俱乐部、有氧跑道、尤文图斯足球学校等场地,更多健康生活方式持续注入蓝湾!

皮划艇俱乐部实景图
除了一流的生态环境和畅达全城的交通优势,蓝湾国际社区当下的配套也很优秀—— 尊享丰富商业资源!
蓝湾天地——约6万方一站式商业综合体(已开业),为社区生活增添了一抹精彩与惬意。集萃法国雅高旗下美爵酒店、大润发FA-STORE生鲜超市、美格菲健身会所、星巴克等国际知名品牌。


蓝湾天地签约品牌示意图
与此同时,还引进了上海顶流的教育资源!
今年1月25日,临港奉贤园区新建公办高中开工仪式举行,并官宣该校为:华二附中,预计2023年5月竣工。
这意味着华二正式落户临港蓝湾,有如此重磅教育资源,也说明上海对于蓝湾规划的肯定~相信未来这里的教育将持续加码!

华二附中效果图
可以说,这里结合“生态、运动、文化、产业、商业”等多重生活体系,完美打造高品质的国际社区,而陕建名城·映蓝可以说完美适配。
陕建名城·映蓝
售楼部电话:400-7887-332
如有问题欢迎来电咨询,来电即可享受买房优惠!预约来电尊享购房优惠,可预约案场内部销售人员,专业一对一热情服务,让您用专业眼光去买房。