宁波【保亿姚江润园】官方预约热线-地址-户型-保亿姚江润园-房价多少-2026最新价格【保亿姚江润园】售楼热线-来电预约优惠
扫描到手机,新闻随时看
扫一扫,用手机看文章
更加方便分享给朋友
宁波保亿姚江润园
售楼处电话:400-100-1299转5888
网上售楼中心〢欢迎来电咨询〢1v1销售专业讲解
保亿姚江润园(上图),就是江北永红区块那个新项目,他天然就带着很多的标签。江北区首个第四代住宅,江北区唯一全新时代的高端改善楼盘,江北区唯一叠墅新盘,容积率1.8,应该是目前江北核心区楼盘里最低的,等等……如果你是江北的改善购房群体,且不说你买不买,但你在选择的时候,基本绕不开他。所以,我们就有必要来聊一聊这个项目!
首先姚江润园有两类产品形态,对应不同的客群。
第一类比较高端,叠拼(上图),看起来还是很赞的吧?从已知的信息来看,叠拼是四层,分上下两叠,上叠是约259m²,下叠是约252m²。唯一的区别就是边套的户型略有差别,目前展厅里有叠拼模型(下图),有兴趣的可以自己去看看,记得要找石甜甜(文末有码)。
上叠有露台,下叠有花园就不多说了,而且有各自的独立电梯!重点说一下地下室,上叠下叠都会有,且都是赠送的。地下室挑高6米多,这一点很棒!
模型家具仅示意 以交付为准
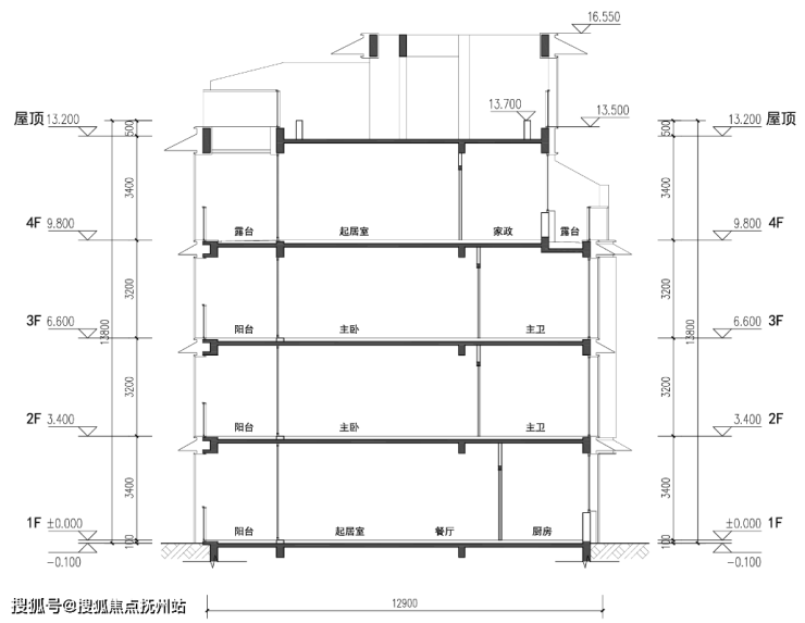
我以前一直不建议买叠拼,原因就是开间太小,但现在的叠拼基本解决了这个问题。这次姚江润园的叠拼,开间来到了约11.5米,客厅开间约7.7米。包括他的层高,也比以往的叠拼要高,下叠首层层高约3.4米,二层约3.2米。上叠因为做了倒置处理,所以是二层约3.4米,一层约3.2米(下图)。这个自己理解一下,是现在很流行的做法,避免了业主去顶楼露台还需要经过卧室区的问题。所以说,现代叠拼的空间尺度感是拉满的,完全配得上“墅”的说法。

接下来就是高层,一共8幢,分别是14-20层,都是两梯两户,带有四代宅标志性的空中花园,并且运用了奇偶错层出挑的设计。从效果图来看,应该是偶数层南向露台,奇数层东西向露台,而且北向好像还有露台!因为单层层高约3.15米(下图),那么在错层设计之下,空中庭院就拥有了两层层高,挑高达到约6.3米。而且高层全部架空,架空层层高也有约5.1米,至少从基础数据上来看,符合当下豪宅标准了!

高层面积也很简单,就两类,分别是约155m²和约175m²,具体看第一张户配效果图。户型呢我也看过了,因为没有正式对外发布,我就不发了,有兴趣的可以自己去展厅看一下,记得要找石甜甜(文末有码)。
约155m²的户型,做了四房,双套房设计,客厅面宽达到了约7.65米。而且有一个巨……大的露台,北面也有一个巨……大的家政平台。说的严谨一点,空间使用率上面来说,的确很夸张!
约175m²的户型,同样也有巨……大的露台,还有一个巨大的厨房。重点是,都是五房!没错,是五房!这一点对于多孩家庭来说,非常友好!偶尔也会有粉丝找我,想买五房的新产品,但很难找。一个是几乎没有这样的新产品,另一个就是面积太大,基本是300+,总价也就高不可攀了。这一回姚江润园给出了解题思路,170+的五房!说实话,我很期待他的实景样板房,到底是怎么做到的呀?四代宅的空间使用率,这么离谱的嘛?
宁波保亿姚江润园
售楼处电话:400-100-1299转5888
网上售楼中心〢欢迎来电咨询〢1v1销售专业讲解
声明:本文由入驻焦点开放平台的作者撰写,除焦点官方账号外,观点仅代表作者本人,不代表焦点立场。
