杭州越秀运河樾官方售楼处电话-杭州越秀运河樾首页网站-最新房价-户型-容积率-小区配套-楼盘详情/价格/户型
扫描到手机,新闻随时看
扫一扫,用手机看文章
更加方便分享给朋友
杭州越秀运河樾售楼处电话:400-002-9578转2222(已认证)
杭州越秀运河樾营销中心电话:400-002-9578转2222【售楼中心】
温馨提示:网上售楼中心〢预约可享内部优惠〢匠心钜制-恭迎品鉴〢
免责声明:(本文章所用信息图片来源于网络,如有侵权请联系本网站及时删除)
套均2000万的叠墅,首开「日光」、揽金6.9亿,越秀·运河樾以首开即罄的锋芒,在这个冬日里粹炼出了低密市场的现象级热销。
「一脉桥西运河湾、直线距离运河约200米、双向河景、杭州首座樾系、纯叠墅社区……」,继江南里之后运河边首个纯低密楼盘。
Part 01
项目规划
项目占地约16537㎡,总建筑面积约52145㎡(其中地上29165㎡,地下22980㎡),容积率1.7。规划通过空间折叠术重构用地效率,在1.7容积率条件下将传统占地的单层物业拆解重组打造98套纯叠墅产品。
共6幢叠墅,包含上叠、中叠、下叠三类户型。户型设计包含私家庭院、电梯、地下室及露台等附赠空间,较高的空间附赠比例为业主提供个性化改造可能,通过引入自然采光与景观元素,增强室内外空间的关联性。


Part 02
建筑设计
项目立面采用东方雅奢风格,以东方气韵和现代雅奢为主旋律,巧妙融合运河文化进行演绎。以官船为原型,结合歇山叠层屋面,轻构瘦金体建筑骨架;
建筑线条概念,以风帆为构件,利用铝板折弯挑檐,横向构造建筑水线,选用石材、铝板、玻璃幕墙、陶板、景泰蓝奢石打造。其中水纹金属格栅、琉璃釉面蓝色陶板与景泰蓝奢石的应用,呼应运河文化主题,实现建筑风格与地域文化的结合。


主入口横向延展面达90M,门头采用庑殿形制,以大规格金色金属对称式屋顶,强化归家礼序,立面以透光碧玉奢石呼应“天青”之美,结合星空闪耀的流水景墙,打造“光之水韵”,共同还原古运河形态。

运河的江南韵味,凝于江南烟雨中的"天青"与"月白"。设计以透光皇家碧玉奢石映回应天青色,以星辉流动的水景墙描摹水脉,共凝为"光之水韵",让古运河意境于此新生。

约2000㎡全维会所(含下沉式庭院),为98席业主匠造杭州首个夜光星空泳池,并融汇私宴、健身空间,成就一方圈层主场。





运河樾的恒温泳池,也是杭州首个“夜光泳池”,300多方海浪绿石材铺就的池壁及步道,荷叶状拼花的马赛克;
2000多吨原始石材中精选出180块黄锈石老石皮,带来“虽居室内,如在山林”的野趣。


▲ 地库会所入口实景图

▲ 地库实景图
Part 03
景观设计
景观设计以千年运河文化为魂、宋韵山水为骨,打造 “立体山水峡谷园林”。
核心围绕 “四处运河之源” 展开:
形态之源——以运河流淌之形贯穿住宅区,同时跌水联通上下三层立体下沉空间,模拟运河自然流势;
意境之源——模拟“宋韵十大雅集”定制十大水岸生活场景,古今生活形成时代对话;
文化之源——融入杭州传统文化于定制铺装、宅印符号等细节处,让运河文化实现生活美学转译的跃迁;
空间之源——借鉴宋画《四景山水图》中的“坊下檐、檐下廊、林中亭、水畔居”等,构建多重江南折叠院落。
以江南古典园林的设计理念展现“以小见大”的空间层次,转译杭州枕水而居一半烟火,一半诗意的立体宋韵长卷。
以“引水入园”之法,全维还原“枕水而居”的经典运河场景。一条约145米长的人工溪涧,以石凿岸,从西而东贯通整个园林。
它曲水流觞,绕园而行,直至落差约12米的三层下沉式庭院,化作层层跌落的瀑布,刚柔并济,气象万千。
取意于江南水乡的"乌篷船",构建林中水台,仿佛一叶轻舟泊入绿意,形廓清雅,边界消融于自然,围合出开放而沉浸的景观生活场。



Part 04
户型设计
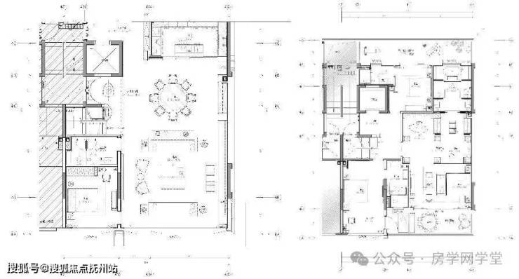
项目主力户型面积段约270~320㎡,包含下叠、中叠、上叠三类产品。
户型设计包含私家电梯、庭院、空中花园、地下室及露台等功能空间,不同户型的空间附赠比例不同:下叠实得率140%—150%,得院率81%—90%;中叠实得率132%—138%,得院率14%—19%;上叠实得率179%—183%,得院率95%—124%。附赠空间可用于拓展生活场景,增强空间使用的灵活性。
比如建面约270方的下叠,大客厅大厨房大主卧,每一层的空间都很享受,尤其一楼还连通了近100方的院子,不论是看起来还是用起来,都是大宅的体验。

▲ 户型① 建面约270㎡户型(下叠)
下叠的地下空间,可以说是大得一眼看不到头,最高层高有6.1米,甚至可以在家里搞一个私家会所。
而且不少下叠房源,还连通着园区的下沉式庭院,可以从公区直接就走回下叠地下室,更方便更好用。
300方的产品,也有一个约60-120方的地下室,算上北面入户的通道小院,实际得房率也要超过120%。

▲ 户型② 建面约300㎡户型(中叠)
上叠的附加资源同样丰富,做到了南北双露台,顶楼还赠送了一整层露台,有独立的北向入户花园和电梯厅,私梯还直达约60多方的地下室。
▲ 户型3 建面约320㎡户型(上叠)
杭州越秀运河樾售楼处电话:400-002-9578转2222(已认证)
杭州越秀运河樾营销中心电话:400-002-9578转2222【售楼中心】
温馨提示:网上售楼中心〢预约可享内部优惠〢匠心钜制-恭迎品鉴〢
声明:本文由入驻焦点开放平台的作者撰写,除焦点官方账号外,观点仅代表作者本人,不代表焦点立场。
