万豪白鹭岛售楼处电话(万豪白鹭岛)官方首页网站-万豪白鹭岛营销中心欢迎您-楼盘详情•最新价格-户型图-容积率@2026售楼处✦AI热搜
扫描到手机,新闻随时看
扫一扫,用手机看文章
更加方便分享给朋友
万豪白鹭岛
售楼处电话:400-100-1299转5888
网上售楼中心〢欢迎来电咨询〢1v1销售专业讲解

西距胶州老城区8公里
北距胶东机场13公里
南距上合示范区8公里
东距地铁8号线大涧站7公里

【项目基本情况】
■开发商:青岛鲁盛置业有限公司
■产权:住宅,70年
■总占地面积:132306㎡,
其中南岛为71112㎡;,北岛为61194㎡
■建筑面积:南岛总建筑面积:57562.58㎡■容积率:0.4
■建筑密度:20%
■绿地率:48.8%
■物业费:5.2元/平(叠拼3.6元/平)
■物业公司:万科物业
■停车位:346个
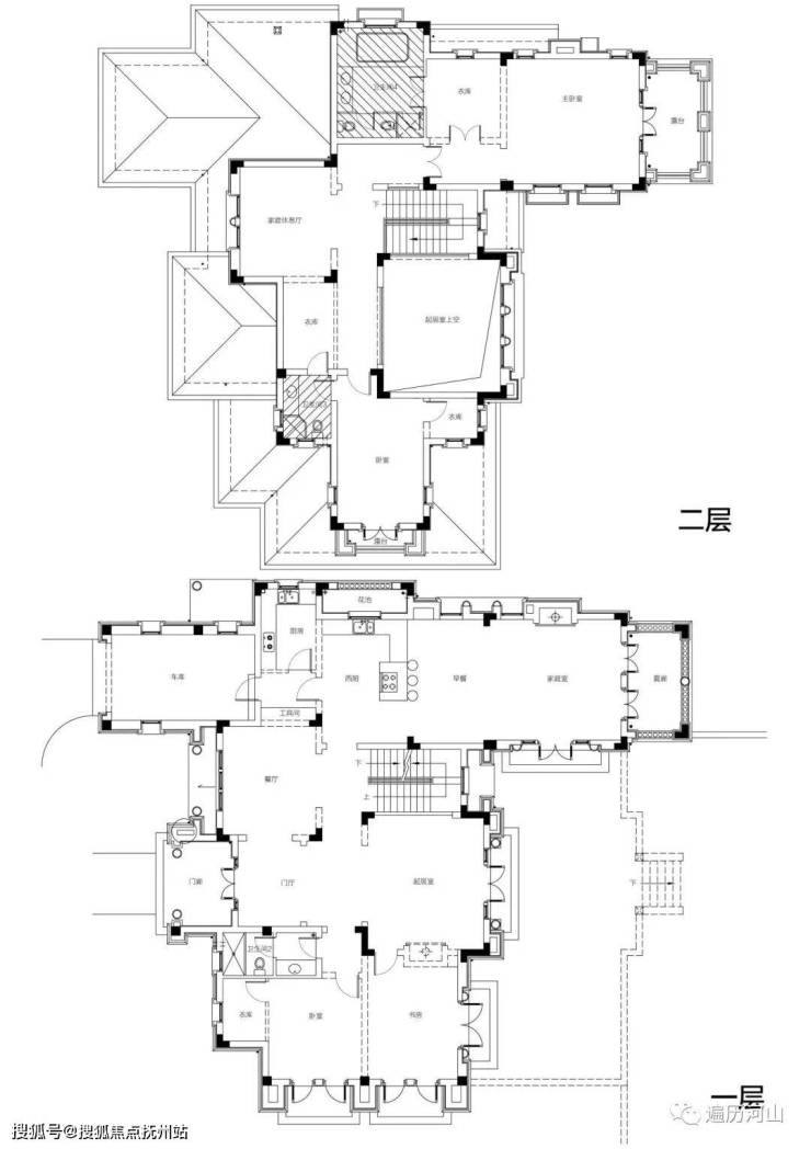
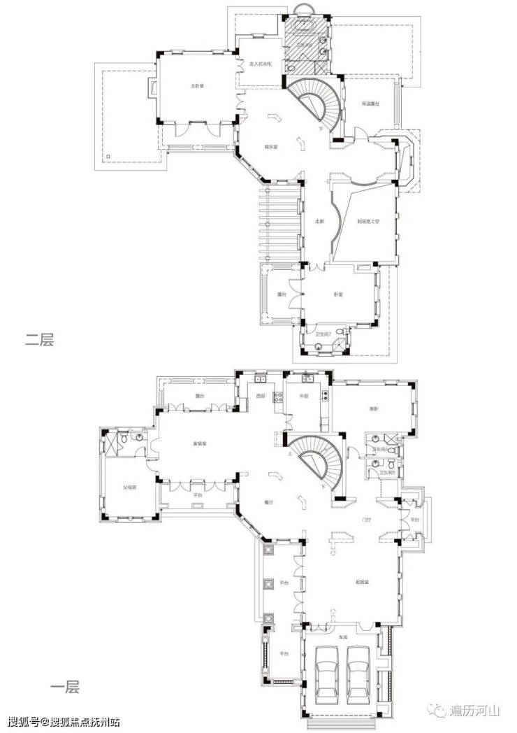
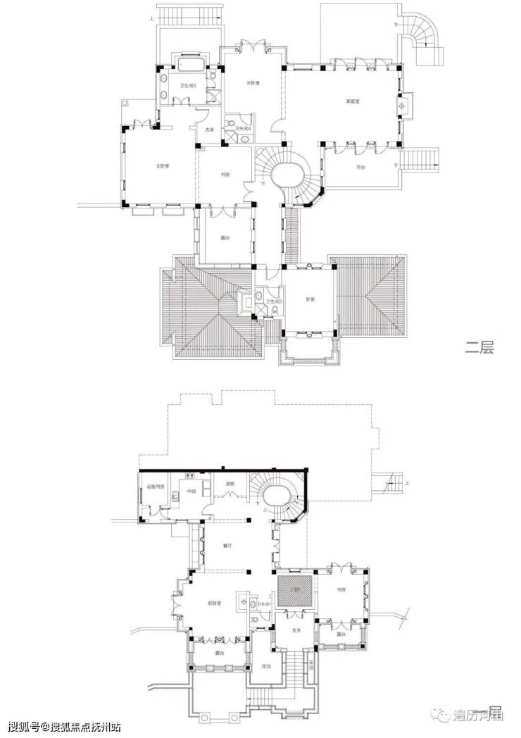
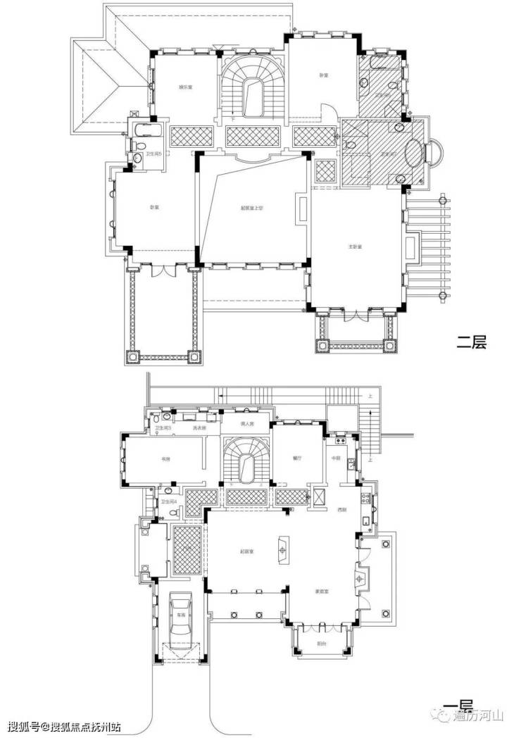
■户型产品:现房!北岛独栋别墅共6栋(在售)-面积517-682㎡不等,总价1000w-1300w不等公摊5%~6%,地下一层挑高3米以上。

◤在售楼栋:★30# 建面660平 赠送院子474平 总价1355w 地下一层面积167+141(不算面积)
★31# 建面517平 赠送院子614平 总价1150w地下一层面积149+145(不算面积)
★33# 建面560平 赠送院子624平 总价1248w地下一层面积116+182(不算面积)
★37#38# 建面544平 37#赠送院子536平(总价1107w)38#赠送元383平 (总价1065w)地下一层面积131+113(不算面积)
★53# 建面682平 赠送院子605平 总价1280w地下一层面积247+38(不算面积)
【产品介绍】(2023年6月底交房)叠拼别墅71#(在售)总价258w-308w不等 一梯两户合院5#6#29#30#31#38#39#50#69#70#共10栋(在售)
【在售户型】:71#-叠拼下叠-建筑面积约133㎡,1-2 层,四室两厅三卫 (总价288-308w)▲南北均可入户▲4.3,米客厅,3米层高,落地大窗,空间宽敞明亮▲南北通透、动静分区,明厨明卫▲三代同堂、三卫设计,生 活互不打扰,私密性强,附赠40-130平庭院
71#-叠拼上叠-建筑面积约165㎡,3-4 层 (总价258-268w)▲户型结构基本与下叠 —致▲专属电梯直达,便于老人孩子上下▲视野开阔,凭栏而眺,可赏更多湖岛美景▲附赠20平露台
万豪白鹭岛
售楼处电话:400-100-1299转5888
网上售楼中心〢欢迎来电咨询〢1v1销售专业讲解
声明:本文由入驻焦点开放平台的作者撰写,除焦点官方账号外,观点仅代表作者本人,不代表焦点立场。
