滨杭·滨纷城(杭州滨杭·滨纷城)售楼处电话_预约看房_滨杭·滨纷城楼盘详情-滨杭·滨纷城2025最新房价-户型(杭州滨杭·滨纷城)售楼处电话_预约看房
扫描到手机,新闻随时看
扫一扫,用手机看文章
更加方便分享给朋友
【项目名称】滨杭滨纷城
【项目位置】杭州临平区荷禹路与康信路交叉口
【开发商】滨江集团&杭铁集团
【容积率】1.22-1.6
【项目楼高】小高层(12-18层)
【绿化率】35%
【产品户型】建面约89-139㎡高得房率户型
【物业公司】滨江物业
【物业费】3.6元/㎡/月
10开楼幢分布

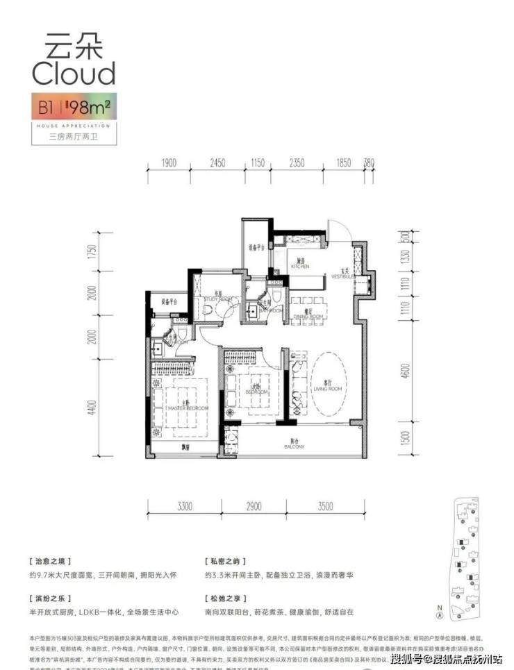
【户型赏析】
【区域价值】
都会之城——地铁9号线上的城市镜像
滨杭滨纷城示范区实景图
东湖新城中芯区,无缝临平北站综合体(规划)
同步“杭州城东新中心”城市发展战略,坐标临平东湖新城核芯区,西侧及南侧紧邻规划临平北站综合体,未来将与北站协同,作为东湖新城重要配套空间,引领东湖新城核芯区的崛起。
临平北站规划图(图片来源临平发布)
地铁9号线车辆段上盖,高速串联钱江新城
横跨地铁9号线兴元路站(在建)、康信路站(在建)两大站点,毗邻临平主轴荷禹路、宁桥大道,快速接驳钱江新城、城东新城、滨江,奢享融入城市核芯的生活圈。
全维繁华商圈,移步缤纷的都会奢享
坐拥临平万达广场、临平银泰等,项目自带约10万㎡商业配套,奢享都会缤纷。
临平银泰inPARK实景图
一站式教育资源,一脉人文的城市书香
配置双幼儿园,签约杭州二中白马湖教育集团临平东湖学校(九年一贯制),呵护未来,成长无忧(学校为政府部门规划及负责引进,我司不承诺学区,具体办学性质、开学时间、规模及学区以政府公布为准)。
杭二中白马湖教育集团效果图(图片来自临平发布)
都会公园谧境,栖息身心的城市留白
打造约7万㎡公园,区域荟萃临平山、玉架山考古遗址公园,龙安湖公园、龙安湖体育公园等自然资源,隐逸悠闲。
声明:本文由入驻焦点开放平台的作者撰写,除焦点官方账号外,观点仅代表作者本人,不代表焦点立场。
