南通运河院子(营销中心)首页网站-销售中心(售楼处)-楼盘欢迎您-地址-价格-户型-小区环境-楼盘详情-交房时间-周边配套-售楼处电话
扫描到手机,新闻随时看
扫一扫,用手机看文章
更加方便分享给朋友
南通运河院子
售楼处电话:400-780-7338√√【热线】
如有问题欢迎来电咨询,来电即可享受买房优惠!预约来电尊享购房优惠,可预约案场内部销售人员,专业一对一热情服务,让您用专业眼光去买房。

项目位于南通主城外环西路与钟秀西路交汇处,是南通首个四代滨水洋房,被通吕、通扬运河、大港河三大水系环绕。项目规划联排别墅、洋房,总共只有185户,其中别墅59户,户型建筑面积220-430㎡,洋房126户,户型建筑面积125-156㎡。项目由南通市城市更新建设有限公司与招商建管携手打造,国央企合作,品质有保证。售楼处电话:400-780-7338√√【热线】
效果图
下面跟着小编深入了解一下四代住宅项目的具体情况:
01
运河畔,五龙芯
项目所在的五龙汇&任港湾片区正全力打造城市副中心,随着10大重点工程相继落地,分水岛东岛、西岛、五龙汇生态公园等多个生态修复项目已全面建成,通吕绿廊景区成为无数人休闲、娱乐的网红打卡点。

实景图
区域交通路网发达,五星级艾美酒店、万达、龙信、山姆等多座商业地标,城中小学五龙汇校区、南通市第四人民医院等优质资源,都环绕在侧。

实景图
未来,还将在通吕运河两侧入江口处规划打造总部大厦、高端星级酒店……加速腾笼换鸟。售楼处电话:400-780-7338√√【热线】

规划图
02
隐于闹市之中的岛居生活来了
运河院子项目位于五龙汇任港湾外环西路东、钟秀西路北侧,被通吕、通扬运河、大港河三大水系环绕,天然形成了一个独立的岛屿状土地,既在繁华之中,又能安享静谧。

区位图
楼下不仅环绕着运河、水系,更有通吕绿廊景区、分水岛公园,直面水、园、岛环抱而成的多重生态景观面,有看不尽的繁花与绿意。

实景图
03
南通首个
四代洋房+城市别墅
运河院子项目还有定制级的居住享受,做到了全南通第一个将四代洋房和联排别墅结合的楼盘。

效果图
项目具有5大亮点:
★亮点1:稀缺的低密规划
售楼处电话:400-780-7338√√【热线】
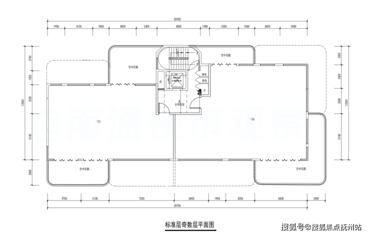
项目容积率只有1.16,并且利用地块的先天优势,进行了前低后高的布局形式,打造四代洋房和联排别墅,总共只有185套房,包含126户洋房、59户别墅。

效果图

效果图
★亮点2:全新四代洋房

空中庭院效果图
仅供参考,不作为交付承诺
据了解,部分户型拥有两个空中花园,所有的体验感全部double,这样的设计在南通乃至全国都是非常少见的。

★亮点4:户型实得率高
运河院子四代洋房户型建筑面积约125-156㎡,项目通过露台+阳台+飘窗等叠加赠送面积,最大可达成近140%的实得率。

效果图
★亮点5:打造高端商业配套
运河院子自带建筑面积约4000㎡高端商业,未来将引入社区超市、餐饮店、精品店、咖啡馆等业态,下楼就能体验烟火生活,带给业主前所未有的体验。

南通运河院子
售楼处电话:400-780-7338√√【热线】
如有问题欢迎来电咨询,来电即可享受买房优惠!预约来电尊享购房优惠,可预约案场内部销售人员,专业一对一热情服务,让您用专业眼光去买房。
声明:本文由入驻焦点开放平台的作者撰写,除焦点官方账号外,观点仅代表作者本人,不代表焦点立场。
