圣奥晓风望月府售楼处电话→圣奥晓风望月府售楼中心电话→圣奥晓风望月府楼盘详情→首页网站→楼盘百科→圣奥晓风望月府售楼处电话→24小时热线电话
扫描到手机,新闻随时看
扫一扫,用手机看文章
更加方便分享给朋友

全小区仅220席 !1.5容积率低密纯洋房社区!
一脉运河新城,城北低改善楼盘!
满足一个月社保或落户即可购房!
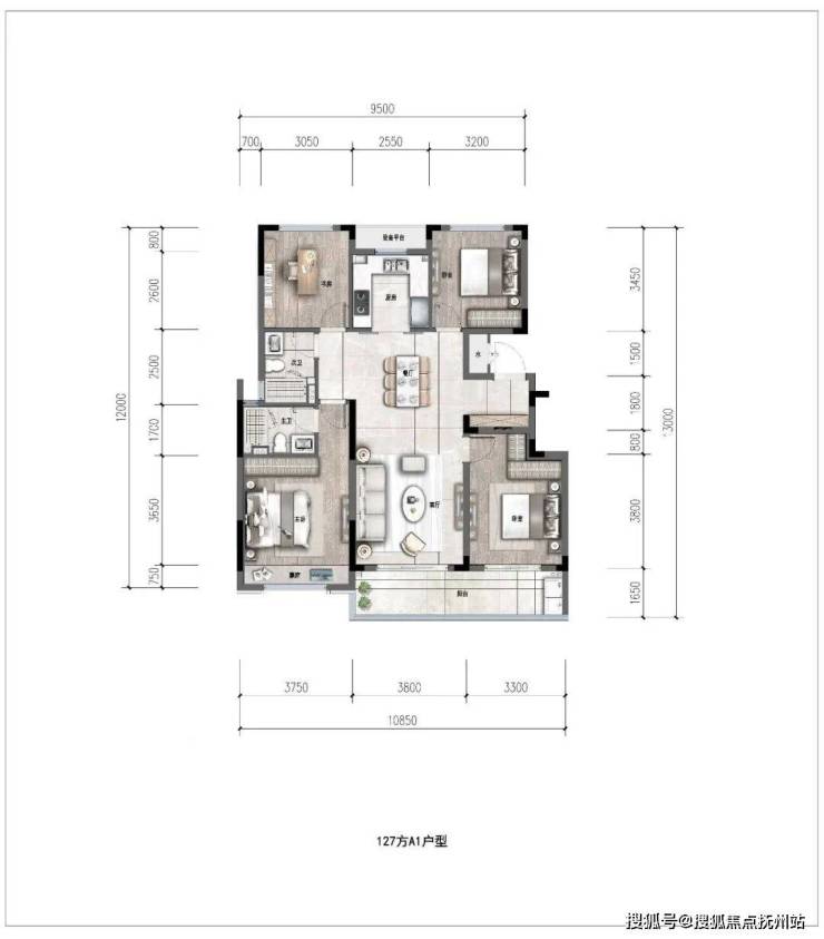
超配装标/200米地铁/300万级纯改善!

【配套优势】
3大商圈环伺,一站吃喝玩乐购!秋石高架向南约7公里,便是中大银泰城和新天地购物中心.杭州第二座万象城-城北万象城距项目直线约6.5KM,预计2024年1月开业,同样也能满足您对一站式购物体验的要求。同时丽水路、拱康路的路网建成使得项目可以直达拱墅区核心商圈乐堤港等商业综合体。
项目南面5公里,就是三甲医院邵逸夫大运河分院,已于19年底开工建设,建成后,崇贤将是直接受益者之一。除了去邵逸夫医院以外,项目向南约2km就是杭州市第一人民医院崇贤分院。

【教育优势】
项目2公里范围内:涵盖了近11所幼儿园、4所小学、2所中学。
幼儿园:崇贤一幼崇韵园区、崇贤一幼陆家桥园区、崇贤二幼崇杭园区等
小学:崇贤小学(2024年5月建成)、崇贤一小、崇贤二小
中学:崇贤中学、沾桥中学
声明:本文由入驻焦点开放平台的作者撰写,除焦点官方账号外,观点仅代表作者本人,不代表焦点立场。
