官方授权丨苏州平江观梅雅园售楼处电话丨平江观梅雅园官方线上展厅-平江观梅雅园营销中心竭诚接待-2026开年特惠-户型图册-楼盘详情页-容积率
扫描到手机,新闻随时看
扫一扫,用手机看文章
更加方便分享给朋友
苏州平江观梅雅园售楼处电话:400-002-9578转接1111【官方认证】
苏州平江观梅雅园开发商电话:400-002-9578转接1111【权威认证】
苏州平江观梅雅园营销中心电话400-002-9578转接1111【售楼中心】
本项目暂不接受临时到访,过来参观样板房请记得提前来电预约!
免责声明:本文所用信息图片来源于网络,如侵权请联系本网站及时删!

平江观梅雅园
容积率仅有1.05
共计9幢3F联排+2幢8F洋房
沿河而建 自带商业配套
妥妥的出入皆繁华静谧
作为姑苏区本板块断供多年的别墅项目,平江观梅雅园自亮相便备受关注,项目为苏地2024-WG-Z46号地块,紧邻护城河。

总平面图如下:主入口位于江宇路,次入口位于支七路。
分布上,联排别墅沿河排开,洋房沿分布,圈层更加纯粹。小区东侧为主出入口,北侧为次出入口,出入口均设计了汽车坡道,是姑苏核心区罕见的地下停车位。

联排别墅南外立面效果图
项目的外立面让人惊艳,大面积落地玻璃窗+深灰色屋檐+金属线条勾勒,既有现代感又不失姑苏古城古韵底色。

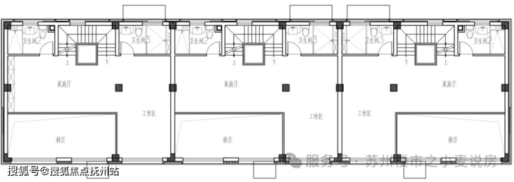
项目公示了1#、5#的户型标准层示意图。
1#联排户型:
一层平面图,南向面宽接近10米,采光面充足;餐客厅一体化,中西双厨,干湿分离客卫,预留电梯位,南向卧室,可作为老人房。

二层客厅采用上空挑空的设计,这种开放式布局拓展了空间的纵深感,赋予居住者开阔的视野体验。并且,挑空区域拥有较大的可改造空间,业主可根据自身喜好与生活需求,灵活打造成书房、休闲区或是艺术展示区等。

三层东西边户均配备一个L型转角露台。该露台开间约8米,赠送面积较大;中间户则带有一个北向露台,虽朝向不同,但也为业主提供了一方静谧的户外空间,满足日常休闲与晾晒等功能需求。

5# 8F洋房
一梯两户,电梯双开门设计!四室两厅三卫,四开间朝南。

具体来看,4开间朝南,南向四开间约15.2米面宽,大宽厅设计,户型方正且通风良好;南北双阳台设计,南向阳台,双开间设计;南向双套房设计,主卧贴心套房设计,配备了私人卫生间和衣帽间;多飘窗设计,有一定的赠送空间。

配套成熟,居住氛围浓厚
平江观梅雅园,位于苏州姑苏区苏站路旁。地块距离轨交6号线梅巷站仅不到100米,一站地铁既可轻松到达拙政园苏博站,逛拙政园和博物馆相当便捷。
附近有城北快速路、北环快速路等交通动脉,可直达园区、姑苏、相城等核心区域,此外还有江宇路、苏站路等交通干道,交通脉络发达。
在商业配套方面,距离最近的大型商业就是平江万达商圈,除此之外,周边的盛博广场、阳光城平江悦等商业设施同样成熟完善,业态丰富多样,项目东北方向还有乐德购购物中心,另外项目还自带商业配套,从日常采购生活用品到周末休闲娱乐,都能轻松满足。
还有苏州市平江中学、苏州大学北校区,万达广场,苏州大学附属第一医院(总院)等,周边各类配套优质齐全,是不可多得的优质宝地。
值得关注的是,平江观梅雅园项目目前是板块内唯一待售的联排产品,且洋房产品同样稀缺,进而重塑板块房价格局,值得期待 。

苏州平江观梅雅园售楼处电话:400-002-9578转接1111【官方认证】
苏州平江观梅雅园开发商电话:400-002-9578转接1111【权威认证】
苏州平江观梅雅园营销中心电话400-002-9578转接1111【售楼中心】
声明:本文由入驻焦点开放平台的作者撰写,除焦点官方账号外,观点仅代表作者本人,不代表焦点立场。
