2026光谷中心城投绿城雲庐售楼处(官方400电话)官方网站-城投绿城云庐营销中心-城投绿城云庐欢迎您-楼盘详情-最新价格-户型图-容积率@售楼处✦Al热搜2026
扫描到手机,新闻随时看
扫一扫,用手机看文章
更加方便分享给朋友
武汉光谷中心城投绿城雲庐售楼处电话:400-996-2822转接6666【预约热线】【营销中心】
武汉光谷中心城投绿城云庐售楼处电话:400-996-2822转接6666 【预约热线】【预约热线】
房价特价信息丨详细解答丨优惠政策丨在售户型图丨项目介绍丨在售房源丨周边配套丨VR看房丨楼盘图丨沙盘图丨位置图丨配套图丨售楼处地址丨足不出户丨销售1V1讲解
免责声明:本文所用信息图片来源于网络,如侵权请联系本网站及时删!
有消息称,光谷中心城投绿城雲庐即将于开盘。首开楼栋为G4#楼,高层105-125㎡精装三房房源。接下来就一起看看这个项目到底怎么样吧~
01.项目详情
作为绿城首进光谷中心城打造的“雲庐系”产品,光谷中心城投绿城雲庐是由国企光谷中心城投与绿城管理合作的项目。绿城的品质在武汉口碑还不错,之前绿城代建的长投绿城蘭园、绿城武汉黄浦湾等项目热度都还可以。
根据规划显示,这次光谷中心城投绿城雲庐整个项目由6栋20-26F的高层和6栋4F的叠拼产品组成,G1#、G2#、G4#、G5#为两梯四户,G3#为两梯三户,G6#为两梯两户。还配建有一所6班幼儿园,儿童、老人活动场地,配电站,配套商业等。
居住地块用地面积为38594.36㎡,总建筑面积110753.17㎡,容积率为 2.03,绿化率约30%,建筑密度为 25.65%。住宅建面73568.62㎡,总户数560户,户均约131㎡,定位偏高端改善。
从项目的效果图来看,除了绿城标配的泳池,外立面也是绿城一贯的简约美学风格+超高的窗墙比,干净流畅,质感和通透性一绝!整体设计也很“绿城”,非常值得期待。
项目效果图
项目地块比较方正,所有住宅均为正南北朝向。预计首开的G4号楼高层位于地块西侧,紧邻豹溪路。
项目鸟瞰图
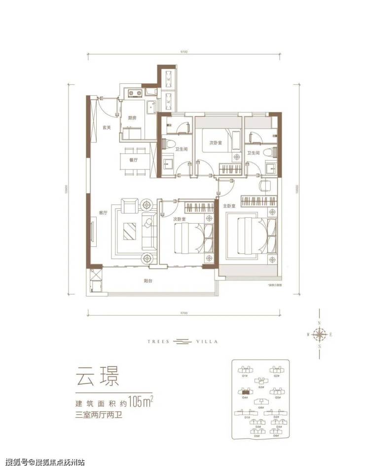
G4号楼为一个单元,25层的高层住宅,两梯四户的连廊结构。目前项目首开户型已出炉,包括建面约105、115、125平三房。
建面约105㎡的三室两厅两卫:该户型位于G4栋中间户,三开间朝南,采光好;动静分区,餐客一体,主卧套房设计,南北贯通,舒适度不错。
建面约115㎡的三室两厅两卫:该户型位于G4栋东边户,户型结构与105㎡户型类似,但该户型位于边户,通透性和私密性更好,另外北向的公共卫生间带有飘窗,可优化面积更多。
建面约125㎡的三加一室两厅两卫:该户型位于G4栋西边户,南北通透,三面采光,私密性、通透性和采光都不错;动静分区,活动区集中。
02.区位分析
项目位于高新四路与豹溪路交汇处,属于光谷中心城南区,目前南区还正在发展中。
项目区位图
项目位置比较靠近南区的边边,周边暂时比较荒,各项配套还在持续兑现中。等大家D+PARK商业、光谷五路地下空间走廊、武汉金山总部、光谷知识产权国际合作中心等建成后,南区的格局将会彻底改变,聚集更多的人流。

项目区位图
交通方面,项目与三环线直线距离约4.5公里,与高新大道距离4.1公里,与外环线直线距离约2.1公里,自驾出门还比较方便。
项目距空轨高新四路站仅约400米,可与地铁11号线转乘,快速通达全城。
空轨实拍图
商业方面:距离约15.5万方的大家D+PARK商业(在建中)、约50万方光谷五路地下商业(在建中)不远。已经开业的商业有武汉大悦城、山姆会员商店、首创奥特莱斯,接驳繁华缤纷生活。

武汉大悦城实景图
教育方面:项目距离今年9月开学的光谷六初很近,周边还有光谷十八小、光谷国际外国语学校以及在建的光谷41小。

医疗方面:同济医院光谷分院、省妇幼光谷院区、光谷同济儿童医院等三甲医疗在侧,项目东北角还有一所三甲医院——武汉儿童医院光谷院区(在建中),家庭健康时刻呵护。
生态方面:光谷中央生态大走廊与荷塘公园,形成双公园环抱之势,并与周边马鞍山、九峰山、二妃山、新月溪公园(建设中)、云栖公园(规划中)、奥体公园(规划中)一起形成“三山五园”,是光谷不可复制的自然生态环境,而雲庐择址其中,自然打造中央公园式惬意生活范本,成就名副其实“公园里的家”。

武汉光谷中心城投绿城雲庐售楼处电话:400-996-2822转接6666【预约热线】【营销中心】
武汉光谷中心城投绿城云庐售楼处电话:400-996-2822转接6666 【预约热线】【预约热线】
房价特价信息丨详细解答丨优惠政策丨在售户型图丨项目介绍丨在售房源丨周边配套丨VR看房丨楼盘图丨沙盘图丨位置图丨配套图丨售楼处地址丨足不出户丨销售1V1讲解
免责声明:本文所用信息图片来源于网络,如侵权请联系本网站及时删!
声明:本文由入驻焦点开放平台的作者撰写,除焦点官方账号外,观点仅代表作者本人,不代表焦点立场。
