苏州星河湾售楼处电话(苏州星河湾官方最新发布)→售楼中心电话→楼盘百科→首页网站→楼盘测评→营销中心电话→24小时热线电话
扫描到手机,新闻随时看
扫一扫,用手机看文章
更加方便分享给朋友
苏州星河湾售楼处电话:400-002-9578转2222(已认证)
苏州星河湾开发商电话:400-002-9578转2222【售楼中心】
温馨提示售楼中心〢预约尊享1V1品鉴礼遇〢匠心钜制-恭迎品鉴〢
温馨提示本项目暂不接受临时到访,过来参观样板房请记得提前来电预约!
免责声明:(本文章所用信息图片来源于网络,如有侵权联系本网站删除)

项目的地块用途为城镇住宅用地,占地面积42931.6平,总建筑面积114171.67平,计容建筑面积77276.88平,容积率1.8.
根据规划,项目拟建11栋14-21F住宅。
项目此前规划调整来看,变化也是比较大的,项目的一至三层的外墙立面调整为石材立面,品质感更高了!
1,该项目的产品为小高层、高层,其中,7栋14-19F小高层、4栋20-21F高层,以小高层的产品为主;
2,该项目的布局仅有2排,为围合式布局,将景观围在中央,视野、采光都是较好的,其中中央景观为水景;
3,项目的住宅为全装修交付;
4,住宅最小户型为166平,这是一个纯改善的住宅社区;
5,总户数最多为360户;
6,立面图上来看,10#的层高达到了3.6米;
规划户型出炉!挺有特点
在此前公示中,项目公示了9种户型!
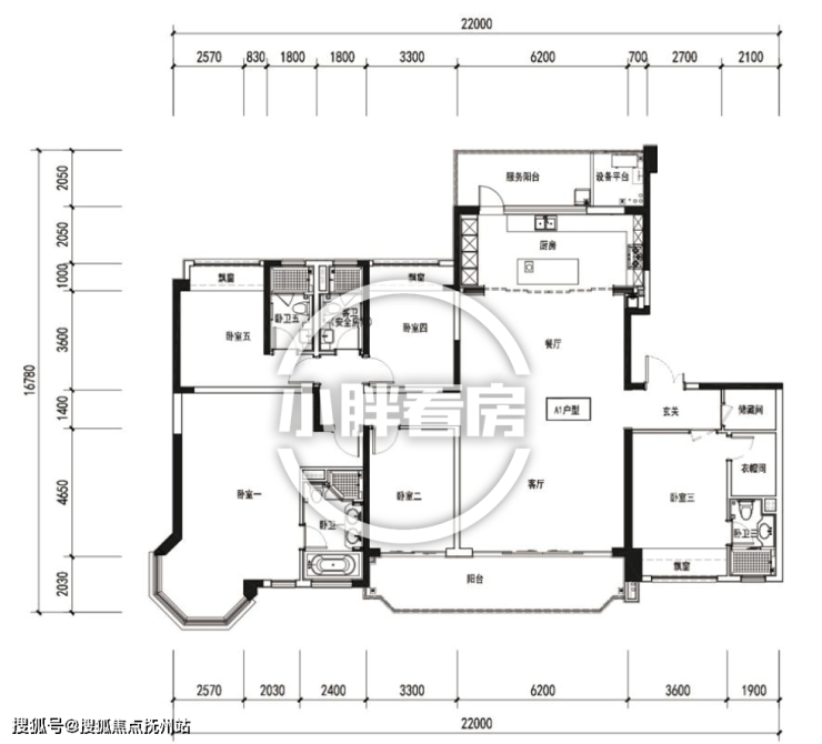
A1户型 5房2厅4卫

5房2厅4卫的房屋套型;
22米超大朝南面,三卧室朝南;
客厅是宽厅设计,开间为6.2米
南北双阳台设计,南阳台开间为9.5米
三卧室套房设计,均为明卫;
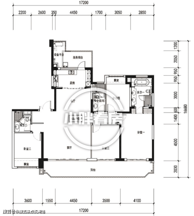
A2&A2a户型 4+1房2厅4卫


4+1房2厅4卫的房屋套型;
三个卧室套房设计,不过南次卧为暗卫;
客厅是宽厅设计,开间9.3米;
南北双阳台设计,服务阳台连接厨房;
A3&A3a户型 4房2厅3卫


4房3卫的房屋套型,6米大宽厅;
南向四开间,13.6米三开间大阳台
超大主卧,带内卫,设计有双台盆+浴缸
南向次卧做了类套房设计
厨房连接服务阳台,生活比较方便
A4&A4a户型,4房2厅3卫


A4户型与上个户型是比较相似的,主要区别就是尺寸上有差异,次卫的空间更大一点,主卧的内卫少了一个淋浴间。
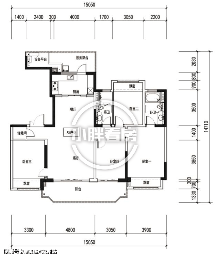
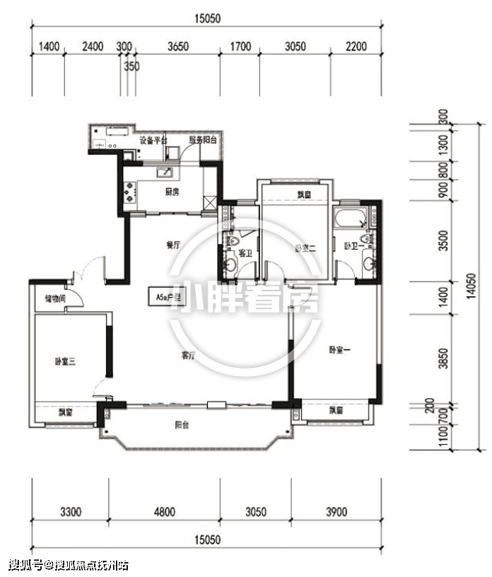
A5&A5a户型,4房2厅2卫


这一户型是4房2卫设计,户型格局上与上个户型是很相似的,不过南次卧没有内卫。

界面不错!居住氛围浓
苏州星河湾,即,苏地2022-WG-51号地块,位于吴中区木渎镇金长路北侧、金枫路西侧,属于木渎板块。
周边界面来看,其实也还不错,居住小区比较多,居住氛围比较浓。
北面是博济科技创新园,东面是金枫南路,南面是仁恒溪棠,西面是河流。

周边配套来看,也是比较不错的。
交通方面:
项目东侧是金枫南路,自驾出行比较方面;
地铁方面,项目北侧1公里之内有1号线金枫路站,南侧1公里内有大冶桥站。
商业方面:
北侧有浙建枫华广场,1公里之内就是悠方商场;
西南方向1.5公里则是天虹商场;
教育方面:
项目西侧有范仲淹实验小学和附属幼儿园;

苏州星河湾售楼处电话:400-002-9578转2222(已认证)
苏州星河湾开发商电话:400-002-9578转2222【售楼中心】
温馨提示售楼中心〢预约尊享1V1品鉴礼遇〢匠心钜制-恭迎品鉴〢
声明:本文由入驻焦点开放平台的作者撰写,除焦点官方账号外,观点仅代表作者本人,不代表焦点立场。
