宁国府邸售楼处电话/地址:400-780-7338√√☎位于西郊,12栋中式合院,套均2亿,设计独特,由大卫·奇普菲尔德打造,临近檀宫与西郊宾馆,清水寡墙,即将开盘。
西郊核心【宁国府邸 售楼处电话/地址:400-780-7338√√☎】 套均2亿的 “中式合院” 950㎡~1700㎡ 仅12栋,即将开盘!
西郊核心 檀宫新邻居
全新豪宅【宁国府邸】售楼处电话/地址:400-780-7338√√☎
套均2亿的
“一手别墅” 950㎡~1700㎡
仅12栋别墅
样板房正式开放
看房请提前预约

贵气逼人的西郊,还藏着个全新的顶级独栋别墅社区,与檀宫、西郊宾馆为邻,仅12栋,清水寡墙,形似“碉堡”,套均总价或2亿起!

这个低调神秘,深藏功与名的顶级豪宅有个霸气侧漏的名字——宁国府邸。售楼处电话/地址:400-780-7338√√☎

它的设计太特别了!形似“碉堡”的几何形盒子里,每一个围合的空间都是一个带院落的独立别墅。

室外设计效果图
项目建筑设计师是英国殿堂级建筑和设计师大卫·奇普菲尔德,擅长性冷淡风格建筑设计。

室内设计效果图
不过这个项目从2010年初开始施工,至今已经超12年,即将上市,给上海豪宅市场投入一个“王炸”。

西郊宾馆实景图

檀宫实景图

12栋中式合院售楼处电话/地址:400-780-7338√√☎
宁国府邸位于清溪路与可乐东路交叉口,与檀宫、西郊宾馆为邻,从外立面看,完全想象不到这竟然是一个住宅项目。


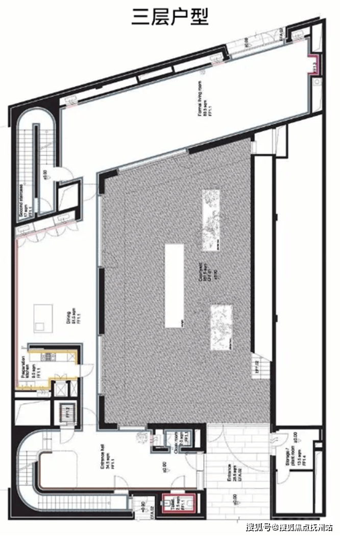
项目由12栋中西合璧的四合院组成,其中12号是楼王,13号是物业管理用房。11栋可售房源的面积段约为1000㎡-1500㎡,其中4栋为精装修交付,7栋为毛坯交付。

宁国府邸整体占地面积不大,但是豪宅必然需要有水系相伴。项目南面的野奴泾为苏州河支流,是一条天然活水河。


售楼处电话/地址:400-780-7338√√☎
内部贯穿着一条街道,采用了中国传统街巷低退界的理念。步道和树木行列对称,交相呼应。中式园林设计的最高境界是于不经意间以一种浑然天成的姿态跃入人们眼帘。
特别的艺术构思,造就了宁国府邸每一栋建筑独一无二的性格。作品舶来了庭院式建筑,营造出一系列错落有致的室内外空间秩序,将室外空间和家内居私密性的结合在一座别墅之内。而12栋建筑,又整体的融合成了一个大院落。




售楼处电话/地址:400-780-7338√√☎




售楼处电话/地址:400-780-7338√√☎


西郊核心【宁国府邸 售楼处电话/地址:400-780-7338√√☎】 套均2亿的 “中式合院” 950㎡~1700㎡ 仅12栋,即将开盘!
西郊核心 檀宫新邻居
全新豪宅【宁国府邸】售楼处电话/地址:400-780-7338√√☎