滨江临澜之城 萧山(滨江临澜之城售楼处)首页网站-2025滨江临澜之城房价_楼盘评测丨地址丨详情丨滨江临澜之城售楼处电话丨百度百科
扫描到手机,新闻随时看
扫一扫,用手机看文章
更加方便分享给朋友

临澜之城作为第三批省级未来社区,可见其承载的城市寄望之重。这座全维立体的未来之城,正在重塑全新生活方式,从而强大的擎动力、辐射力推动整个萧山南的气象更新,生活模式进阶。
萧山区目前的拆改结合类未来社区项目之一,也是迄今为止杭州南部唯一的未来社区创建项目。如此大手笔的大开大合之地,必须有大盘来起势。同样的,在浦南未来社区,滨江集团联袂区交投集团打造了一座约45万方的恢弘大盘:
浦南未来社区商业效果图过程稿
九年一贯制公办学校浦南未来学校规划有24班小学、36班初中,都将由绿城育华进行托管,预计于2026年9月投入使用。
绿城育华教育集团,为杭州市委、市政府命名的首批五大名校教育集团之一,与杭州文澜、杭州外国语、杭州实验等齐名。 项目所在区域将成为萧山南部当之无愧的政治、文化、商业核芯所在。
浦南未来学校(暂定名)效果图过程稿 仅供参考
未来, 萧山南部行政办事中心等都将搬迁于此,而且还布局了邻里中心、图书馆、卫生服务站等社区配套,以及与绿城育华教育签约的青少年活动中心、游泳馆、运动馆等 。(来源:萧山交投)
【项目信息】
【区域/板块】杭州萧山南、风情大道旁
【项目地址】杭州市萧山区临浦镇人民大街与浦安路交汇处
【总 户 数】:约2587套(其中住宅1899套)
【建筑面积】:约44.6万方
【建筑类型】:高层住宅、双创空间
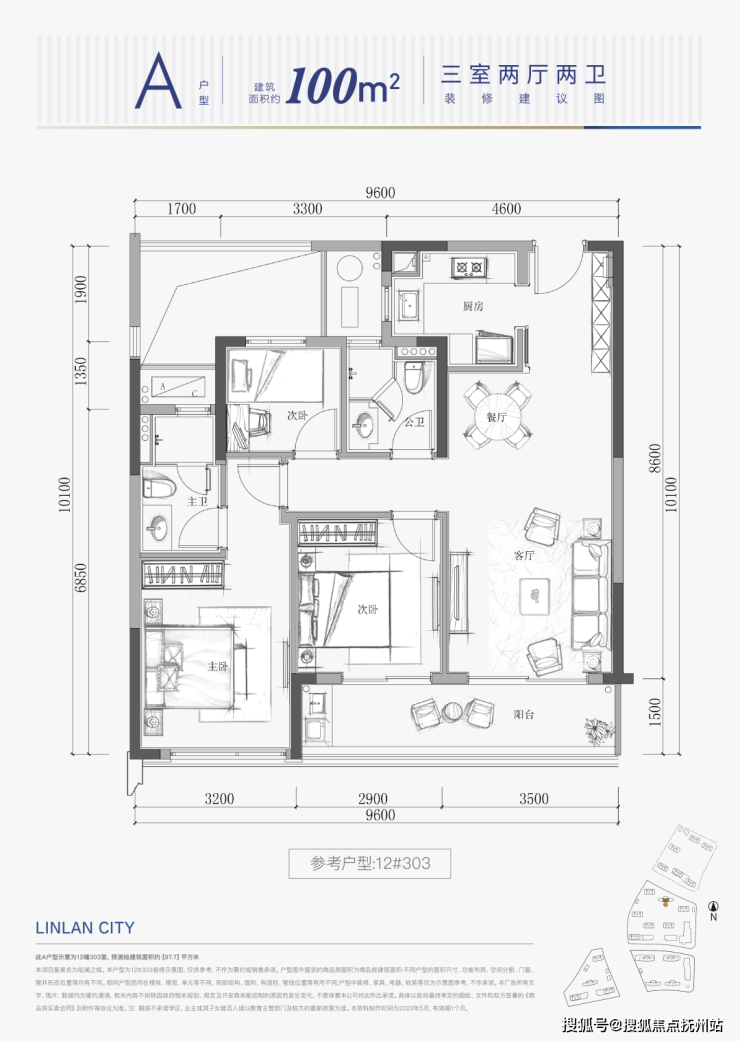
【户型面积】:约100方、111方、138方
【销售价格】:均价约17000元/方(精装标准2500元)
赏·宜居户型

建面约111方户型:建面约111方三房两厅两卫边套户型,极其方正,无论格局还是尺度,都拿捏地恰到好处。豪华餐客厅,摆下收纳柜也不显局促。拥有一整面墙的采光,在家不开灯也很亮堂。户型南卧旁还拥有一个约6.3米的双联阳台,整体户型窗墙比也很大,可以说是难得一见的“阳光房”。
建面约138方户型:138㎡四房两厅两卫边套户型,则适合改善家庭的需求。空间格局动静分区,三个南向卧室,做到了「阳光平权」。卧室与客厅一同实现了四开间朝南,南向面宽超13米,同样也规划有双开间的「跑道阳台」。
还有公共交通、人行天桥、邻里中心、街区邻里公园、循环型花园等。建筑地标、核心配套、可持续性的高科技,都在浦南未来社区项目当中体现。让人不禁联想到奥体亚运村和未科绿汀路TOD。
浦南未来社区商业

延续滨江造高标准:4米架空层 3米层高: 临澜之城规划为全高层的设计,园区内部更是打造了同价位段难得一见的近490方现代镜面泳池、笼式足球场等配套,足见滨江深厚的产品力。

在公区打造上临澜之城也延续了高标准配置。
首层单元入户门厅统一采用了星耀灰石材地面和主背景墙面采用冰川鱼肚白岩板,局部架空层层高足足达到4米,住在临澜之城,仪式感与品质感也能同时兼得。
浦南未来社区住宅效果图(过程稿
景观以 “未来” 为主题, “一轴五园” 之下勾勒出未来温馨而活力的生活画面。一条核心入园中轴,让归家更有仪式感;
童玩区自然是孩子们的天堂,攀爬跑跳、交友嬉戏,热力无限;休闲健身区里,让大家结束一天的忙碌,放松身心;还有中心景观泳池,倒映蓝天白云,微风吹过水波潋滟。

临澜之城中央景观实景图
4m架空层临澜之城为竞品质项目,01地块大部分做到了全架空,而且层高达到4米每个架空层都会植入相应的主题,儿童、健身、阅读等,现书吧主题架空层实景已开放,这品质,必须夸一夸。

声明:本文由入驻焦点开放平台的作者撰写,除焦点官方账号外,观点仅代表作者本人,不代表焦点立场。
