武汉邦泰璟和售楼处电话|首页网站-邦泰璟和营销中心地址-2026.1实时房价-户型图-在售房源-楼盘详情-容积率-备案价@官方权威发布
扫描到手机,新闻随时看
扫一扫,用手机看文章
更加方便分享给朋友
武汉邦泰璟和售楼中心:400-996-2822转接9999【官方认证】
武汉邦泰璟和售楼处电话:400-996-2822转接9999【网站认证】
武汉邦泰璟和售楼处电话:400-996-2822转接9999【官网认证】
免责声明:本文所用信息图片来源于网络,如侵权请联系本网站及时删!
01
项目基础信息
Project Basic Information
•建筑规划 | 8栋楼,规划共449户
•产品面积段 | 建面约140㎡-171㎡-201㎡一线正观江大平层
•楼层高度 | 23-31层
•容积率 | 约2.14
•建筑密度 | 约13.74%
•梯户比 | 两梯两户
•物业:邦泰物业
•首开加推楼栋:2#(31F) 3#(29F) 8#(29F)
•交付标准:毛坯
•车位比: 1:1.22
•物业费:3.2元/㎡
•综合使用率:约96-104%
•项目位置 | 武汉·二七长江大桥旁

02
户型赏析
Appreciation of
Housing Unit
【稀缺爆款 | 建面约140㎡四房两卫】一线观江+全景舱 同面积段武汉稀缺在售
该户型是整个项目面积最小的户型,主卧、餐客厅朝北看江,观江视野不错。
两个次卧、书房朝南,南向也有一定的日照采光面,相对来说,兼顾了看江和南向日照,舒适度上比江南岸差不多面积的户型略有提升。
140㎡实景样板间📸
彩蛋爆款140㎡:超少代价享直面江景,类1T1户,全景舱超高窗墙比,导台方厅,近25㎡主卧看江,次卧空间可灵活调整。
【改善进阶 | 建面约171㎡四房三卫】一线观江+全景舱+双套房 同面积段武汉罕有配置
该户型双套房设计,客厅全景舱,有不错的看江视野,餐厅、书房均可看江。
不过比较大的主卧是朝南的,看不了江。好在,北侧还有一个主卧套房可以看江。
171㎡实景样板间📸
改善首选171㎡:超越180㎡级别的体验,兼容璟和9大户型特色——定制系统门窗、可变X空间、生活阳台家政间、定制1.5m对开门、观江多功能巨厅、无界全景、平墅交通核、蜜月主卧套、多套房全明卫。
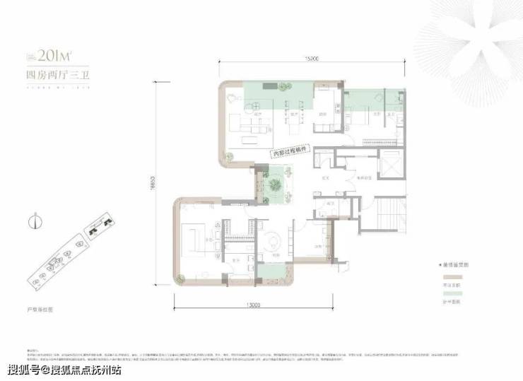
【恒贵藏品 | 建面约201㎡四房三卫】一线观江+双全景舱+空中院馆同面积段武汉唯此邦泰
这个户型跟武汉城建江南岸的大户型有些类似,客厅和主卧都做了全景舱,均有很好的看江视野。
该户型的优化面积也非常丰富,客厅、主卧均是三面飘窗优化,书房的阳台外面还有设备平台优化面积,优化后综合得房率约100%以上。
201㎡实景样板间📸
长江恒藏201㎡:成都超火空中院馆大平层首次落地武汉!真正的双全景舱观江+空中院馆,江景大平层的终极答案仅102席。
03
居住环境品质
Living Environment
Quality
▌低密滨江
武汉主城区一线滨江在售及土地储备地块屈指可数,约2.14容积率+约13.74%建筑密度的低密滨江项目,天赋稀贵、武汉难再得。

▌一线亲江
项目坐落于江滩公园和武昌生态文化长廊之间,自然资源禀赋,与众不同的亲水江岸,享受一线亲江、前后双绿道的松弛生活氛围。

▌全景观江
项目所有建筑楼栋平行江面布置,一线正观江,户户皆头排,约270°全景舱+空中会馆,坐览长江气象万千。

▌华宅映江
【多维空间】地势抬高约3.5米,层次、复合打造立体多元界面
【超级界面】长约100米双层酒店式艺术大门,点亮滨江

【立体会所】双会所体系,开启滨江高定度假生活画卷

【度假岛景观】一字布局引水入园,11座"岛"与3座"屿"串联,高定精奢度假生活艺境

【奢感公区】尊崇有序的归家动线,精奢度假酒店式归家体验

【臻稀选材】甄选全球10余种臻奢石材+10余种优质名木

【艺术奢宅】超感全景舱立面,超大尺度的环绕屏玻璃,打破室内外边界
武汉邦泰璟和售楼中心:400-996-2822转接9999【官方认证】
武汉邦泰璟和售楼处电话:400-996-2822转接9999【网站认证】
武汉邦泰璟和售楼处电话:400-996-2822转接9999【官网认证】
免责声明:本文所用信息图片来源于网络,如侵权请联系本网站及时删!
声明:本文由入驻焦点开放平台的作者撰写,除焦点官方账号外,观点仅代表作者本人,不代表焦点立场。
