绍兴曹和院售楼处电话→官方营销中心 →No.1→户型图-在售房源-楼盘详情-容积率-备案价@最新资料
扫描到手机,新闻随时看
扫一扫,用手机看文章
更加方便分享给朋友
绍兴曹和院
售楼处电话400-688-0252【售楼中心】
24小时热线◆温馨提示:看房需提前预约
售楼处电话400-688-0252【售楼中心】
◆在售房源户型价格详询售楼处〢一对一服务
售楼处电话400-688-0252【售楼中心】
〢售楼处销售1v1专业讲解〢24小时热线 全天服务
〢〢〢〢〢〢〢〢〢〢〢〢〢〢〢〢
一、基本信息
项目名称:曹和院
开发商:绍兴市上虞逸园房地产开发有限公司
项目地址:浙江省绍兴市上虞区曹娥街道逸园路18号
物业类型:住宅
产权年限:70年
占地面积:约20971.9㎡
建筑面积:约29471.47㎡
容积率:1.05
绿化率:25.01%
规划户数:66户

绍兴曹和院
售楼处电话400-688-0252【售楼中心】
咨询高峰期请耐心等待,预约来电尊享内部优惠,专业一对一热情服务,让您用专业眼光去买房。
二、项目特色
建筑风格:曹和院规划了21栋三层中式合院,这种建筑风格既保留了传统中式建筑的韵味,又融入了现代居住理念,为业主提供了舒适、宜居的居住环境。
户型设计:项目主推建面约160-320㎡的户型,包括5居等多种选择,满足不同家庭的需求。户型设计合理,空间利用率高,且注重采光和通风效果。
生态环境:曹和院位于曹娥江畔,毗邻上虞博物馆,且配合未来打造的孝德文化小镇,文化生活氛围浓厚。同时,项目周边自然环境优美,空气清新,为业主提供了良好的居住体验。

三、周边配套
教育配套:项目周边有滨江小学、上虞外国语学校、上虞中学等多所优质学校,且未来孝德文旅小镇内还将配套建设幼儿园、小学及中学等,为业主子女提供了良好的教育资源。
医疗配套:项目周边有上虞中医院、第三人民医院、上虞第五医院、曹娥医院等多家医疗机构,为业主提供了便捷的医疗服务。
商业配套:项目周边有上虞万达广场等商业综合体,满足业主日常购物、娱乐等需求。
景观配套:项目周边有中华孝德园等景观资源,为业主提供了休闲、散步的好去处。

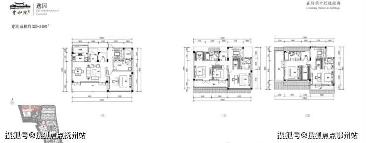
【户型鉴赏】
建面约160㎡户型(5室2厅1厨4卫)

绍兴曹和院
售楼处电话400-688-0252【售楼中心】
咨询高峰期请耐心等待,预约来电尊享内部优惠,专业一对一热情服务,让您用专业眼光去买房。
建面约190㎡户型(5室2厅1厨4卫)

建面约240㎡户型(5室2厅1厨4卫)

建面约320-340㎡户型(5室2厅1厨5卫)

绍兴曹和院
售楼处电话400-688-0252【售楼中心】
24小时热线◆温馨提示:看房需提前预约
售楼处电话400-688-0252【售楼中心】
◆在售房源户型价格详询售楼处〢一对一服务
售楼处电话400-688-0252【售楼中心】
〢售楼处销售1v1专业讲解〢24小时热线 全天服务
〢〢〢〢〢〢〢〢〢〢〢〢〢〢〢〢
声明:本文由入驻焦点开放平台的作者撰写,除焦点官方账号外,观点仅代表作者本人,不代表焦点立场。
