明华誉港城售楼处-奥体(2025明华誉港城)楼盘详情-2025最新房价-户型-图文介绍
扫描到手机,新闻随时看
扫一扫,用手机看文章
更加方便分享给朋友
一条机场高速,销售电话:186-6709-7609√√【微信同号】快速抵达萧山国际机场;新钱江二桥、钱江三桥,两座跨江大桥连接钱江两岸;庆春路隧道、博奥路隧道与地铁2号线、地铁6号线等地铁线路共同组成多维立体交通网,畅达全城连接世界,这一次,在亚奥板块,让时间追逐人的足迹。
基础信息 :
【开发商】杭州明皓置业有限公司
【总占地面积】10904㎡
【地上建筑面积】70745㎡
【建筑面积】约9.9万方
【物业】全球五大行物业公司—高力国际
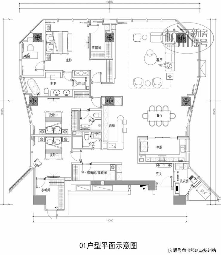
【户型产品】:建面约240/270㎡光幕平层
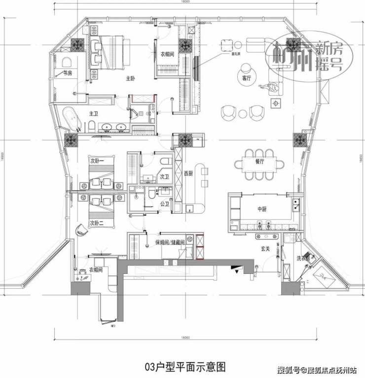
建面约480/540㎡寰景跃层
萧山之眼、销售电话:186-6709-7609√√【微信同号】奥体之芯,在杭州大湾区、拥江发展战略、亚运会三大利好助力下,未来发展潜力无限。项目紧邻莲花碗体育馆、国际博览中心、亚运村商业:周边坐拥三大城市地标:奥体中心、国际博览城、大莲花碗4大综合体:SKP、奥体印象城、钱江印、钱江世纪城公园商业;市公园:钱江世纪城公园、樱花跑道;
亚奥时代,销售电话:186-6709-7609√√【微信同号】“奥体-世纪城”板块是未来的杭州“陆家嘴”。明华誉港城位于杭州钱江世纪城核心,占据了这个时代的城市至高点,精研大平层产品,以钱塘江星河畔,闪耀三叶恒星的灵感来源,勾勒出当代共鸣的地标生活,形成杭城轴心、时代的风云人物,献上更具国际感和潮流感的生活范本。
项目自带配套设施十分完善,包括会所、恒温泳池和健身房,业主可以在这些设施中享受高品质的健康生活。同时,三面全景落地玻璃设计可以让居民尽情欣赏城市的美景,感受城市的魅力。


明华誉港城大平层项目是杭州奥体板块的一座高端住宅项目,为业主提供高品质的生活和服务。项目火热销售中,届时将成为杭州房市的一大亮点。
园区采用“围合式”布局,融合“钱塘江”水韵灵感,映衬周围自然生态,配合全冠移植的特色名贵树种,营造出环景畅谈式“艺术公园”。精细规划生活配套,以“私家会所”标准打造。内置室内恒温泳池、私人健身会所等多功能奢华空间。
●阔绰层高:约3.95米奢阔层高,厚载一城荣耀,匹配高净值人士的气度与胸襟。
户型图
ENTER TITLE
精装意向空间:
甄选GAGGENAU、Dornbracht、LAUFEN、kaldewei等全球尖端品牌,品质匠奢样板,荟聚鎏金艺术,领驭时代审美,重构杭州大平层的空间想象。
项目设施:一楼设有会所餐厅、二楼健身房、恒温泳池,面积:240-270平层,480-540方复式,层高:3.95米,得房率:83%-86%,装标:13000/平米,装修品牌:劳芬、当代、卡德维、嘉格纳等国际一线品牌),物业公司:高力国际物业,精装交付:2023年底前交房,
声明:本文由入驻焦点开放平台的作者撰写,除焦点官方账号外,观点仅代表作者本人,不代表焦点立场。
