湖珀隐秀府
售楼处电话:400-780-7338√√【热线】
售楼处销售电话:186-6709-7609√√【热线】
实景王者+天街旁!奢宅大平层的“入场券”

基本信息
楼盘名称:湖珀隐秀府
建成年代:2024年12月01日
物业类型:普通住宅
项目特色:湖景地产 , 大平层 , 临铁盘
建筑类型:高层
装修标准:暂无数据
产权年限:70年
装修情况:精装修
开发商:绍兴元昊置业有限公司
环线位置:暂无数据
投资商:万科 大悦城控股
品牌商:万科 大悦城控股

户型:

建筑面积约138㎡户型

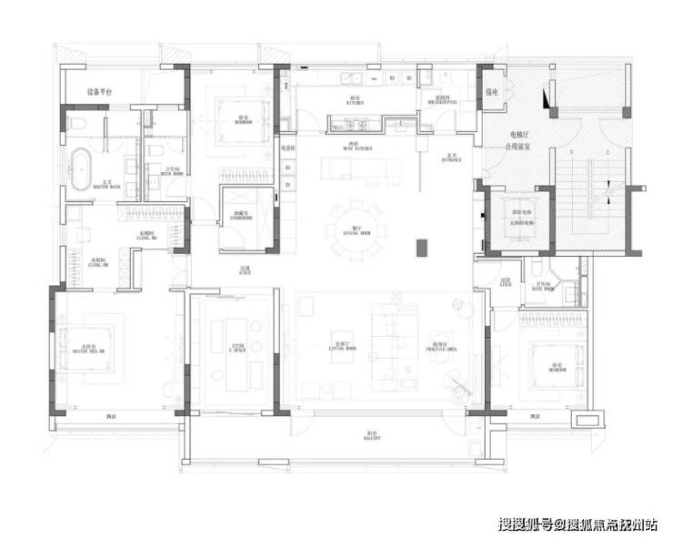
△ 绍兴湖珀隐秀府户型平面:260㎡
(设计概念示意,非最终交付标准)

△ 绍兴湖珀隐秀府户型平面:198㎡

无需再承担期房的等待与风险, 湖珀隐秀府周边的生活配套,也正在如期落地。
商业+地铁+学校+医疗,湖珀隐秀府周边的资源浓度,本就遥遥领先,如今又迎来了 “兑现元年”:
继去年地铁2号线通车、浙师大附属镜湖小学挂牌之后,项目附近的 天街,已于9月30日 震撼开业!
首入绍兴的盒马鲜生和一众品牌首店,毫无悬念地燃动全城。 天街,不但填补了镜湖商业空白,更成为了绍兴新晋的商业目的地!
镜湖天街实景

同时, 人民医院镜湖总院,也已官宣将于今年年底竣工开业。
项目区位图,仅供参考

领先的品质+实景比效果图更美的确定性+亲眼可见的落地配套。
万科和大悦城控股携手编织的 “人居理想”,如今已经不再需要大把的等待成本。
如今更有惊喜折扣,不妨前往售楼处实地了解!
万科湖珀隐秀府
售楼处电话:400-780-7338√√【热线】
售楼处销售电话:186-6709-7609√√【热线】
如有问题欢迎来电咨询,来电即可享受买房优惠!预约来电尊享购房优惠,可预约案场内部销售人员,专业一对一热情服务,让您用专业眼光去买房