和家园·玺园香樟 西湖(和家园·玺园香樟售楼处)首页网站-2025房价_楼盘评测丨地址丨详情丨和家园·玺园香樟售楼处电话丨百度百科
扫描到手机,新闻随时看
扫一扫,用手机看文章
更加方便分享给朋友
买房,买的就是对资源的占有度。在玺园合院,就有种「庄园」的体验。业主做了直接的对比:「在上海,这样的房子,可能得花一个小目标」。

总平图:
(本次加推29-30-31幢,共计23套房源)
项目信息
产品:中式山水精装合院
属性:住宅
主力面积:约200-300㎡
层高:一层3.6-6.6米(为主);二层3-5.15米(为主)
容积率:玺园合院0.4
建筑:gad建筑设计
景观:GTE绿城环境
室内:CCD香港郑中设计事务所(全球酒店室内设计第一)/ W.DESIGN无间设计(高端酒店集团长期合作伙伴,多次荣获全球室内设计权威奖项)
装修:精装交付
装修品牌:德国嘉格纳Gaggenau、德国当代Dornbracht、瑞士劳芬Laufen,德国卡德维Kaldewei
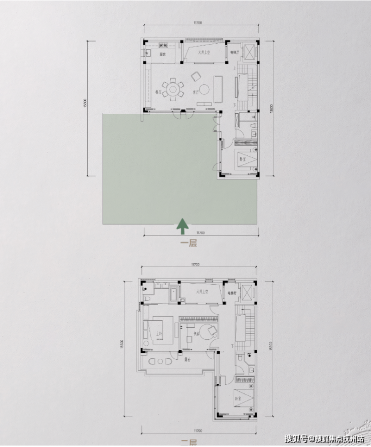
样板房户型图:
200m²

212m²

248m²

290m²

玺园·长流生活场景样板房实景
不辜负“和家园就是植物园”的美誉,许多大树也留在了原地,高大的香樟,树形优美的无患子、南酸枣、广玉兰,再配上新植的乌桕、红梅、沙朴等,任凭四季更迭,皆可花木葱茏,移步换景。
组团入口处,以一株树龄约80年的婆娑黑松迎客,月洞门边,守候着一丛苍翠欲滴的龟甲竹,共同绘就一幅松竹常青的宋代名画《西园雅集》。
声明:本文由入驻焦点开放平台的作者撰写,除焦点官方账号外,观点仅代表作者本人,不代表焦点立场。
