宁波保亿姚江润园官方售楼处电话-宁波保亿姚江润园首页网站-宁波保亿姚江润园最新房价-户型-容积率-小区配套-楼盘详情/价格/户型
扫描到手机,新闻随时看
扫一扫,用手机看文章
更加方便分享给朋友
宁波保亿姚江润园售楼处电话:400-002-9578转2222(已认证)
宁波保亿姚江润园开发商电话:400-002-9578转2222【售楼中心】
温馨提示售楼中心〢预约尊享1V1品鉴礼遇〢匠心钜制-恭迎品鉴〢
温馨提示本项目暂不接受临时到访,过来参观样板房请记得提前来电预约!
免责声明:(本文章所用信息图片来源于网络,如有侵权联系本网站删除)

江北区JB03-Ⅲ-3a、7a地块项目(保亿·姚江润园)
//////////
01
项目整体概况
Project Overview
保亿姚江润园地块位于宁波市江北区姚江江畔,西侧与育才路相邻,东侧及北侧与文教路相接,南侧与规划绿地相连。地块为面积3.82公顷的二类居住用地,容积率控制在1.8,建筑高度介于12-68米之间。在规划设计时,充分考虑居住舒适度与周边城市环境的协调统一。本项目由华聪股份子公司宁波市房屋建筑设计研究院有限公司承担设计工作,项目用地面积为38247平方米,总建筑面积达108668平方米。

02
建筑设计策略
Architectural Design
项目系江北首个高品质住宅项目,秉持城市绿洲的设计理念,意在营造一个融合现代建筑美学与自然生态,实现和谐共生的高品质居住空间。项目的总体规划布局疏密得当,呈现北高南低之势,北侧规划建设20层的高层住宅楼栋,向南依次布局16层的中高层住宅楼栋以及4层的叠墅。布局勾勒出一幅错落有致的城市天际线景观。

建筑立面设计呈现简约现代风格,着重运用水平线条,以营造出沉稳且内敛的视觉效果。大面积的玻璃外窗使建筑具备通透之感,能最大程度引入自然光线,将室内空间与室外景观平台有机融合。形成一条贯穿建筑高度的视觉轴线,既确保了充足采光,又赋予建筑轻盈通透之质感。金色金属线条勾勒出建筑轮廓,彰显其挺拔的形态,同时与水平向的空中平台线条形成鲜明反差,增强了建筑的视觉冲击效果。
高品质住宅的空中景观平台堪称一大特色。景观平台向外挑出3.6米,采用奇偶层错层设计,使得每一户均拥有宽敞的270°空中景观平台。可被打造为私家花园、休息区或社交场所,为住户提供了与自然深度亲近的空间。平台栏板选用通透的玻璃材质,确保了视野的开阔度,让住户能够尽情领略城市风光,同时在视觉层面减轻了建筑的体量感。其边缘进行了圆角处理,弱化了建筑的硬朗特质,增添了一份柔和与亲和之感,营造出适宜居住的环境。错落有致的空中景观平台,宛如一个垂直的生态系统,于城市的高空之中营造出一处微型的绿色空间。
叠墅为地上四层的两叠式户型,其以舒展的水平线条与通透的玻璃立面相互叠合,勾勒出层层退台的视觉观感。此种叠合方式不仅使建筑立面的层次感更为丰富,更暗喻了居住空间具备的多重可能性。大面积的落地窗实现了室内空间与室外景观的无缝衔接,确保了充足的采光以及开阔的视野。为进一步提高居住的舒适度与私密性,每户均配备独立的观景阳台。阳台采用透明玻璃栏杆,保证了视线的通透,同时也为居住者营造出一个能与自然亲密接触的空间。建筑悬挑的屋檐不仅具备遮阳避雨的功能,还为建筑增添了一抹东方韵味。屋檐线条简洁流畅,与建筑整体的现代风格相契合。
03
景观设计策略
Landscape Design
景观设计与建筑风格相互呼应,着重体现自然生态与人文关怀的融合。繁茂的植被、曲折的小径以及潺潺的流水,共同营造出一个适宜居住的环境。中心景观区设置了水景与雕塑,为住户提供了一处可供休闲放松的空间,同时也提高了项目的整体品质。经由酒店式的仪式感过渡至无惧风雨、界限模糊的摩登生活氛围,借助季相植物的搭配打造以“吉祥如意”为主题的归家巷道以及隐奢静谧的叠墅花园区域。
璀璨奢华之门,彰显尊贵与品质。以景墙与水景延展的华丽建筑界面进行装饰,营造酒店式艺术迎宾氛围。融合宁波依水而生的水浪元素以及市花“茶花”元素,打造专属宁波的主题仪式景观。提取传统建筑窗花元素作为地面图案,并增设奢石花钵,塑造专属门楼记忆。借助街区退让设计,实现从城市界面的自然过渡,进而进入具有都市感的商业配套街区。从富有都市感的远景引入匠心手作的震撼体验,层层递进、张弛有度,体现了现代艺术追求与城市烟火气息的融合。

04
高品质住宅设计策略
High-End Residential Design
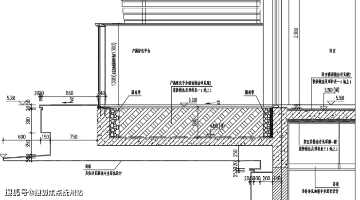
高品质住宅最为显著的特征是具备空中绿化平台。在奇偶层的设计方面,秉持平均主义原则,尽可能缩小差异,确保每层每户均配备绿化平台。如此一来,每家每户无需额外占用土地,便能拥有一方绿意葱茏的空中小庭院,进而提升居住环境的视觉舒适度与私密的绿意氛围。相较于传统的狭小阳台,该空中绿化平台挑空出两层通高的空间,空间尺度较大,实用面积可观,可利用空间更为充裕,不仅能带来更舒适的视觉体验,还可提升物业价值。
作为一种全新型的建筑形态,空中绿化平台带来了诸多创新变革,同时也存在若干问题。在项目设计进程中,需采取以下举措:
一、结构技术与荷载
空中绿化平台,覆土厚度不小于0.5m,加上种植荷载3.5kN/m2,荷载远超传统阳台的设计荷载。绿化平台悬挑3m以上,在提升居住体验的同时,也带来了一系列技术挑战和风险。需要对种植区进行合理布局,荷载合理取值,实现结构安全和建筑功能。

二、建筑防水与排水系统
空中绿化平台排水系统作为第四代住宅的核心关键,同时也是最易出现问题之处。
“立体式”防水:不仅需对地面防水工作予以妥善落实,还应将墙体、花池侧壁等因素纳入考量范围,构建起一个三维的防水体系。此体系中,任何一处出现失效状况,均会引发渗漏问题。植物根系,特别是部分乔灌木的根系,具备强大的穿透力,可能会对传统防水层造成破坏,故而必须采用耐根穿刺防水卷材。与此同时,混凝土抗渗等级也应相应提升。
排水系统:需配备完善的地表排水(包含排水沟、地漏)与结构排水(涵盖滤水层、排水板、盲管)系统,以确保多余水分能够迅速且高效地排出,并且不与建筑自身的雨水管道产生冲突。此外,排水管道应便于使用且减少转换环节。

三、空中绿化平台视线
空中绿化平台按照奇偶层进行错位布置,优先设置为一层呈南向布局,一层呈东西向布局,以此减少各平台之间的视线干扰。在同一楼层中,相邻平台之间采用功能性隔断挡板;在上下楼层之间,设置水平挡板,从而实现视线隔离,避免隐私泄露。
5
结语
Conclusion
该项目以舒展之态嵌入城市肌理。低层建筑横向延展,宛如飘逸丝带,于绿意葱茏的景观中绵延。高层建筑则挺拔耸立,着重凸显垂直线条的韵律,于水平维度的舒缓氛围里,注入向上生长的活力。此项目将建筑、景观与人实现了完美融合,营造出一个名副其实的城市绿洲,为住户提供了高品质、健康且舒适的居住空间。

宁波保亿姚江润园售楼处电话:400-002-9578转2222(已认证)
宁波保亿姚江润园开发商电话:400-002-9578转2222【售楼中心】
温馨提示售楼中心〢预约尊享1V1品鉴礼遇〢匠心钜制-恭迎品鉴〢
声明:本文由入驻焦点开放平台的作者撰写,除焦点官方账号外,观点仅代表作者本人,不代表焦点立场。
