【武汉信达地产时代央著湖璟】售楼处电话→户型→地址→央著湖璟最新价格→楼盘详情→最新销售动态
扫描到手机,新闻随时看
扫一扫,用手机看文章
更加方便分享给朋友
武汉信达地产时代央著·湖璟
售楼处电话:400-100-1299转5888
网上售楼中心〢欢迎来电咨询〢1v1销售专业讲解


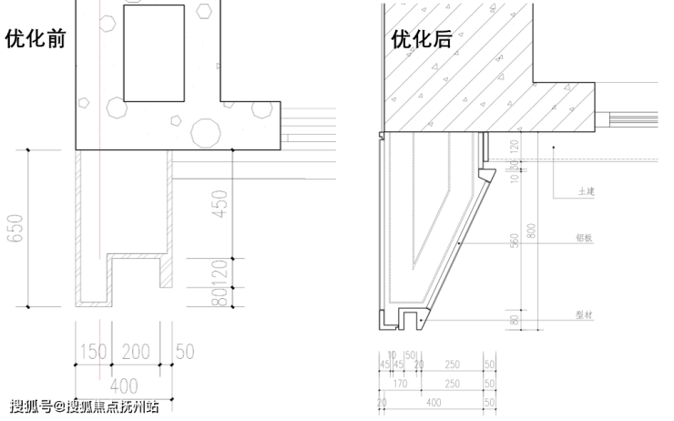
1. 南立面
原方案采用铝板构造做出方形直边造型,对室内视线有一定遮挡,工艺要求高,竖向线条不够挺拔。
(1)南立面竖向外框大线条优化:界面内方向调整为外切斜面,减少视线遮挡;增加展示细节,设计更细致,提升品质;小尺度构造采用型材,更挺拔,减少铝板弯折,减小施工难度。


(2)南立面竖向中心大线条:界面内方向调整为外切斜面,减少视线遮挡;增加展示细节,设计更细致,提升品质;小尺度构造采用型材,更挺拔,减少铝板弯折,减小施工难度。


(3)南立面竖向次线条:增加中间凹槽,细节更丰富;小尺度构造采用型材控制,提升品质,减小施工难度。


(4)顶部线条及玻璃分割:玻璃增加划分,减少厚度。竖向分隔,设200宽透风空隙,降低风压。

(5)南立面横向主线条:上下口线条做平,立面平整、简洁,细节展示更丰富,室内观看效果更好。


(6)南立面横向次线条:南立面横线条型材种类简化,减少开模成本,增加细节展示。室内观看效果更好。


(7)南立面窗框:窗框外增加金属框收边,与横向线条形成整体边框。

2. 北立面
原方案采用铝板构造做出方形直边造型,对室内视线有一定遮挡,工艺要求高,竖向线条不够挺拔。楼梯间窗户为1.2米宽平开窗。
(1)北立面竖向次线条:前端展示面为铝板,内界面调整为斜切面,增加细节展示;后端非展示面为土建造型。

(2)北立面楼梯间窗户:调整为0.75米宽上悬窗。楼梯间北立面真石漆分缝优化,丰富立面。

3. 首层立面
原方案单元大堂立面不完整,单元门未居中,玻璃幕墙分缝过于琐碎,业主“回家”仪式感不强。北入户单元大堂面宽较窄,相对南入户,均好性不足。楼栋号统一位于顶部,雨棚及风雨连廊对楼栋号形成遮挡,导致指示性不强。人脸识别外置,影响人行动线。
(1)单元入户大堂立面:增加了石材和铝板细节展示,大堂立面更完整。壁柱居于单元门两侧,单元门从内、外看均居中,业主“回家”仪式感更强。

(2)单元入户大堂立面:北入户单元大堂,通过优化增加了石材和铝板细节展示。

(3)楼栋号、人脸识别:楼栋号与人脸识别统一到立柱造型上。楼栋号处于人行正视处,且与人脸识别统一设置,更加醒目。

武汉信达地产时代央著·湖璟
售楼处电话:400-100-1299转5888
网上售楼中心〢欢迎来电咨询〢1v1销售专业讲解
声明:本文由入驻焦点开放平台的作者撰写,除焦点官方账号外,观点仅代表作者本人,不代表焦点立场。
