南湖畔嘉宸府
售楼处电话:400-780-7338√√【热线】
售楼处销售电话:186-6709-7609√√【热线】
作为直线距离南湖天地仅约600米, 嘉宸府是15年来近南湖的唯一新作,双水系环绕,繁华烟火与森养谧境兼备。


这里有绚丽的 子城光影秀、有美出圈的 嘉兴森林火车站,这里有高端商业IP 南湖天地、有城市新青年打卡圣地 芦席汇,让生活在主城的嘉兴人如鱼得水。
在中芯区位的加持下,嘉宸府的实力已然足够拔尖,但驱动项目成为现象级红盘的另一内核,是嘉宸府拥有的产品竞争力。
规划6-14F现代滨水洋房住区,容积率仅1.45-1.6。 低密的属性与生俱来,“寸土寸金”的主城之上,“ 真洋房”的价值可想而知,居住更舒适。

多功能全龄主题架空层,无论是孩童的游戏场所还是成人的健身休闲区域,都经过了精心的规划和布局。
以及园林景观,四季四景,十步有天地,十种居住场景,营造森系微度假场景体验……

景观
在产品打造上,嘉宸府对嘉兴人人居生活的深刻理解融入其中,层层维度叠加,即使在好产品不断涌现的当下,都难寻敌手。
NO.3
除了外部的惊艳,嘉宸府还将更多的思考放在内部 精研户型设计上,这也是项目值得浓墨重彩介绍的优势。

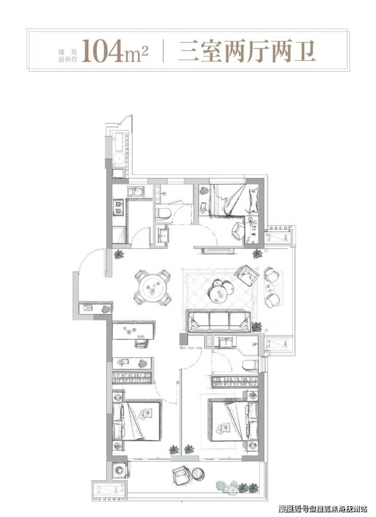
在户型上考虑到多种需求,为年轻人营造出N种生活场景和可能性, 主力建面约104㎡—192㎡,无论你是精致主义还是实用主义,总能找到满意的一款,每一套都是主城限量!
比如 建面约104㎡中间套户型,三房两厅两卫,是一款轻松上车的“爆款”户型。

最惊人的就是 南向超10米的三开间超长阳台,起步就拥有了高端改善标配的“跑道式”阳台。
户型方正,动静分离自是不用多说, 主卧更有约3.4米的舒适开间,并配有衣帽间和独立卫浴,充分扩展空间,让业主的生活更加从容有度。
甚至可以 联通北卧,将超大尺度的氛围感拉伸到极致,百方户型拥有豪华多功能套房不是梦!
为了更好的满足购房者钟爱边套的需求, 建面约104㎡的边套则是另一个生活方式,两个朝南房间,面宽都在3米以上,主卧也保持约3.3米的舒适尺度。


建面约119㎡户型图

建面约152㎡户型图

建面152㎡样板房实景
南湖畔嘉宸府

售楼处电话:400-780-7338√√【热线】
售楼处销售电话:186-6709-7609√√【热线】
如有问题欢迎来电咨询,来电即可享受买房优惠!预约来电尊享购房优惠,可预约案场内部销售人员,专业一对一热情服务,让您用专业眼光去买房。