上海中骏璟荟二期(欢迎您)松江中骏璟荟二期官方网站丨中骏璟荟二期楼盘详情
扫描到手机,新闻随时看
扫一扫,用手机看文章
更加方便分享给朋友
上海松江「中骏璟荟」
售楼处电话:400-1067-167【官网】
如有问题欢迎来电咨询,来电即可享受买房优惠!预约来电尊享购房优惠,可预约案场内部销售人员,专业一对一热情服务,让您用专业眼光去买房。
项目一房一价表抢先看:
认购规则、计分规则、入围规则见文末。
"上海之根在松江",或许已经说明这松江自古以来就是人文荟萃,物产富饶的江南之地。松江府曾经就是江南重镇,也是上海的发源地之地。松江也是近几年发展的比较好的刚需区,对于低预算的,松江一定是要来看一看的。
目前松江最引人注目的是G60科创走廊与松江南站枢纽。

长三角G60科创走廊有“三朵云”。这“三朵云”将成就了我们未来的G60科创走廊。
排名前列朵云,创新主体如云。截至今年11月,松江各类市场主体已超20万户,相较于五年前增长了54.47%。主要是头部企业带动的产业集群的发展。有很多的年轻人都加入了新基建,帮助松江实现科创之梦,在产业细分中又诞生了很多新的产业业态。
第二朵云,基金如云,也就是产融结合。一个规模化得产业是离不开资本市场的积累的,尤其是多层次资本市场。G60科创走廊九个城市上市科创板企业数是较多的,占全国的1/5。其中,松江上市企业总量包括挂牌的在内,目前是357家,位居上海第二位。
第三朵云,互联网云。工业互联网云支撑也叫在线的、同步的、适时的要素创新、协同创新,效能是没有边界的。松江强调的跨区域创新,就是打破行政区划,基于工业互联网支撑下的协同创新。

长三角G60科创走廊规划展示馆
沪苏湖铁路串联上海市西部、江苏省南部和浙江省北部区域。全线7站,在上海设有上海虹桥和松江南2站,是长三角一体化国家战略基础设施互联互通较具代表性的项目。施工总工期预计为4年。

沪苏湖高铁开建的强劲东风已经吹起来了,在松江,由原高铁松江南站升级而成的松江枢纽规划方案已具雏形,即将走向现实、走进我们的生活。
目前,松江枢纽规模基本确定为9台23线,将构建枢纽快速集散系统,完善地面道路网络,增强公共交通配套。除既有沪杭高铁2台4线,规划建设沪苏湖铁路外,上海南站普速铁路将逐步迁移至松江枢纽,同时规划预留了沪杭城际、铁路东西联络线、市域线嘉青松金线等接入条件。
这样的松江新城,你不心动吗!
现在就有一个机会能见你入住松江新城,享受科技带动和交通枢纽。「中骏璟荟售楼处电话:400-1067-167」等着你!
「中骏璟荟」,主力建面约88㎡-99㎡高层3房、124㎡洋房4房,供给房源553套,项目装修交付,往期均价5.81万/㎡。
同时,该项目位于松江广富林街道,关注「中骏璟荟」的朋友们,让我们来认真看看这个项目。
1 中骏璟荟
多图联发
「中骏璟荟售楼处电话:400-1067-167」位于松江新城,产品面积段约88-121㎡3-4房,主力户型有建面约88㎡3房2厅1卫、98㎡3房2厅2卫、121㎡4房2厅2卫。
项目户型图抢鲜看!
(户型图仅供参考,以开发商最终公布为准)
建面约
91㎡ 3房2厅1卫
建面约

101㎡ 3房2厅2卫
建面约

125㎡ 4房2厅2卫

2 中骏璟荟售楼处电话:400-1067-167
均价5.813万/㎡
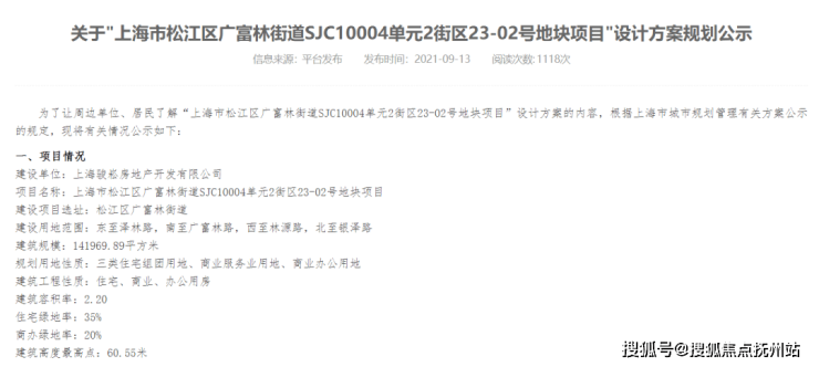
2021年6月21日,首批集中出让中,中骏以总价174300万元竞得的松江区广富林街道SJC10004单元2街区23-02号地块,楼面价16849元/㎡,溢价率8.49%。

区位示意
地块信息:
地理位置:东至泽林路,南至广富林路,西至林源路,北至银泽路
出让面积:47022㎡
规划用地性质:商住办综合用地
容积率:2.2
起拍总价:160655万元
中止价:173280万元
起始楼面价:15530元/㎡
终止楼面价:16750元/㎡
房地联动房价:58130元/㎡
松江区广富林街道SJC10004单元2街区23-02号地块项目的设计方案在松江区人民政府网站上公示:

平台公示
6月21日上海首批集中供地中,中骏以总价174300万元拿下。房地联动价是5.81万/㎡。

承诺书
地块具体位置如下:
东至泽林路,南至广富林路,西至林源路,北至银泽路。

区位示意
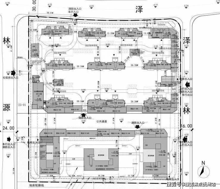
地块出让面积47022㎡,容积率2.2,总建筑面积141969.89㎡,地上建筑面积109042.77㎡(地上计容建筑面积103448.4㎡,不计容5594.37㎡),地下建筑面积32927.12㎡。
住宅部分计容建筑面积51724.2㎡
其中商品房47960.75㎡(占比46%)
保障房2586.21㎡(占比2.5%)
配套1177.24㎡
商业商务部分总建筑面积51724.2㎡(占比50%)
设计户数553户(商品房517户、保障房36户),停车位1012个

经济技术指标
根据公示,项目分为南北两个区域,拟建9幢8-17层的住宅、1幢12层宾馆、2幢15层办公楼以及1幢10层保障房。
12#为办公用房,整体可售,带有底层商业裙房;
15#为办公用房,底层带商业,2-4层可售,5-15层需自持;
13#为宾馆,需自持。此外,住宅1、2、3#以及保障房10#的底层也带有商业体量。
3 中骏璟荟售楼处电话:400-1067-167
优质配套
交通资源:项目直线距离约1.3公里处是轨道交通9号线松江大学城站,同时嘉松南路高架道路也紧邻地铁站旁。
松江大学城站
商业资源:项目东侧在建项目为印象城购物中心,商业建筑面积约为15.5万平方米,地上建筑面积约7.4万平方米,地下建筑面积为8.1万平方米;直线距离约2公里则是松江万达广场、五龙商业广场、马利来广场等!

松江商圈
医疗资源:项目周边有上海排名前列人民医院(南院),为健康保驾护航。
上海排名前列人民医院(南院)
松江新城 广富林街道
「中骏璟荟售楼处电话:400-1067-167」
上海松江「中骏璟荟」
售楼处电话:400-1067-167【官网】
如有问题欢迎来电咨询,来电即可享受买房优惠!预约来电尊享购房优惠,可预约案场内部销售人员,专业一对一热情服务,让您用专业眼光去买房。
声明:本文由入驻焦点开放平台的作者撰写,除焦点官方账号外,观点仅代表作者本人,不代表焦点立场。
