宝业凤樾上筑售楼处电话→萧山宝业凤樾上筑售楼中心电话→宝业凤樾上筑楼盘详情→首页网站→宝业凤樾上筑楼盘百科→售楼处电话→24小时热线电话
扫描到手机,新闻随时看
扫一扫,用手机看文章
更加方便分享给朋友
项目信息
用地面积:16235方
总建筑面积:32529方
绿地率达:31%
容积率:2.0
楼栋规划:项目规划7幢住宅,共292户。其中 1# 4#为自持 2#为公租房,3#、5#、6#、7#均为14层精装高层住宅,共246户。
面积约89-128㎡,层高2.9米,阳台不封闭,底层架空层高度3.4米
得房率约:82%,
车位配置:1:1.1/1:1.2。
价格信息:项目整体限价20350元/平方(含精装标准3000元/平方)
交房时间:约2024年7月左右
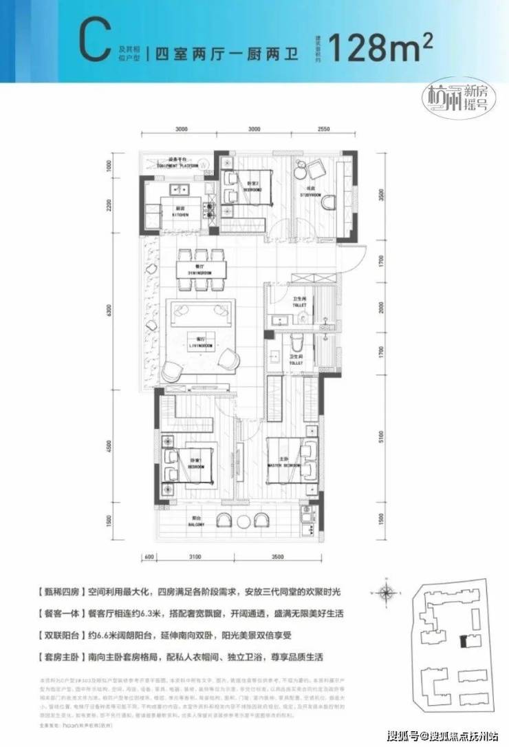
户型
△ 图为宝业凤樾上筑户型图
【U型厨房】与餐厅相连,空间面积利用,人性化设计日常生活动线

声明:本文由入驻焦点开放平台的作者撰写,除焦点官方账号外,观点仅代表作者本人,不代表焦点立场。
