蓝城英冠滨悦城售楼处电话→杭州蓝城英冠滨悦城售楼中心电话→蓝城英冠滨悦城楼盘百科→蓝城英冠滨悦城首页网站→楼盘百科→首页网站→24小时热线电话
扫描到手机,新闻随时看
扫一扫,用手机看文章
更加方便分享给朋友

【项目基本信息】
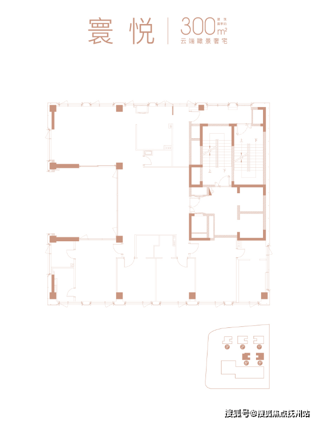
🌟【户型面积】约300㎡/480㎡
🌟【楼幢层高】3.3m/4.1m
🌟【装修情况】精装修
🌟【梯户比】2梯1户
🌟【产权性质】40年
🌟【物业公司】浙江中冠物业
🌟【物业费】8.8元/㎡/月
🌟【总建筑面积】117080㎡
🌟【容积率】3.5
🌟【绿化率】25%
🌟【总户数】104套
🌟【车位数量】885个
🌟【交付时间】现房
蓝城英冠·滨悦城样板间的落地窗前,销售电话:186-6709-7609√√【微信同号】大江横陈,一片金光笼罩在江面上。对于想要购买豪华住宅的人来说,滨悦城绝对是一个不可错过的选择。它不仅拥有得天独厚的地理位置和一线江景房源,还提供了丰富的配套设施和智能化系统。
一层一户一境界沿袭世界顶尖豪宅严苛标准,原创约300/480㎡寰幕空间,约3.3-4.1米奢适层高,定义上层格局;大约26米奢阔面宽,以极致奢华空间,礼献当代城市贵胄。内装更是一曲精工与奢华的协奏,约1.1-1.3万元/㎡的装标,足证诚意。


项目由5幢12-28层的高层公馆、销售电话:186-6709-7609√√【微信同号】1幢六星级写字楼以及1幢5层商业配套组成的综合体项目,总规划户数105户。容积率:3.5,绿地率:25%+!在售面积:300-320-480方,总价1200万起!赠送面积约40㎡空中私家花园!不限购不限贷,准现房!
声明:本文由入驻焦点开放平台的作者撰写,除焦点官方账号外,观点仅代表作者本人,不代表焦点立场。
