旭丽花园售楼处-上海旭丽花园楼盘详情-上海新房旭丽花园售楼处(2025)首页网站-上海旭丽花园楼盘详情-旭丽花园户型配套
扫描到手机,新闻随时看
扫一扫,用手机看文章
更加方便分享给朋友
大独栋别墅:产证面积456㎡左右,赠送花园242㎡---657㎡左右,在售房源总价约2100万起步/套,房型为6房2厅4卫2室内车库或8房2厅5卫。销售电话:186-6709-7609√√【微信同号】
⛩项目名称:「旭丽花园」
👑项目简介:闵行马桥 双拼 大独栋
🗣新动态:正在热销中
📍区域板块:闵行马桥
🏠产品介绍:推出建面约289.7-456.6㎡双拼 大独栋、总价1500-2700万
🛍️商业配套:龙湖星悦荟+天街、万科商业街、马桥万达广场、颛桥万达广场、安缦酒店、旗忠网球中心、旗忠高尔夫俱乐部等销售电话:186-6709-7609√√【微信同号】
🚇交通配套:距离地铁5号线北桥站2.2公里、在建中23号线东川路站3.6公里;300米上嘉闵高架和申嘉湖高速。
🏫周边学校:复旦万科实验中学,交通大学附属闵行实验学校12年制(在建,24年招生),马桥强恕学校,元祥幼儿园等等!马桥私立学校:马桥文莱外国语小学、文莱中学;上海复旦万科实验中学、英国德威国际学校。
开发商:上海合裕房地产有限公司
项目地址:北松公路与花王路口
项目产权:1993年拿地 2006年竣工 产权70年
总占地:16万方
总建面:9.3万方
容积率:0.71
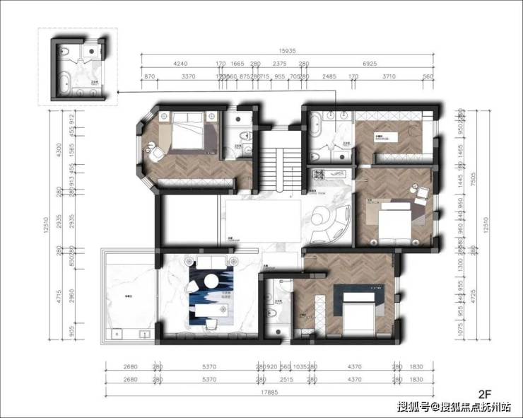
独栋面积:456.6㎡ (6房两厅4卫或者8房两厅5卫)
总价:2100万/套起
绿化率:40%
物业公司:上海环连脸物业
物业费:2块5
电:平每度0.617元 谷每度0.307元
水:每吨4.09元 燃气3元每立方
项目实景实景图▼
声明:本文由入驻焦点开放平台的作者撰写,除焦点官方账号外,观点仅代表作者本人,不代表焦点立场。
