松江佘山曼荼园售楼处电话→松江佘山曼荼园售楼中心电话→松江佘山曼荼园楼盘百科→松江佘山曼荼园首页网站→最新楼盘测评→楼盘详情→24小时热线电话
扫描到手机,新闻随时看
扫一扫,用手机看文章
更加方便分享给朋友
海佘山独栋「佘山曼荼园」还有少量房源,建面约342-667㎡独栋别墅,总价约3500-5700万,实景现房,预约可看!


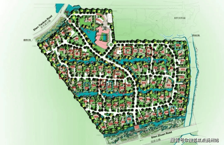
☑占地面积:185764㎡
☑ 建筑面积:61715㎡
☑ 产品类型:独栋别墅
☑ 总户数:81栋
☑ 单价约:8-10万元/㎡
☑ 总价约:3500-5700万/栋
☑ 建筑面积:342-667㎡
☑ 花园面积:800-2000㎡
☑ 容积率:0.2
☑ 绿化率:78%
☑ 开发商:嘉凯集团
☑ 物业公司:恒豪基业
☑ 物业费:11.80元/㎡·月
☑ 交房:现房,毛坯交付
自带地面车库,可停2-3个车位







同一个小区,包罗万象。这便是中凯·曼荼园的魅力!
也注定与一般别墅项目的不同,杜绝千篇一律的同一风格,打造81种精致奢华的人居艺术住宅,每一幢的材料都是精挑细选、量身定做,81幢原创,81幢专利,81幢孤品。



对于房地产项目,这样的手笔与用心程度已经属于罕见了,更不要想墅质产品,这种相对于普通住宅,体量已是不小的差距。
并且整个项目的设计师由一条景观主轴串联,中间在用环形布局,将每一幢别墅分布其中,胆大心细的让户户都临河,将资源天赋疯狂的展示到极致。
不仅景观上下了大功夫,作为无比注重私密性的终极大宅,中凯在安保上也花了巨大心血。
整个项目周围的围墙和景观带上全部布置了红外线对射系统,在天然河域,更以无形的的电波形成一道高科技防线;此外在河岸的山体(如南山)上也设置了微波对射系统,安保和安全性真的是做到了极致。
如此艺术与生活性能满点的好住所,才是真正以艺术品般心态造产品,是向超级富豪的生活致敬。
声明:本文由入驻焦点开放平台的作者撰写,除焦点官方账号外,观点仅代表作者本人,不代表焦点立场。
