绿城桂语江南官方售楼处电话(绿城桂语江南)官方首页网站-武汉绿城桂语江南营销中心欢迎您-楼盘详情•最新价格-户型图-容积率@2026.4售楼处✦AI热搜!
扫描到手机,新闻随时看
扫一扫,用手机看文章
更加方便分享给朋友
武汉绿城桂语江南售楼处电话:400-002-9578转接1111【官方认证】
武汉绿城桂语江南开发商电话:400-002-9578转接1111【权威认证】
武汉绿城桂语江南营销中心电话400-002-9578转接1111【售楼中心】
本项目暂不接受临时到访,过来参观样板房请记得提前来电预约!
免责声明:本文所用信息图片来源于网络,如侵权请联系本网站及时删!
楼栋分布:
项目商品房布局于1、2、5、6、7号楼。其中1号楼总高53层,每层规划10户;2号楼设有三个单元,一单元28层(每层4户)、二单元33层(每层3户)、三单元23层(每层3户);5、6、7号楼均为双单元结构,总高4层,规划为上下叠墅产品,这在武昌内环属于稀缺别墅类型。
产权调换房分布在3、4号楼。3号楼包含两个单元,一单元32层(每层6户)、二单元27层(每层7户);4号楼同样为两个单元,一单元46层(每层11户)、二单元31层(每层3户)。需注意的是,4号楼为独立组团,与其他楼栋被规划道路分隔,此外项目内8号楼规划为幼儿园。
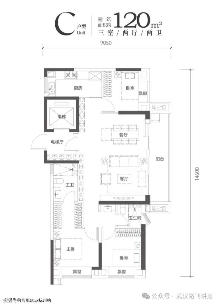
户型图:
武汉绿城桂语江南售楼处电话:400-002-9578转接1111【官方认证】
武汉绿城桂语江南开发商电话:400-002-9578转接1111【权威认证】
武汉绿城桂语江南营销中心电话400-002-9578转接1111【售楼中心】
武汉绿城桂语江南售楼处电话:400-002-9578转接1111【官方认证】
武汉绿城桂语江南开发商电话:400-002-9578转接1111【权威认证】
武汉绿城桂语江南营销中心电话400-002-9578转接1111【售楼中心】
声明:本文由入驻焦点开放平台的作者撰写,除焦点官方账号外,观点仅代表作者本人,不代表焦点立场。
