官网热搜:武汉城投金沙樾售楼处电话→城投金沙樾Ai热搜24小时电话→2026最新房价→楼盘百科详情→售楼处更新发布@售楼中心
扫描到手机,新闻随时看
扫一扫,用手机看文章
更加方便分享给朋友
武汉城投·金沙樾
售楼处电话:400-100-1299转5999
网上售楼中心〢欢迎来电咨询〢1v1销售专业讲解
其实,任何一次热销,都有其深层的市场逻辑。
市场调整后,当下出手的购房者都有一个明显共性:不再仅仅执着于后市预判,同时也开始重点关注产品本身。
城投金沙樾的产品正是其能打动无数购房者的重要原因之一。
新加推的7号楼靠近小区内部,更安静;而且这栋楼直面小区中心园林,北看市政公园,观景视野绝佳,日照采光好。
作为内环新一代准四代住宅,城投金沙樾的户型将革新性创造力贯彻到底,空间感与功能性拉满。
建面约99平户型,打破常规,空间布局设计优化到了极致,赋予其独立电梯厅、通透三房、双卫设计的高配置。
这也是武汉内环目前同面积唯一的四开间格局的产品。整体空间感堪比市面上建面约120平户型。
难得的是还是私梯入户,妥妥的豪华大平层的待遇。独立电梯厅,邻里间更私密的同时营造专属的仪式感。
约12.2米大面宽设计,以往只常见于建面约160平户型。这样做不仅放大了采光面,还升级了生活功能性,又给生活增加了一份松弛感。
三房全部直面小区中心园林,而且两间卧室全部是大面积落地窗,IMAX广角视野,揽尽一窗美景。主卧套房,预留衣帽间空间,尊崇感满满。
超大的主卫,还做到了双面采光,这可是豪宅户型才有的高配置。
书房与客厅共享双联大阳台,跑道式阳台,空间百变灵动,闲时休闲健身、养花弄草,一处酝酿诗意,一处盛放生活。
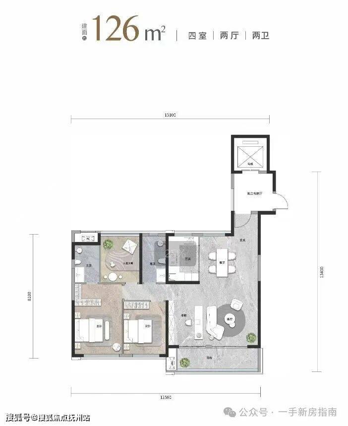
建面约126平边户,居住体验完爆传统建面约150平户型。
电梯入户,私享的电梯前厅更是圈出了居者的私属领地,将家的玄关尺度延伸至电梯前厅,赋予居者尊贵的归家体验。
IMAX级面宽达约12.5米,比滨江豪宅建面约143平面宽还要大,赋予更广阔的采光与视野。
厨房餐厅一体的空间布局,极大程度地丰富了生活场景。
LDKB一体化无界厅,即便是家庭聚会或与朋友一起开party也不拥挤。
这款户型还是少有的南北双X空间设计,客厅还可以改造出一个私密空间。
主卧对侧的百变空间,既可以做独立空间使用,也可并入到主卧,改造成主卧的小客厅或书房。
改造后的主卧套房,带来星级酒店的居住体验,将改善气质拉满。
除了优越户型产品外,城投金沙樾准四代住宅均价约1.6万/㎡左右,比同环线新房产品更好,房价更有优势,吊打同环线的新房和周边次新房,让你用二环外的价格进阶内环
声明:本文由入驻焦点开放平台的作者撰写,除焦点官方账号外,观点仅代表作者本人,不代表焦点立场。
