中粮北外滩壹号售楼处-中粮北外滩壹号楼盘详情-上海房天下

抚州楼市发布 2024-11-01 20:05:00
用手机看
扫描到手机,新闻随时看

扫一扫,用手机看文章
更加方便分享给朋友

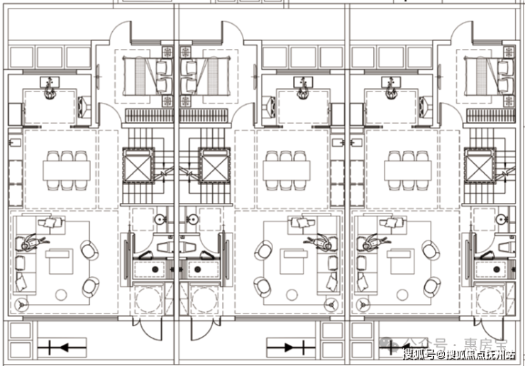
【中粮北外滩壹号售楼处电话:400-780-7338√√☎】即将入市虹口内环内北外滩核心,项目预计推约130-350㎡高层、风貌别墅,采用混合地布局,预计售价在14万/㎡左右。项目位于北外滩红线内,靠近大连路地铁站和新弘北外滩。项目楼高84户,别墅76户,总共有160

【中粮北外滩壹号售楼处电话:400-780-7338√√☎】约130-350㎡高层及200-350㎡风貌别墅,仅160套 最快下半年入市

虹口内环内北外滩核心区

【中粮北外滩壹号】售楼处电话:400-780-7338√√☎

预计将推约130㎡~350㎡

高层、风貌别墅

项目由于为协议出让地块

因此无联动价

预估高层均价14万/㎡左右

风貌别墅22万/㎡左右

虹口很多项目大多位于瑞虹或者四川北路板块,但论纯正北外滩红线内的,你可能得关注【中粮大悦城】这个项目。

售楼处电话:400-780-7338√√☎

最新消息:虹口内环内北外滩核心区,4号线大连路站直线约300米,中粮大悦城项目最快下半年入市!项目案名大概率定名中粮北外滩壹号,预计将推约130-350㎡高层、风貌别墅,项目由于为协议出让地块,因此无联动价,参考周边同类新盘,预估高层均价在14万/㎡左右,风貌别墅在22万/㎡左右。网传户型分布如下:(仅供参考,以官方公示为准)最新效果图过程稿如下:部分户型平面图过程稿如下:

售楼处电话:400-780-7338√√☎

售楼处电话:400-780-7338√√☎

项目缘由:

2023年9月5日,大悦城控股上海大区公司通过上海联交所成功竞得上海市虹口区北外滩116街坊地块。这幅地块位于北外滩红线内,靠近大连路地铁站和新弘北外滩(已售罄)。

116街坊地上计容面积46505.94㎡,用地性质为Rr1Rr3混合用地,其中混合地比例为Rr1≥60%、Rr3≤40%——简单来说,Rr1通常为低密住宅,Rr3通常为高层,这个配置和五坊园四期有点像,从大悦城控股发布的效果图(非最终交付标准)也可以看出

售楼处电话:400-780-7338√√☎

该项目计容建面4.65万㎡,容积率1.95,是上海市中心罕见的无商办、无15%自持住宅、无5%保障房的纯住宅,高层84户,别墅76户,总共160户。

项目售楼处意向效果图如下:

【中粮北外滩壹号售楼处电话:400-780-7338√√☎】约130-350㎡高层及200-350㎡风貌别墅,仅160套 最快下半年入市

虹口内环内北外滩核心区

【中粮北外滩壹号】售楼处电话:400-780-7338√√☎

声明:本文由入驻焦点开放平台的作者撰写,除焦点官方账号外,观点仅代表作者本人,不代表焦点立场。