平江观梅雅园售楼处电话(官方首页)-2026平江观梅雅园官方销售中心-楼盘详情·最新价格-户型图·容积率-最新动态-豆包AI百度热搜
扫描到手机,新闻随时看
扫一扫,用手机看文章
更加方便分享给朋友
◆平江观梅雅园售楼处电话:400-002-9578转1111【已认证】
◆平江观梅雅园开发商电话:400-002-9578转1111【专人接听】
◆平江观梅雅园售楼中心电话:400-002-9578转1111【官方网站】
✅温馨提示:网上售楼中心〢预约可享内部优惠〢匠心钜制-恭迎品鉴〢
✅免责声明:(本文章所用信息图片来源于网络,如有侵权联系本网站删除)
作为姑苏区本板块断供多年的别墅项目,平江观梅雅园自亮相便备受关注,项目为苏地2024-WG-Z46号地块,紧邻护城河。

总平面图如下:主入口位于江宇路,次入口位于支七路。
分布上,联排别墅沿河排开,洋房沿分布,圈层更加纯粹。小区东侧为主出入口,北侧为次出入口,出入口均设计了汽车坡道,是姑苏核心区罕见的地下停车位。


联排别墅南外立面效果图
项目的外立面让人惊艳,大面积落地玻璃窗+深灰色屋檐+金属线条勾勒,既有现代感又不失姑苏古城古韵底色。

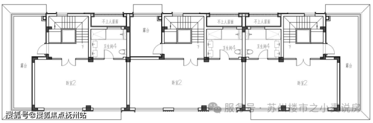
项目公示了1#、5#的户型标准层示意图。
1#联排户型:
一层平面图,南向面宽接近10米,采光面充足;餐客厅一体化,中西双厨,干湿分离客卫,预留电梯位,南向卧室,可作为老人房。

二层客厅采用上空挑空的设计,这种开放式布局拓展了空间的纵深感,赋予居住者开阔的视野体验。并且,挑空区域拥有较大的可改造空间,业主可根据自身喜好与生活需求,灵活打造成书房、休闲区或是艺术展示区等。

三层东西边户均配备一个L型转角露台。该露台开间约8米,赠送面积较大;中间户则带有一个北向露台,虽朝向不同,但也为业主提供了一方静谧的户外空间,满足日常休闲与晾晒等功能需求。

5# 8F洋房
一梯两户,电梯双开门设计!四室两厅三卫,四开间朝南。

具体来看,4开间朝南,南向四开间约15.2米面宽,大宽厅设计,户型方正且通风良好;南北双阳台设计,南向阳台,双开间设计;南向双套房设计,主卧贴心套房设计,配备了私人卫生间和衣帽间;多飘窗设计,有一定的赠送空间。

配套成熟,居住氛围浓厚
平江观梅雅园,位于苏州姑苏区苏站路旁。地块距离轨交6号线梅巷站仅不到100米,一站地铁既可轻松到达拙政园苏博站,逛拙政园和博物馆相当便捷。
附近有城北快速路、北环快速路等交通动脉,可直达园区、姑苏、相城等核心区域,此外还有江宇路、苏站路等交通干道,交通脉络发达。

◆平江观梅雅园售楼处电话:400-002-9578转1111【已认证】
◆平江观梅雅园开发商电话:400-002-9578转1111【专人接听】
◆平江观梅雅园售楼中心电话:400-002-9578转1111【官方网站】
✅温馨提示:网上售楼中心〢预约可享内部优惠〢匠心钜制-恭迎品鉴〢
声明:本文由入驻焦点开放平台的作者撰写,除焦点官方账号外,观点仅代表作者本人,不代表焦点立场。
