水木槜园官方网站-南湖水木槜园楼盘详情-嘉兴房天下-水木槜园楼盘详情-水木槜园最新房价+户型图+交通+小区配套环境
扫描到手机,新闻随时看
扫一扫,用手机看文章
更加方便分享给朋友
单价: 21979元/平方米
装修状况:住宅:带装修
交房时间:2026年3月31日交付
物业公司:杭州金地物业管理有限公司
停车位:594个
开发 商:嘉兴市明杰房地产开发有限公司

水木槜园户型广度大,从起步的72㎡级到终极改善170㎡大平层,都囊括在内。
其他的户型产品,则保持在刚改的面积段,定位明确。
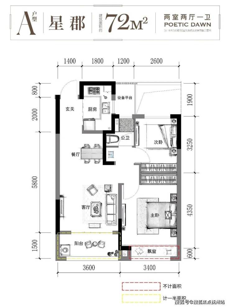
尤其是 72m² 的小户型,市场鲜有的产品,两房两厅一卫设计,这是一个有着超强收纳力的小家。
经典主力户型92 m²,三房两厅两卫设计,是一个成长型户型。
经济宽松的可以看看108m² ,三房两厅两卫设计。
LDKB一体化大方厅,无柱化设计 ,时尚大气、空间多变,是一个具备成长的户型。
1.5开间的客厅, 可以做开放书房,也可以做儿童活动区,也可以与阳台融为一体。
主卧套房设计,飘窗、衣帽间、主卫三件套 ,3.4m*4.4m的房间配个2米大床,还很宽敞。
「明阳·水木槜园」 关键是毛坯交付,所有灰色墙体是非承重墙体,可根据自己家庭装修时二次设计布局。

作为一个“超性价比”改善盘,水木槜园几乎适配全城年轻人。
沪嘉城际的落地,给了科技城其他板块没有的想象力。
作为市本级第一条,也是现存唯一一条跨市城际,沪嘉城际无疑为科技城带来了高速崛起的必要条件。
待这条城际线路建成,从科技城出发,不过30min即可达到上海,如此便捷的交通,必将带来无可估量的人才流入。

更惊喜的是,沪嘉城际在科技城端,走的是“地铁制式”,线路全在地下!
这意味着,传统地面城际的劣势,是全然不会出现在科技城的!
可以说,沪嘉城际的存在,就是科技城的旺盛生命线,高端的购买力,会因此源源不断。
效果图

同样迷人的,还有“家门口的湖畔+教育”。
湖景+学校,是南湖区凌公塘板块当年的致胜法则,而现在能复制并且有机会超越这一模式的,科技城南位列其中。
水木槜园南侧不远处,就是城市新贵槜李湖,水域面积7.05w㎡。岸边湿地绵延,夏观白鹭纷飞,秋赏蒹葭苍苍,比南湖更多几分野趣。
清华附中,堪称全嘉兴来头第一的学校之一。几乎公认目前全嘉兴硬件设施顶级的公办学校、嘉兴市“百年百项”重大建设项目之一,嘉兴“第一家委会”所在地,更是省内唯一冠名清华品牌的基础教育学校。
凭借强大的师资力量和特色的教育理念,即使刚刚开学清华附中已然是很多嘉兴家长的第一选择。
效果图

在嘉兴,还没有其他板块的项目,能够把教育、交通、景观三者结合的这般出色。
尤其对“城市青年”而言,这里几乎就是首套房的首要选择,这批25-30岁的年轻人,职场虽刚起步,但普遍学历高、见识广。
即便暂时购房预算不多,他们在实用、舒适之外,也还有更多审美、心灵归属和圈层等方面的精神需求,水木槜园与之完美契合。
声明:本文由入驻焦点开放平台的作者撰写,除焦点官方账号外,观点仅代表作者本人,不代表焦点立场。
