招商云澜湾售楼处-(招商云澜湾)售楼处电话首页网站-楼盘详情-最新房价-咨询电话
扫描到手机,新闻随时看
扫一扫,用手机看文章
更加方便分享给朋友
松江滨水低密度新房「招商云澜湾售楼处电话:400-780-7338√√【热线】」96-141平高层/别墅!正在认购!
96平(毛坯)3房2卫345 万-418万
100平(精装)3房2卫396万-506万
上叠:788万-832万售楼处电话:400-780-7338√√【热线】
下叠:854万-903万
首付比例:首套15%,二套20%
招商云澜湾售楼处电话:400-780-7338√√【热线
交付标准:高层装修交付(17,18栋是毛坯交付);叠加毛坯交付
卖点:央企开发 双水系环绕 低密 不封阳台 南北通透 无连廊
项目信息
总建筑面积:超7.2万方
小区总户数:617套(高层477套,叠加140套)
一期开盘套数:292套(2023/12/12)
二期开盘套数:325套(2024/4/23)
车位:约860个(地上85个,地下775个)
容积率:约1.6
绿地率:约35%
产品类型:高层(总高13F直通地下车库;一梯两户北向无连廊)、叠加(总高4F带电梯;下叠带地下室、上叠带露台)
建面约:96㎡ 三房两厅两卫(高层)
100㎡ 三房两厅两卫(高层)
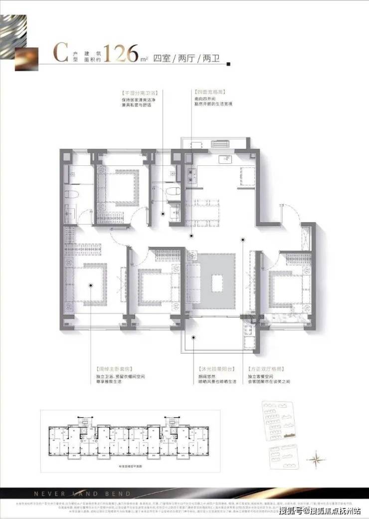
126㎡ 四房两厅两卫(高层)
135-141㎡(叠加)
均价:高层约4.6万/平,毛坯约4万/平(96平毛坯),叠加约6万/平
总价:约341-904万
总高:高层13层
叠加:下叠 1复2带地下室,上叠 3复4带露台
层高:高层 3米
叠加 首层3.3米,第二层3.1米
产权:70年
得房率:96/100平 约75%
126平 约80%
装修标准:高层 装修交付(中央空调+地暖+新风系统,除17、18幢是毛坯交付)
叠加 毛坯交付
拿地时间:2023年7月
交房时间:2025年12月31日
户型图如下
叠加户型图
96平样板房照片如下
100平样板房照片如下
松江滨水低密度新房「招商云澜湾售楼处电话:400-780-7338√√【热线】」96-141平高层/别墅!正在认购!
96平(毛坯)3房2卫345 万-418万
100平(精装)3房2卫396万-506万
上叠:788万-832万售楼处电话:400-780-7338√√【热线】
下叠:854万-903万
首付比例:首套15%,二套20%
招商云澜湾售楼处电话:400-780-7338√√【热线
交付标准:高层装修交付(17,18栋是毛坯交付);叠加毛坯交付
卖点:央企开发 双水系环绕 低密 不封阳台 南北通透 无连廊
声明:本文由入驻焦点开放平台的作者撰写,除焦点官方账号外,观点仅代表作者本人,不代表焦点立场。
