英冠·春棠雅韵府售楼处电话→英冠·春棠雅韵府售楼中心电话→2025杭州英冠·春棠雅韵府楼盘百科→首页网站→楼盘百科→首页网站→售楼处24小时热线电话
扫描到手机,新闻随时看
扫一扫,用手机看文章
更加方便分享给朋友
踞守临平乔司板块黄金中轴,英冠·春棠雅韵府紧邻地铁9号线翁梅站(直线约800米),5站地铁直达钱江新城2.0国际金融中心,东湖快速路、留石高架等城市主干道纵横贯通,无缝串联杭州东站、武林广场等核心枢纽。
项目坐拥“一湖一镇”发展红利——毗邻约350亩前湾中央公园(规划),与丰收湖千亿级产业带(阿里云、字节跳动等头部企业集聚)共筑产城融合新高地,重构杭州“未来总部湾”的滨水新潮岸。
【项目概况】
开发商:英冠控股集团
用地面积:约4.7万㎡
总建筑面积:约11万㎡
容积率:约1.2
绿地率:约30%
产品类型:21幢藏品排屋;9幢奢定洋房
户型面积:约166/182㎡洋房;约240/310㎡排屋
得房率:166㎡含赠送得房率95%,182㎡含赠送得房率93%
交房时间:预计26年年底
外立面:干挂石材➕铝板
车位比:1:1.62
物业费:洋房4元(含能耗),排屋5.5元(含能耗)
物业公司:中冠物业服务有限公司
装修标准:洋房4000元/平精装交付,地暖新风中央空调,排屋毛坯交付
产权年限:70年
洋房:1楼层高3.5米,带地下室➕花园,花园面积30-50方,地下室面积110-130方,地下室层高3米,有采光井,2楼及以上层高3.15米
1楼有非标户型:138方
楼间距:28-33米,1:1宽间距
排屋:花园面积边套160-170方,中间套70-90方,地下室面积170-200方,地下室层高6米,1层4米,2.3层3.4米
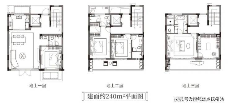
在钱江新城二期、城东新城等板块高层林立的背景下,这个容积率仅1.2的纯低密住区,用"主城芯+低密双拼"的组合拳打破了改善市场的传统困局——既不用为市中心低密豪宅支付天价,也无需忍受郊区低密盘的配套短板。洋房产品:建面约166/182㎡,得房率高达93%-95%,排屋产品:建面约245/315㎡。
建面约310㎡的边套,首层南向横厅面宽就达到了约6.9米,厨房面宽约5.5米,可以阔绰地分出中西厨;
二层除了两个超30㎡的大套间,还另外辟出一间家庭厅,大人们在一楼宴客,也不妨碍孩子有独立空间尽情玩乐。
三层则完全留给主卧套,卧室区就超过了40㎡,外接L型大露台;衣帽间大得可以搁下展示柜,将珠宝和腕表一一陈列;阳光好的南向小房间,做一间书房合宜。
春棠雅韵府建面约240㎡排屋装修示意图
建面约240㎡的中间套,同样是大四房格局,二三楼都有宽约8.9米的跑道式阳台,四季美景循环播放。它还带来了绝对惊喜的价格,总价千万左右就能入手!不必担心未来流动性,城市排屋只会因稀缺而珍贵,永远不缺中上产买家。
产品设计上,洋房与排屋的户型革新堪称教科书级。建面约166㎡洋房以95%得房率,实现四房三卫双套房配置,南向双联阳台达9.2米——这相当于用450万级总价,在首改预算里装进了传统大平层的空间体验。

丨英冠·春棠雅韵府实景图
总价千万级的排屋建面约310㎡边套南向开间约11米多,营造全面屏采光效果。地上三层的排屋格局更实属难得,一层层高达约4米,二层三层也有约3.4米,空间感高高拉起,其中更可贵的是三层整层都是主人的主卧套房,尊享感爆棚。
建筑以“宋式山水画卷”为灵感,白墙黛瓦与香槟金线条勾勒东方意境,约2000㎡下沉式奢雅会所融合宋代园林风骨,打造“画里寻居,诗中筑园”的立体美学空间。示范区地面公区叠加地下会所,总规模达约4000㎡,规划恒温泳池、私宴厅、闺蜜厅、儿童游乐区等多维场景,以“宋韵生活哲学”重塑塔尖圈层的社交主场。

丨英冠·春棠雅韵府实景图
真正的排屋,必然占据城市发展的价值高地。春棠雅韵府落子城东新中心,深度融入杭州“东进”战略,与钱江新城2.0形成黄金发展轴线。项目直线距离约800米地铁9号线翁梅站,5站直达钱二,9站贯通江河汇;遥望X27、上城天街(在建)等商业环伺,构筑璀璨生活圈。
▲实景图
更难得的是生态与教育双重资源加持,数智城中心公园(计划明年6月投入使用)、滨水公园(在建)、丰收湖公园等生态谧境萦绕;杭高临平校区仅一路之隔,全龄教育链近在咫尺,为家族长远规划埋下伏笔(项目不承诺学区,实际以教育部门公告为准)。
▲数智城中心公园效果图
声明:本文由入驻焦点开放平台的作者撰写,除焦点官方账号外,观点仅代表作者本人,不代表焦点立场。
