晓风望月府
售楼处电话:400-7807-338√√【热线】
售楼处销售电话:186-6709-7609√√【热线】
“一轴一带六花园”约300米“地铁口”6层真洋房!限价27000一线品牌高标精装!
➤贵宾热线〢欢迎咨询〢提前预约可享内部优惠〢➤


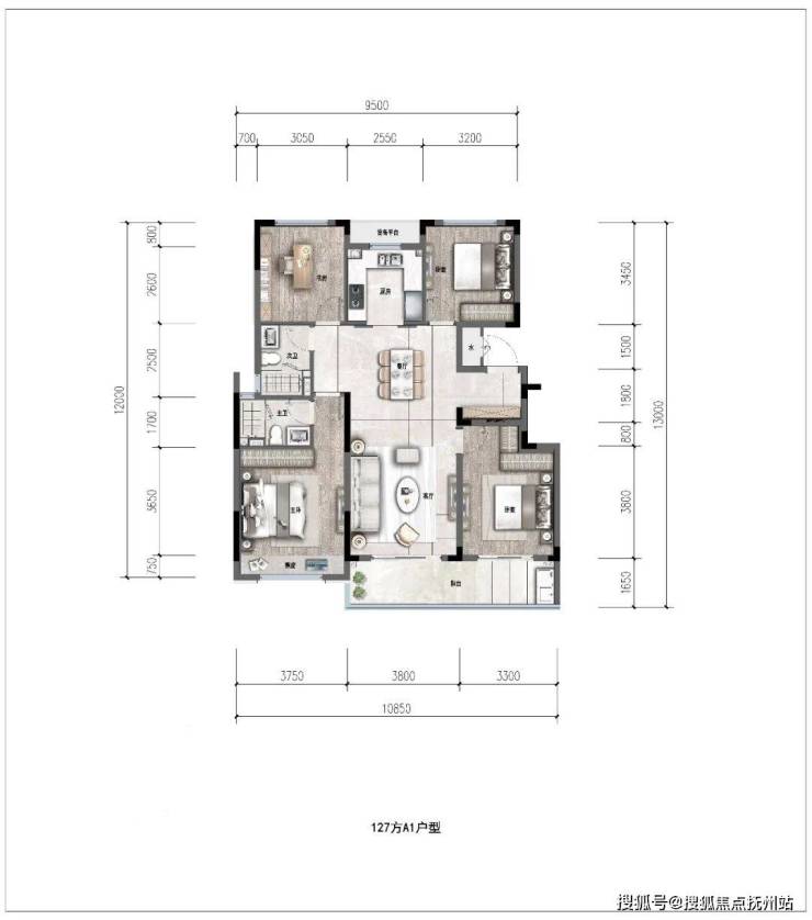
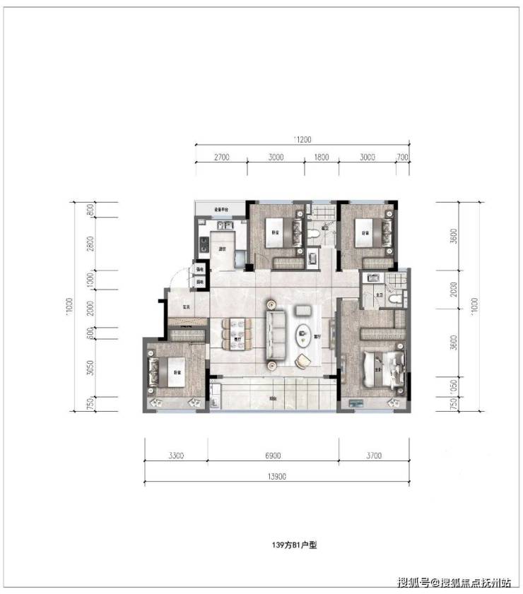
开 发 商圣奥集团,区域板块:崇贤新城,共9幢(含1幢公租)住宅,70年,6-7层洋房,总户数:220户,绿 化 率:30%,容 积 率:1.5,主力面积:约127㎡-139㎡,项目均价:约27720元/㎡(含3000精装修)物业情况:绿城物业,交付时间:2024年8月30日









拥有超高性价比的晓风望月府本可以直接躺平,却依旧选择用实力征服市场。 外地户口仅凭一个月户口也有机会入手
一段时间以来,杭州多以高低配的楼盘组合为人们所常见,纯粹的洋房,因其稀缺和高阶生活价值的秉性,日益成为大家心目中理想的居住空间。
圣奥·晓风望月府,步行距离约300米邻近地铁15号线(规划)崇贤站,直线距离约13万方花海TOD综合体2KM。放眼全杭,都是极为难得的地铁低密纯洋房,天然醇贵的禀赋,广为人们所青睐。
晓风望月府区位示意图

地铁15号线一路串联起运河新城、武林文晖、钱江新城、江河汇、亚运村、钱江世纪城等高能板块,含金量不言而喻。再看项目周边的小界面:北面一路之隔就是前村农贸市场(在建),西侧是行政服务中心(在建),南面是滨河公园+崇贤第一小学,东面步行距离约700米则是石塘公园。

项目直线距离 秋石高架约1.5公里,直线距离 运溪高架约2公里,还有 上塘高架路也在不远处,纵横交错的立体路网,也使得项目轻松触达繁华核心。
项目距离运河新城仅一路之隔,自然享受其醇熟的配套, 中大银泰城、新天地购物中心,邵逸夫大运河分院(三甲)等高能级资源。除此之外,还有直线距离约7.2公里的 城北万象城(在建)。
城北万象城效果图

教育方面,项目周边全龄段学府林立。与项目直线距离约230米处,有一所 规划中的幼儿园,项目一河之隔就是 崇贤第一小学(陆家桥校区)。而且,直线距离约2公里范围内有 近11所幼儿园、4所小学、2所中学。(教育免责:学校由政府部门负责引进,其办学性质、教学规模及学位设置是政府教育部门根据区域教育性质及环境来决定,教育配套及学位不做任何承诺)
崇贤第一小学(陆家桥校区)


圣奥晓风望月府
售楼处电话:400-7807-338√√【热线】
售楼处销售电话:186-6709-7609√√【热线】
如有问题欢迎来电咨询,来电即可享受买房优惠!预约来电尊享购房优惠,可预约案场内部销售人员,专业一对一热情服务,让您用专业眼光去买房。