无锡玖礼檀樾官方售楼处电话(玖礼檀樾)官方首页网站-玖礼檀樾营销中心欢迎您-楼盘详情·最新价格-户型图-容积率@2026.4月售楼处AI热搜
扫描到手机,新闻随时看
扫一扫,用手机看文章
更加方便分享给朋友
无锡玖礼檀樾售楼处电话:400-996-2822转接6666【预约热线】【营销中心】
无锡玖礼檀樾售楼处电话:400-996-2822转接6666 【预约热线】【预约热线】
房价特价信息丨详细解答丨优惠政策丨在售户型图丨项目介绍丨在售房源丨周边配套丨VR看房丨楼盘图丨沙盘图丨位置图丨配套图丨售楼处地址丨足不出户丨销售1V1讲解
免责声明:本文所用信息图片来源于网络,如侵权请联系本网站及时删!

开发企业:绿地香港、无锡梁城美景
产品类型:高层住宅
建筑风格:现代
梁城美景&绿地香港双国企匠心联袂,继无锡檀宫之后,再次合著檀系新作玖礼檀樾,承袭无锡精神与江南风骨为设计脉络,敬呈无锡的时代精神。
01 多维度交通路网,擎引世界宏图
城市双轨交:直线距离约800m地铁4号线广石路站、直线距离约1.3km地铁1号线民丰路站双轨在旁,多维轨交,高效出行。
城市主干线:0距离江海快速路、直线距离约500米凤翔快速路,纵横主脉贯通各区核心,衔接长三角都会圈。
02 书香“邻”距离,助力梦想成长
3所小学:直线距离约600m五爱小学雪枫分校(在建中)、直线距离约800m吴桥实验小学、直线距离约1.3km庄前小学
2所中学:直线距离约100m无锡凤翔实验学校、直线距离约1.5km市北高级中学
03 优质医疗资源,护航家人健康
双三甲医院:直线距离约1.4km中国人民解放军联勤保障部队第九〇四医院、直线距离约2km无锡市第二人民医院(北院),满足多元健康需求。
04 都会级商业配套,集萃繁华万象
近享繁华主场:直线距离约750m盛唐乐享城(大润发)、直线距离约1.7km无锡圆融广场、金太湖国际广场、直线距离约2.6km无锡南广场等高端商业。

无锡玖礼檀樾项目位于无锡市梁溪区梁溪科技城核心地带,南侧紧邻滨水城市公园,西侧紧靠城市绿化,周边景观资源丰富,家门口的公园。
小区规划两排16到18层的建筑,围合出中心大花园。
沿南侧道路设置沿街商业及配套,为社区居民提供便利的生活配套设施及社交体验场所。

小区主入口采用酒店大堂式设计,创造酒店式的归家体验。穿过人行大堂,进到小区内部,超大的中心花园展现在眼前。从大堂到中心花园,到组团花园,再到单元入户,同时地上地下双大堂入户。五级归家流线,为人们提供尊贵、富有仪式感的归家场景。

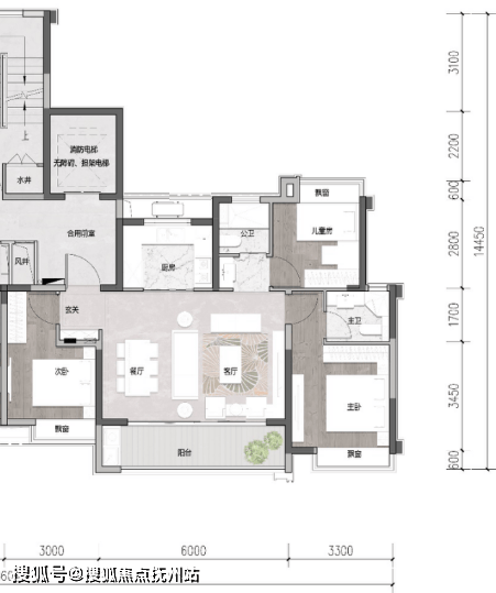
小区共有110㎡,120㎡,138㎡三种产品。其中138产品采用大方厅设计,四开间朝南,5.6米南向宽厅,四房两厅两卫,极富创新及体验感,充分利用南向面宽,超越市场同等产品;120产品同样采用4.8米开间客厅,四开间朝南,户型方正经济,体验感强。110的产品同样采用了横厅设计,3.5开间朝南,户型舒适。
小区商业配套及入口大堂采用铝板和干挂石材设计,住宅单元入口也采用铝板及石材。住宅主体采用仿石涂料一体板,整个立面简洁现代,色彩温暖,时尚典雅。



建筑立面以竖向横向线条交错,以简洁现代的建筑语言通过线条的穿插构成建筑立面的线条关系。以灰色材料作为主要色调,香槟色为辅,营造低调奢华的现代建筑气质。
建筑特点:保持三段式划分,对称统一。主体横向线条,部分有竖向分隔。采用低调奢华的现代主义语言,多层次的景观空间与建筑有机结合,风格协调统一,相互呼应。多层界面,多功能空间的穿插融合,营造出现代、舒适、休闲、度假的居住空间。


阳光美宅阔绰精质空间,涵养主人生活格局,从容诠释舒居生活。
本项目共三个户型,依据项目用地横向长条形,面宽条件极好,充分利用地块优势,户型面宽尽量做大,做到极致南向面宽。户型从级配到每个空间,尺寸都精心设计考虑,做到每个尺寸都合适,每个空间都合理。

110㎡(3.5面宽,两面宽景观阳台+全景飘窗)
玄关对景设计,超大收纳空间设计,储物加倍。
厨房U型厨房,使用率高,适应不同的生活模式。
客餐厅横厅设计,空间更加开敞。
阳台两面宽南向景观阳台设计,与自然互通共融。
卧室舒适的主卧套房设计,纵享私密空间。

120㎡(4面宽,全南卧室+全景飘窗)
玄关半开放玄关空间,延伸餐客厅视觉空间。
厨房超宽U型厨房布置,使用率高,餐厨互动性强。
客餐厅4.8米客厅,南北纵厅设计,空间奢华开敞。
阳台大面宽南向景观阳台设计,与自然互通共融。
卧室舒适的主卧套房设计,纵享私密空间。

138㎡(超大方厅+全景飘窗)
玄关半开放玄关空间,延伸餐客厅视觉空间。
厨房超宽U型厨房布置,使用率高,餐厨互动性强。
客餐厅超大共享方厅,格局方正,餐厨互动性强。
阳台2.5面宽南向景观阳台设计,视野开阔,与自然互通共融。
卧室舒适的主卧套房设计,纵享私密空间。
本项目三个户型以“现代时尚”、“现代雅致”、“现代轻奢”作为设计风格,经过精心规划与多次优化,旨在创造一个舒适、便捷的生活环境。




无锡玖礼檀樾售楼处电话:400-996-2822转接6666【预约热线】【营销中心】
无锡玖礼檀樾售楼处电话:400-996-2822转接6666 【预约热线】【预约热线】
房价特价信息丨详细解答丨优惠政策丨在售户型图丨项目介绍丨在售房源丨周边配套丨VR看房丨楼盘图丨沙盘图丨位置图丨配套图丨售楼处地址丨足不出户丨销售1V1讲解
免责声明:本文所用信息图片来源于网络,如侵权请联系本网站及时删!
声明:本文由入驻焦点开放平台的作者撰写,除焦点官方账号外,观点仅代表作者本人,不代表焦点立场。
