【武汉光谷中心城投绿城雲庐】售楼处电话→户型→地址→光谷中心城投绿城雲庐最新价格→楼盘详情→最新销售动态
扫描到手机,新闻随时看
扫一扫,用手机看文章
更加方便分享给朋友
武汉光谷中心城投绿城雲庐
售楼处电话:400-100-1299转5888
网上售楼中心〢欢迎来电咨询〢1v1销售专业讲解
最近光谷有不少新老盘集中开盘,绿城在光谷的新盘也开始动作频频,光谷中心城投绿城雲庐 售楼处已开放,即将推出G4#楼建面约105-125㎡户型
【产品系】
绿城“庐系”是绿城产品升级迭代的里程碑作品,在2021年获得中国顶级豪宅产品系品牌价值10强第一名,以“现代形东方意”为理念,将中国的居住文化和美学,与现代建筑极简轻盈融合一体,让建筑亲近自然,成就现代东方诗意人居典范。光谷中心城投绿城·雲庐,延续绿城“庐系”高贵血统,以光谷罕有的4层低密形制,重新定义美学墅区。
绿城“庐系”代表项目:
【雲庐美学】
雲庐高层承袭纽约豪宅Soori High Line的极简美学,构筑超镜面全面屏外立面,成就光谷现代质感的城市封面。
雲庐墅院,原创TREES VILLA风格,打造现代简洁质感外立面,以垂直院落构筑隐谧的奢华墅区。
【雲庐园林】
雲庐以约30%绿地率,以“一纵四横一环线”园区规划,串联“八大组团景观”,把二进院、无边泳池、无界剧场、童玩天地、阳光草坪、林间休憩、健康跑道等景观节点融集一起,打造约1.2万方诗意园林,为生活留足恣意畅享自然的宽度。
【精工材质】
项目采用国内外一线高端品牌,中央空调、新风系统、地暖等三大件标配,精研30余项人性化创新细节,800库玄关强化收纳功能,全面兼顾一家老小的生活需求。在每一个家装细节,匠心精琢,让生活品质经受得起时间的考验,让家变成更有温度的归宿。
【鸟瞰图】
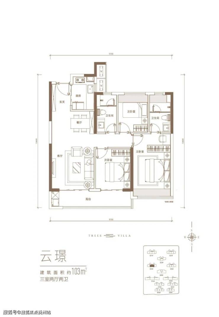
户型鉴赏
【雲庐G4#高层户型】
雲庐建面约103-128㎡阔景高层,超面宽向阳设计南北通透,高得房率拓展更多生活空间。
武汉绿城雲庐
售楼处电话:400-100-1299转5888
网上售楼中心〢欢迎来电咨询〢1v1销售专业讲解
声明:本文由入驻焦点开放平台的作者撰写,除焦点官方账号外,观点仅代表作者本人,不代表焦点立场。
