苏州中铁咏月台售楼处电话(官方最新发布)→中铁咏月台售楼中心电话→楼盘百科→首页网站→楼盘测评→中铁咏月台营销中心电话→24小时热线电话
扫描到手机,新闻随时看
扫一扫,用手机看文章
更加方便分享给朋友
苏州中铁咏月台
售楼处电话400-002-9578转接1111(已认证)
营销中心电话400-002-9578转接1111【售楼中心】
温馨提示:网上售楼中心〢预约可享内部优惠〢匠心钜制-恭迎品鉴〢
免责声明:(本文章所用信息图片来源于网络,如有侵权请联系本网站及时删除)
①容积率1.5,打造4F叠墅+四代宅洋房纯低密社区,仅186套。
根据已公示的规划方案,中铁咏月台容积率仅约1.5,全盘建筑限高40米,仅打造3栋4层叠墅和5栋10-11层洋房,共计186户,是个小而精的低密改善社区。
其中叠墅产品全盘仅36套,稀缺性突出。下叠面积约为186㎡和192㎡,上叠面积约为176㎡。
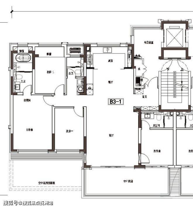
洋房产品包含两种类型。一类为四代住宅洋房,面积约162-164㎡;另一类为普通洋房,面积约132㎡。
项目中的四代洋房户型,设计了“错层双花园”系统:偶数层配备南向私密花园直连主卧,奇数层则设置社交花园衔接客厅。户型拥有约16.65米的南向超大面宽,采用LDKB一体化横厅设计,并配置双套房,得房率非常高。
另外还有宽境洋房建面约132㎡,四开间朝南,LDKG一体化设计,以较为友好的面积段+低总价+高品质,填补吴中城南改善的空白。
②苏州首个!真正的新规红利盘——首层全架空,车停地面、家在云端...
除了低密产品之外,中铁咏月台的最大亮点在于,这是苏州首批落实《改善型住宅技术要点》新规的盘,它创新性打造了苏州第一个“首层架空车库”。
大白话来说就是:它将传统的地下停车场抬升至地面一层,实现了多重突破性优势——
人车完全分流,实现"无雨归家",业主可从架空车库通过归家大堂垂直电梯直接入户;
车库平进平出,提升车行体验感和安全系数,并且车库可以拥有自然采光;
释放约2000㎡下沉庭院空间,用于配置物业服务、托育等功能;
减少地下开挖,降低了对城市环境的影响;
二层住宅相当于普通小区的三层高度,提升了低楼层住户的视野。
苏州中铁咏月台
售楼处电话400-002-9578转接1111(已认证)
营销中心电话400-002-9578转接1111【售楼中心】
温馨提示:网上售楼中心〢预约可享内部优惠〢匠心钜制-恭迎品鉴〢
免责声明:(本文章所用信息图片来源于网络,如有侵权请联系本网站及时删除)
声明:本文由入驻焦点开放平台的作者撰写,除焦点官方账号外,观点仅代表作者本人,不代表焦点立场。
