武汉中交澄园售楼处电话|首页网站-中交澄园营销中心地址-2026.1实时房价-户型图-在售房源-楼盘详情-容积率-备案价@官方权威发布
扫描到手机,新闻随时看
扫一扫,用手机看文章
更加方便分享给朋友
武汉中交澄园售楼处电话:400-996-2822转接6666【预约热线】【营销中心】
武汉中交澄园售楼处电话:400-996-2822转接6666 【预约热线】【预约热线】
房价特价信息丨详细解答丨优惠政策丨在售户型图丨项目介绍丨在售房源丨周边配套丨VR看房丨楼盘图丨沙盘图丨位置图丨配套图丨售楼处地址丨足不出户丨销售1V1讲解
免责声明:本文所用信息图片来源于网络,如侵权请联系本网站及时删!

✅10号楼133㎡洋房
✅5号楼/9号楼2-4楼工抵房源一口价12+++
✅区域稀缺2.76低密实景现房
✅已签约吉林街小学(第一梯队)
【主城低密 双地铁 品质高层 花园洋房】
💎长江主轴之心·黄金右岸门户
🍀纯粹绿水青山·澄澈公园居所
👍立体交通交汇·便捷生活向心
🌆全维醇熟配套·尽揽人间烟火
❤【项目简介】❤❤
【开发商】武汉锦绣雅和置业有限公司
【项目产品】品质高层/花园洋房(70年住宅)
【交付标准】毛坯
【总户数】1032
【价格】高层均价1.4万元左右/㎡,10号楼133㎡洋房总价200万起
【物业】绿城物业服务集团有限公司
【物业费】3.2元
【占地面积】44239.11㎡
【建筑面积】176227.04㎡
【公摊】高层约20%-22%,洋房约15%
【绿化率】30%
【容积率】2.76
【停车位】1562
【楼栋情况】1-5、9栋为高层,6、7、8、10栋为洋房
【交房时间】现房
✨城市深情处 人间烟火时✨
立体交通:紧邻城市主干道工业路,毗邻地铁5号线双换乘站点“和平公园站”、地铁10号线(规划中)“工业路站”,尽享轨桥隧立体交通,分秒间畅行三镇
一站式教育:小区自建9班幼儿园,青山十小、十七小、十九小、吉林街小学、六中、十一中等多所优质学校环伺
繁华商业:武商城市广场、印象城、红坊里、奥山世纪广场等商圈密集,商业氛围浓厚,消费选择丰富
优质医疗:武钢总医院(三甲)、普仁医院(三甲)和武汉市第九医院,为家人健康护航

运动配套:自建4000m2室内运动中心,倡导积极健康的生活方式
生态宜居:北邻武汉最大的“翡翠项链”—南干湖游园,距离青山区最大城市公园-和平公园仅800米,生活在此,公园为伴
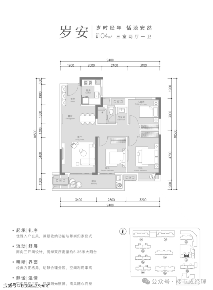
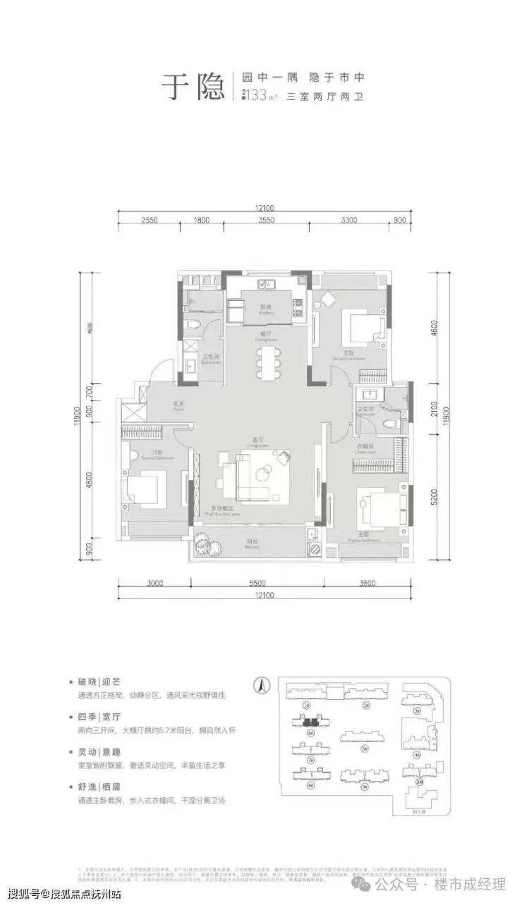
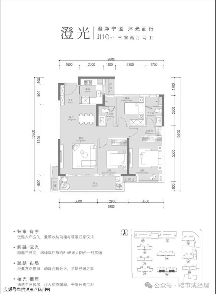
户型图
5号楼户型图



武汉中交澄园售楼处电话:400-996-2822转接6666【预约热线】【营销中心】
武汉中交澄园售楼处电话:400-996-2822转接6666 【预约热线】【预约热线】
房价特价信息丨详细解答丨优惠政策丨在售户型图丨项目介绍丨在售房源丨周边配套丨VR看房丨楼盘图丨沙盘图丨位置图丨配套图丨售楼处地址丨足不出户丨销售1V1讲解
免责声明:本文所用信息图片来源于网络,如侵权请联系本网站及时删!
声明:本文由入驻焦点开放平台的作者撰写,除焦点官方账号外,观点仅代表作者本人,不代表焦点立场。
