和家园·玺园香樟(营销中心)首页网站-西湖和家园·玺园香樟销售中心(售楼处)-楼盘欢迎您-地址-价格-户型-小区环境-楼盘详情-交房时间-周边配套-售楼处电话
扫描到手机,新闻随时看
扫一扫,用手机看文章
更加方便分享给朋友
买房,买的就是对资源的占有度。在玺园合院,就有种「庄园」的体验。业主做了直接的对比:「在上海,这样的房子,可能得花一个小目标」。

总平图:
(本次加推29-30-31幢,共计23套房源)
项目信息
产品:中式山水精装合院
属性:住宅
主力面积:约200-300㎡
层高:一层3.6-6.6米(为主);二层3-5.15米(为主)
容积率:玺园合院0.4
建筑:gad建筑设计
景观:GTE绿城环境
室内:CCD香港郑中设计事务所(全球酒店室内设计第一)/ W.DESIGN无间设计(高端酒店集团长期合作伙伴,多次荣获全球室内设计权威奖项)
装修:精装交付
装修品牌:德国嘉格纳Gaggenau、德国当代Dornbracht、瑞士劳芬Laufen,德国卡德维Kaldewei
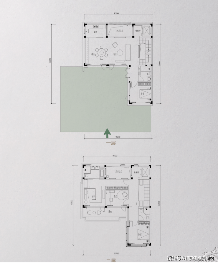
样板房户型图:
200m²

212m²

248m²

290m²

玺园·长流生活场景样板房实景
不辜负“和家园就是植物园”的美誉,许多大树也留在了原地,高大的香樟,树形优美的无患子、南酸枣、广玉兰,再配上新植的乌桕、红梅、沙朴等,任凭四季更迭,皆可花木葱茏,移步换景。
组团入口处,以一株树龄约80年的婆娑黑松迎客,月洞门边,守候着一丛苍翠欲滴的龟甲竹,共同绘就一幅松竹常青的宋代名画《西园雅集》。
温馨提示:房屋选择注意事项
挑选户型:优先选择南北通透、户型方正的户型,朝向优劣顺序为正南>东南>西南>东>西>北;对侧通风的户型通风条件佳;房子内部各功能区域面积分布应均匀,开间与进深比例以1:1.5为宜,且要动静分区。
挑选楼层:低楼层出行方便,但通风、采光、视野和私密性较差,噪音污染严重;高楼层视野好、空气清新,但电梯故障可能影响出行;1/3至2/3之间的中间层,空气质量较好,出行也较方便,是相对较好的选择。
多学习选房知识:不能只看房价,要综合考虑户型、房屋质量、小区环境、交通状况、周边配套等因素,不能因房价高或地段好而忽视其他重要条件。
看优惠:对于开发商给出的优惠,要多打听、多分析、多判断,不要盲目追风,避免被开发商的“托”或职业顾问误导而冲动消费。
莫心急:年轻人置业时,不要好大喜贵,应抛弃一步到位的思想,根据自身经济承受能力,合理选择房屋,不要盲目追求大户型或高端楼盘。
小区及周边环境考量
看规划:地段是决定房子价值的关键因素,要选择紧跟城市发展方向的地段,好地段的房产保值或升值空间更大,购房风险相对较小。
看小区环境:小区的景观、绿化、配套等与生活密切相关,是楼盘质量的体现。周边有大超市、医院、学校等配套设施,交通便捷,小区内部有停车场、公共厕所、多功能儿童活动空间等,能提高居住的便利性和舒适度。
避免极端层:底层容易潮湿、发霉、滋生蚊虫,光线也不好;顶层一到夏天闷热、不透气,还容易漏水,所以不建议购买。
远离设备层:设备层是专门供水、供电的中间楼层,常年居住在附近,机器设备的噪音会影响休息,机器辐射也可能影响身体健康。
其他注意事项
价格挑选:在个人承受范围内,综合考虑交通状况、社区环境、户型结构等条件衡量楼盘价格,不要单纯以房价高低来判断房子的好坏。
不可一味买大:面积以适用为原则,不要为大而大,国家区分豪宅和普通住宅的分界线一般是144平米,购买大房子不仅不实用,还可能涉及更多税费,物业费、取暖费等也会增加。
考虑孩子问题:购房时要考虑孩子的房间需求,户型好为两居室以上;同时考察周边教育设施配套,尽量选择距离学校近的房子,以保障孩子路上的安全,节约孩子的时间,让孩子有充裕的时间学习和休息。
了解物业:不同的物业公司服务千差万别,物业公司的服务质量直接影响小区的整体质量,要了解物业公司的专业团队、设施设备、内部管理等情况,选择服务好的物业公司。
购房定金:定金与订金不同,定金具有担保性质,一旦交付,若购房者不履行合同,无权要求返还定金;若开发商不履行合同,应双倍返还定金。所以要谨慎交付定金,辨别“订金”与“定金”。
签认购书:认购书是商品房买卖的预约合同,基本条款要约定详细,对所购房屋的主要情况在认购书中予以约定,条款内容要合法有效,要求开发商提供作为正式签约的商品房买卖合同文本,避免被开发商的不平等条款套牢。
声明:本文由入驻焦点开放平台的作者撰写,除焦点官方账号外,观点仅代表作者本人,不代表焦点立场。
