武汉天创元萃售楼处电话→地址【武汉天创元萃】Ai热搜24小时电话→ 最新房价→楼盘百科详情@售楼处中心
扫描到手机,新闻随时看
扫一扫,用手机看文章
更加方便分享给朋友
✅武汉天创元萃售楼处电话:400-002-9578转1111【已认证】
✅武汉天创元萃售楼中心电话:400-002-9578转1111【官方网站】
✅温馨提示:网上售楼中心〢预约可享内部优惠〢匠心钜制-恭迎品鉴〢
✅免责声明:(本文章所用信息图片来源于网络,如有侵权联系本网站删除)
01.项目规划
天创元萃,由天创与贝好家合作开发,后者占股权比例为30%。贝好家入股30%,引入C2M模式,通过贝壳大数据精准匹配客户需求,优化产品设计。
项目地处武昌区中山路与解放路交汇处,位于武昌内环核心地段,紧邻昙华林历史文化街区,直线距离长江仅约400米。项目共规划4栋楼,均为10-13层小高层,总建面约3.3万方,容积率2.0,住宅建面约2.08万方,共159户。

02.建筑设计
从门口开始,项目就拿出了非遗级别的手工艺屋顶飞檐、纯古铜鎏金水波纹饰面,由数十位非遗匠人历经反复錾刻淬炼而成。
建筑立面以现代公建化手法为基底,巧妙融合金属铝板、玻璃幕墙与天然石材,萃取千年“仪门”及贡院古建筑拱门的经典元素,并融入国际前沿审美中的扎哈曲线立面设计。
03.景观设计
项目打造立体多维水景园林,极具标识性的建筑,层层交错的水景与植被,赋予整片中央园林极强的层次感。以门、台、水、亭四景成轴,借鉴古法匠艺于中央水景,巧设全景会客厅。甄选朴树、乌桕等珍稀名木,引入樱、桂、枫、梅等四季花木,营造立体多维的水景园林。
04.会所设计
社区会所「风雅集」,汇聚私宴厅、会客厅、行政酒廊、棋牌室、室内桌球、KTV等多元空间,尽享风雅生活。“铂金仓”中央车站式大厅,实现双向独立车道,仪式感与功能性并存。
05.户型设计
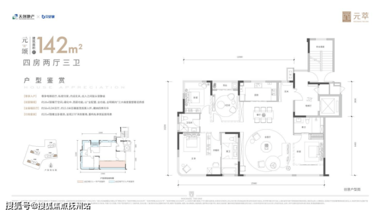
首开1-4号楼约127-170㎡一梯一户四房产品,使用率约105-113%,仅159套塔尖豪宅。
建面约127㎡实现三套间优化设计:
客餐厅:南向开间约5.6米,面积约52㎡,几乎相当于一套小公寓的总面积;南向双主卧套房:南向开间约3.8/3.3米,面积均超20㎡,已达到常规140㎡+户型的主卧水准;北向两间卧室,面宽也达到了约3米,如果再优化出一间套房,面积也可以做到约15㎡左右。

建面约143㎡户型:该户型设计中,真正实现了全明采光体系 。电梯厅、玄关处均做了开窗设计,整个归家动线没有一个暗角,全是充足的自然光。主卧+次卧做了270度无柱化双转角窗设计。

✅武汉天创元萃售楼处电话:400-002-9578转1111【已认证】
✅武汉天创元萃售楼中心电话:400-002-9578转1111【官方网站】
✅温馨提示:网上售楼中心〢预约可享内部优惠〢匠心钜制-恭迎品鉴〢
✅免责声明:(本文章所用信息图片来源于网络,如有侵权联系本网站删除)
声明:本文由入驻焦点开放平台的作者撰写,除焦点官方账号外,观点仅代表作者本人,不代表焦点立场。
