苏州澜庭壹号院官方售楼处电话-苏州澜庭壹号院首页网站-苏州澜庭壹号院最新房价-户型-容积率-小区配套-楼盘详情/价格/户型
扫描到手机,新闻随时看
扫一扫,用手机看文章
更加方便分享给朋友
苏州澜庭壹号院售楼处电话:400-002-9578转2222(已认证)
苏州澜庭壹号院开发商电话:400-002-9578转2222【售楼中心】
温馨提示售楼中心〢预约尊享1V1品鉴礼遇〢匠心钜制-恭迎品鉴〢
温馨提示本项目暂不接受临时到访,过来参观样板房请记得提前来电预约!
免责声明:(本文章所用信息图片来源于网络,如有侵权联系本网站删除)
【澜庭壹号院】
⛰️百墅狮山 底密墅区🌲
🏆五大名校 六大商圈💥
💯城芯腹地·纯粹圈层💰
🏠洋房:135㎡
🏡叠加:265-338㎡
🌟数量有限先抢先得!
作为绿城旗下最高端的产品序列,壹号院系此前仅布局全球核心城市,每一座作品都代表着绿城对城市价值的最高礼赞.此次狮山项目以“澜庭壹号院”命名,既延续了苏高新“澜”系在苏州市场的口碑积淀,又注入了绿城壹号院系的国际视野.
澜庭壹号院总用地面积约3.6万平方米,总建筑面积7.9万平方米,由21栋建筑组成.

#2栋10层精装洋房(约100套,建面135㎡)
#2栋6层叠墅(约36套,建面约218㎡、236㎡、258㎡,下叠带庭院)
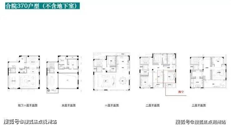
#17栋3层联排(约69套,建面约270㎡、325㎡、370㎡,预计最大庭院超300㎡)
澜庭壹号院整体仅规划约205户,是狮山罕见的纯粹低密社区.小道消息称项目建筑设计延续绿城“逸庐系”的现代东方美学,由曾操刀上海融创滨江壹号院的GOA大象设计主笔,屋顶采用中式坡顶设计,与狮山逸庐一脉相承.
洋房
135平(四房两厅两卫)
叠墅:
下叠:218㎡
中叠:236㎡

上叠:258㎡

苏州澜庭壹号院售楼处电话:400-002-9578转2222(已认证)
苏州澜庭壹号院开发商电话:400-002-9578转2222【售楼中心】
温馨提示售楼中心〢预约尊享1V1品鉴礼遇〢匠心钜制-恭迎品鉴〢
声明:本文由入驻焦点开放平台的作者撰写,除焦点官方账号外,观点仅代表作者本人,不代表焦点立场。
