招商中旅·观境2025首页网站-上海招商中旅·观境官方楼盘详情-上海房天下-招商中旅·观境楼盘详情-招商中旅·观境最新房价+户型图+交通+小区配套环境
扫描到手机,新闻随时看
扫一扫,用手机看文章
更加方便分享给朋友
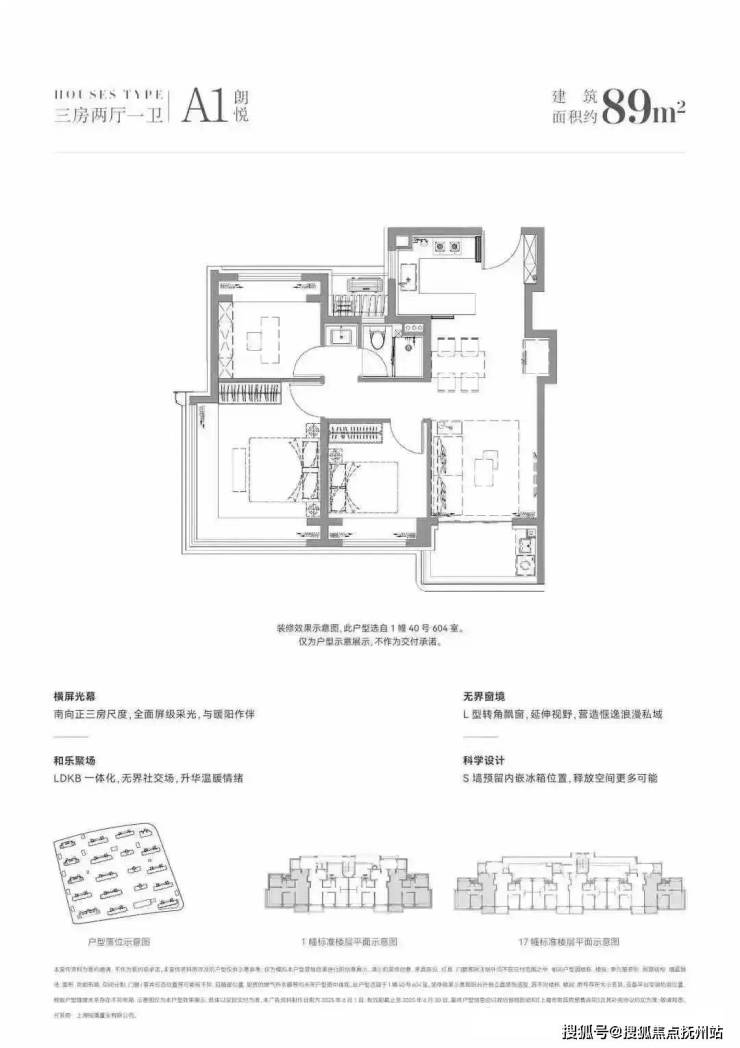
户型图赏鉴
先来看建面约110㎡3房2卫
入户门是是非常有质感的铸铝门,带电子猫眼智能门锁;进门后是一个独立玄关,木纹玄关背景墙,右侧是通顶的悬浮玄关柜,内置鞋柜精灵和抽拉鞋架。
这个户型的一大亮点就是这个客厅,约5.5米面宽的阳台,约25㎡的方厅,充满了可变性。
传统住宅设计中,每个房间的连接处都会有或深或浅的过道空间,造成空间浪费。
招商中旅·观境的解决方案是“零无效空间”。通过整合餐客厨等公共区域厅,将原来南北厅中间的走廊空间融合到使用空间中,减少过道的面积,避免碎片化的空间带来的冗余浪费。大面宽,短进深,餐厅与客厅横向相连,每一平方米都物尽其用,把客厅升级为家庭互动主场。
约5.5m面宽的阳台,可以变成第二家庭厅、品茗室、阳光瑜伽室、生活后花园,自由打造的私享空间,延伸出生活的宽度。
再来看下厨房配置。U型厨房,预留了大约1米宽的双开门冰箱位置,厨电采用方太四件套——烟机、灶具、蒸烤一体机、洗碗机。其中洗碗机,轻扣门板可自动开门的新款!
厨房移门是类似于水波纹的三移门,不占空间,上轨道设计,更易于日常清扫。
双卫配置,其中一个做了干湿分离,科勒台盆+双智能马桶+高仪花洒,除雾镜柜均内置了牙刷消毒器、预留吹风机插座。主卫镜柜还有美妆冰箱,收纳空间相当充足。
样板间3房做的是边套,今年非常流行的L型转角大飘窗也安排上了,采光视野更佳。
再来看下建面约144㎡4房,部分装标是有所升级的。
入户门升级为了子母门,更显大户人家气质。
厨房是带岛台交付的U型厨房,厨具品牌为西门子四件套,另外还有双开门冰箱,线性凉霸、科勒单槽。
橱柜转角处的拉篮做了“轻松抽”,业主不必特别伸手探进去拿东西,非常省力。
北上海能级兑现 新顾城开启中心时代
❍上海南北转型战略 宝山树立北上海门户定位
宝山作为上海链接长三角北翼门户,打造现代化、创新型、⽣态化国际⼤都市主城区和绿⾊低碳转型样板区,在上海南北转型契机之下, 融入沿海沿江经济带,能级再度提升。
❍6大TOD+超级目的地 宝山主城规划加速兑现
宝山汇聚了招商等众多具实力的开发力量,筹划丰翔路,潘广路、南大路、宝山站、通南路、呼兰路6大TOD,在上海各区中遥遥领先。
❍新顾城 北上海崛起的必然节点
新顾城定位为上海北部产城相融合、配套高标准、宜居多元化的大型居住社区,必然承接宝山产业升级转型和创新发展的海量人才居住需求,成为北上海宜居核心。 简单说一下项目, 招商中旅·观境毗邻7号线潘广路站,2站顾村公园,并途经上大、长寿路,直达静安寺。
大家知道,这里规划了招商花园城X,招商时代乐章也在隔壁,可以说共筑潘广路TOD大城。
上一个招商花园城X项目位于浦东曹路,秉持“X+商业”差异化策略,打造了曹路市集、室外36米的“天环飞瀑”、屋顶星际跑道等特色场景,并以超200个的全业态品牌数量,超50%的区域首店,成功点燃区域消费热情。


声明:本文由入驻焦点开放平台的作者撰写,除焦点官方账号外,观点仅代表作者本人,不代表焦点立场。
